[Review] Whizdom The Exclusive (วิสซ์ดอม ดิ เอ็กซ์คลูซีฟ) LUXURYคอนโดพร้อมอยู่ ใกล้รถไฟฟ้าสถานีปุณณวิถี พร้อมห้อง Duplex และที่จอดรถ 100% จาก MQDC
ซอยพงษ์เวชอนุสรณ์ 1 แขวงบางจาก เขตพระโขนง กรุงเทพมหานคร

Review info
Whizdom The Exclusive (วิสซ์ดอม ดิ เอ็กซ์คลูซีฟ) luxuryคอนโดพร้อมอยู่ ใกล้รถไฟฟ้าสถานีปุณณวิถี จาก MQDC
โครงการ Whizdom The Exclusive (วิสซ์ดอม ดิ เอ็กซ์คลูซีฟ) คอนโด ใกล้รถไฟฟ้า BTS สถานีปุณณวิถี โครงการพร้อมอยู่ ตึก Low Rise 8 ชั้น ในซอยสุขุมวิท64 แยก 1 ตัวโครงการเปิดขายไปหลายเปอร์เว็นต์แล้ว แบบห้องมีทั้งแบบDuplex ไปจนถึง 3 ห้องนอน พร้อมที่จอดรถ 100% บริหารโครงการโดย MQDC
ชื่อโครงการ Whizdom The Exclusive (วิสซ์ดอม ดิ เอ็กซ์คลูซีฟ)
ที่ตั้งโครงการ ซอยสุขุมวิท64 เขตพระโขนง
กรุงเทพมหานคร
ราคาเริ่มต้น 6.2
ล้านบาท
Project Insight
เจาะลึกภาพรวมโครงการ Whizdom The Exclusive (วิสซ์ดอม ดิ เอ็กซ์คลูซีฟ)

Whizdom The Exclusive (วิสซ์ดอม ดิ เอ็กซ์คลูซีฟ) คอนโดมิเนียมประเภท Low Rise 8 ชั้นจำนวน 1 อาคาร ตั้งอยู่บนพื้นที่ดิน _ 1-1-86 _ ไร่ ในซอยสุขุมวิท 64 แยก 1 มีจำนวนยูนิตทั้งหมด 79 ห้อง ตัวโครงการตั้งอยู่ติดถนนซอย ข้างๆกับโครงการ Whizdom @Punnawithi Station (วิสซ์ดอม ปุณณวิถี สเตชั่น) โครงการรุ่นน้องจากDeveloper เดียวกัน

ตัวโครงการด้านซ้ายเป็นที่ดินและบ้านเรือน ด้านขวาคือโครงการ Whizdom @Punnawithi Station (วิสซ์ดอม ปุณณวิถี สเตชั่น) และด้านหลังที่เห็นสูงๆคือโครงดาร The Room ที่หันหลังชนกัน อยู่ติดกับถนนสุขุมวิท


โครงการเข้าออกด้วยระบบ Key Card และมีป้อม รปภ. 24 ชั่วโมง
มีบริการรถรับ-ส่งไปสถานีปุณณวิถี ซึ่งรถสามารถออกได้ตลอดเวลาที่มีลูกบ้านลงมาใช้บริการ
มาดู Plan อาคารของโครงการกันบ้าง ที่ชั้น 1 จะเป็นพื้นที่จอดรถทั้งหมด 79 คัน คิดเป็น 100% ของยูนิตในโครงการ
ส่วนชั้น 2 จะเป็นส่วนของยูนิตห้องพัก 9 ห้อง และ Facilities ส่วนกลางของโครงการได้แก่ ห้องสมุดและห้องอเนกประสงค์ ห้องนิติบุคคล ห้องน้ำส่วนกลาง และห้องซักผ้า
พอขึ้นมาที่ชั้น 3 ส่วนกลางจะเป็น สระว่ายน้ำ ห้องฟิตเนส ระเบียงและสวนหย่อม และจะมียูนิตห้องพักอีก 13 ห้องในชั้นนี้
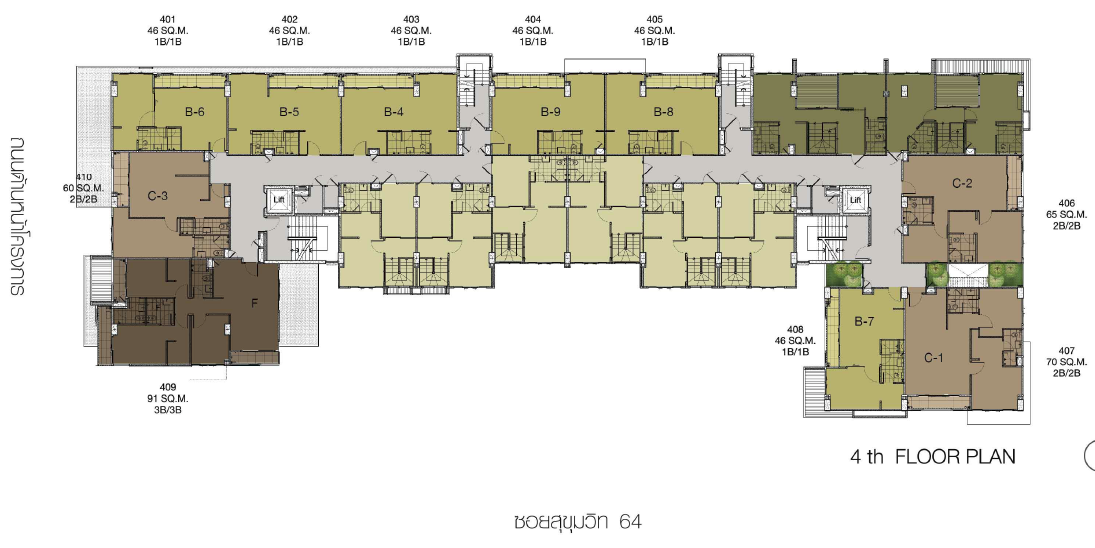
Plan ชั้น 4 จะเริ่มเป็นส่วนของยูนิตห้องพักทั้งหมด โดยในชั้นนี้มี 19 ห้องเป็นแบบ Duplex 8 ห้อง ที่เป็นยูนิตเดียวกับชั้น 3
Plan อาคารชั้น 5 มียูนิตห้องพัก 18 ห้อง เป็น Duplex 12 ห้อง
Plan อาคารชั้น 6 มียูนิตห้องพัก 18 ห้องเช่นกัน เป็น Duplex ที่เชื่อมกับชั้น 5 จำนวน 12 ห้อง
Plan อาคารชั้น 7 มียูนิตห้องพัก 17 ห้อง เป็น Duplex 12 ห้อง
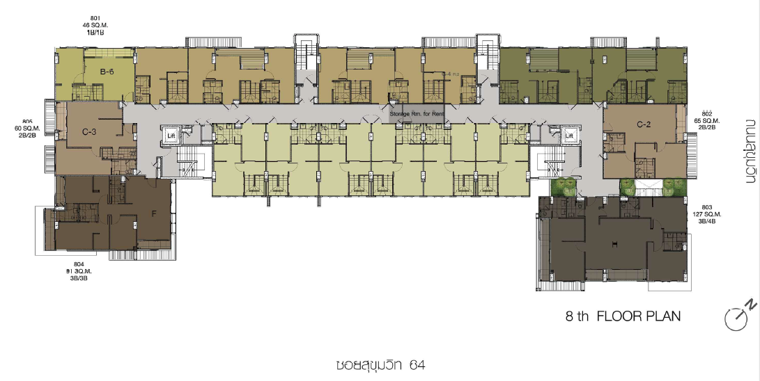
และ Plan อาคารชั้น 8 มียูนิตห้องพัก 17 ห้อง เป็น Duplex 12 ห้อง
มาดูรายละเอียดตัวโครงการกันบ้าง เริ่มจากชั้นล่างสุดที่เป็นพื้นที่จอดรถใต้อาคาร และมีประตูทางเข้าอาคาร โดยใช้ Key Card ในการเข้า-ออก
เข้ามาจะเจอกับลิฟต์ Lobby และ Mailbox
Mailbox ตั้งเป็นตู้เรียงกันแบบนี้ทั้งอาคารเลย
พอขึ้นมาชั้นบนๆที่เป็นส่วนพักอาศัย หน้าตาลิฟต์จะเปลี่ยนเป็นแบบนี้ โดยลิฟต์ของโครงการจะมีให้ 2 ตัวเป็นลิฟต์โดยสารทั้งคู่
ที่กดลิฟต์แบบชัดๆ
ขึ้นมาบนอาคารแล้ว ข้างลิฟต์ด้านหนึ่งจะเป็นชุดอุปกรณ์ดับเพลิงและห้อง service กับห้องทิ้งขยะ
ส่วนอีกด้านของลิฟต์จะเป็นบันไดหนีไฟ โดยบันไดหนีไฟก็จะมี 2 จุดในอาคารเช่นกัน
หน้าตาด้านในของบันไดหนีไฟ
ที่ผนังอาคารบริเวณโถงทางเดิน ตั้งแต่หน้าลิฟต์ จะมีผังแสดงเลขที่ห้องพัก และผังอาคารติดไว้เป็นจุดๆ ค่ะ
โถงทางเดินภายในอาคารเป็นแบบ double corridor มีไฟดาวน์ไลท์ และกล้องวงจรปิดตามมุมอาคารทุกชั้นค่ะ
แบบห้องของโครงการมีทั้งหมด 9 Type ตั้งแต่ Studio 1 ห้องนอน จนถึงแบบ 3 ห้องนอน แบบ Duplex
เริ่มที่ Type A แบบห้อง STUDIO 1 ห้องนอน 1 ห้องน้ำ พื้นที่ใช้สอย 30 ตารางเมตร
Type B แบบห้อง 1 ห้องนอน 1 ห้องน้ำ พื้นที่ใช้สอย 46 ตารางเมตร
Type C แบบห้อง 1-2 ห้องนอน พื้นที่ใช้สอย 65-70 ตารางเมตร
Type D แบบห้อง 2 ห้องนอน พื้นที่ใช้สอย 62 ตารางเมตร
Type E แบบห้อง 2 ห้องนอน พื้นที่ใช้สอย 78 ตารางเมตร
Type F แบบห้อง 3 ห้องนอน พื้นที่ใช้สอย 91 ตารางเมตร
Type G แบบห้อง 2-3 ห้องนอน พื้นที่ใช้สอย 92-94 ตารางเมตร
Type H แบบห้อง 3 ห้องนอน พื้นที่ใช้สอย 127 ตารางเมตร
และ Type I แบบห้อง Duplex 3 ห้องนอน 4 ห้องน้ำ พื้นที่ใช้สอย 108-109 ตารางเมตร
Duplex 2 Bedroom 78 Sq.M.
ห้องตัวอย่าง Duplex 2 ห้องนอน ขนาด 78 ตร.ม. ของโครงการ Whizdom The Exclusive (วิสซ์ดอม ดิ เอ็กซ์คลูซีฟ)
สำหรับห้องตัวอย่างแบบที่เราพามาดูก็คือแบบห้อง Duplex 2 ห้องนอน ขนาดพื้นที่ใช้สอย 78 ตารางเมตรค่ะ ห้อง Duplex ของโครงการนี้เป็นห้อง 2 ชั้นแบบจริงจัง ไม่ได้เป็นห้อง Duplex ชั้นครึ่งเหมือนบางโครงการที่เริ่มทำกัน ซึ่งห้องแบบนี้ให้ความรู้สึกเหมือนอยู่บ้านมากเลย
Plan ห้องค่ะ จะเห็นว่า Lay Out ของห้องแบ่งพื้นที่ใช้สอยชั้นบนและชั้นล่างชัดเจน คือพื้นที่ Living Area ส่วนของห้องรับแขก และครัว ส่วนชั้นบนเป็นห้องนอนทั้ง 2 ห้อง
มาเริ่มกันที่ประตูห้องด้านหน้ากันก่อนเลย ที่เห็นเป็นเลขห้องแต่ละห้องค่ะ สำหรับเลขห้องตัวอย่างนี่สวยทีเดียวเลยค่ะ
เปิดประตูเข้ามาในห้องกันบ้าง ส่วนแรกจะเจอกับ Foyer ด้านหน้าประตูและโถงทางเดิน เป็นพื้นที่วางของ ถอดรองเท้า
ดูที่ประตู มือจับเป็นแบบก้านโยก
มีตาแมวติดให้ด้านบน
หน้าตาสวิสซ์ไฟ
พื้นในห้องเป็นแกรนิต 60x60 ซม.สีอ่อนลายหิน ทำให้รู้สึกโล่งและสะอาดตาดีค่ะ
ติดกับประตูจะเป็นตู้เก็บรองเท้า และติดกระจกมาให้ด้วย เวลาจะออกไปไหนก็ส่องดูความเรียบร้อยก่อนออกจากห้องได้ค่ะ
เปิดออกมาได้ฟังก์ชั่นการเก็บแบบนี้
จากนั้นเดินเข้ามาติดกับตู้เก็บรองเท้า เป็นส่วนของห้องน้ำแขกค่ะ
ด้านในก็จะเป็นฟังก์ชั่นการใช้งานเฉพาะส่วนแห้ง
ประตูห้องน้ำเป็นบานไม้ ได้มือจับแบบก้านโยก
หน้าประตูเป็นอ่างล้างหน้าแบบกลม มีพื้นที่วางของรอบขอบอ่าง และใต้อ่างมีช่องเก็บของอีก
ก๊อกน้ำแบบโค้งก้านโยกค่ะ
ข้างกระจกตรงอ่างล้างหน้าติดปลั๊กไฟพร้อมกล่องกันน้ำมาให้
โถสุขภัณฑ์แบบ 2 ชิ้นของ MOGEN ค่ะ
ด้านข้างติดที่ใส่กระดาษทิชชู และสายชำระ
ผนังด้านในมีที่แขวนผ้าเอาไว้เช็ดมือ ห้องน้ำด้านล่างนี้เป็นห้องน้ำแขก จะมีเฉพาะส่วนแห้งเท่านั้น อาบน้ำไม่ได้นะคะ
ต่อไปเราจะเข้าไปดูส่วนของ Living Area กัน
ในพื้นที่นั่งเล่นจะได้เป็นไฟดาวน์ไลท์ และติดตัวดักจับควันไฟ
ส่วนของ Living Area จะกินพื้นที่ห้องในชั้นล่างทั้งหมด ส่วนแรกที่เจอคือพื้นที่นั่งเล่น
ฝั่งผนังมีชั้นวางทีวี และจุดเสียบปลั๊กมาให้
ชั้นวางทีวีสามารถวางของด้านล่างได้ และมีลิ้นชักเก็บของอีก
ปลั๊กไฟ และช่องเสียบสายเคเบิล สายLAN ตรงจุดวางทีวีค่ะ
โครงการวางชุดโซฟาแบบ 3 ที่นั่งไว้ให้ พร้อมโต๊ะกลางตัวเล็ก 1 ตัว
มุมมองจากด้านในออกไปที่หน้าประตูห้อง
ติดกับชุดรับแขกจะเป็นประตูระเบียงของห้องนี้ค่ะ ตำแหน่งของประตูทำให้แสงสว่างส่องเข้ามาในห้องได้ดีมากเลย แทบจะไม่ต้องเปิดไฟในตอนกลางวันเลยค่ะ
ประตูระเบียงเป็นบานกระจกเขียวตัดแสง สไลด์ 2 ตอน
หน้าตาที่เปิดปิดประตู
พื้นระเบียงลดระดับลงจากพื้นห้องประมาณ 3 ซม, ปูด้วยกระเบื้องลยหินขนาด 30x60 ซม.
ออกมาด้านนอกพื้นที่ระเบียงประมาณ 3x1.2 ม. ริมในสุดของระเบียงเป็นที่ติด CDU แอร์ ซึ่งติดได้ถึง 3 ตัว โครงการทำระแนงบังตามาให้
ข้างๆ CDU แอร์มีราวแขวนผ้าเล็กๆติดมา
มีก๊อกน้ำมาให้ 2 ก๊อก
และมีจุดติดตั้งเครื่องซักผ้า มีคัตเอาท์และปลั๊กไฟติดมาให้เรียบร้อย
ราวกันตกที่ระเบียงเป็นแบบอิฐก่อต่อด้วยบานกระจกด้านบน ให้ความรู้สึกโปร่ง แต่จะโดนบล็อกวิวจากโครงการ Whizdom ปุณณวิถี สเตชั่น ข้างๆนะ
มองจากระเบียงกลับมาข้างในห้อง ต่อไปเราจะไปดูส่วนครัวและชุดรับประทานอาหารกันค่ะ
ชุดโต๊ะทานข้าวให้มาแบบ ที่นั่ง แต่สามารถวางเก้าอี้เพิ่มหัว-ท้ายโต๊ะได้อีก 2 ตัว
ติดกับโต๊ะทานข้าวเป็นชุดบิ้วท์อิน เชื่อมกับพื้นที่ครัวเปิด
ชุดบิ้วท์อินสามารถวางทีวีได้ เอาไว้ดูเวลาทานข้าว และมีช่องเก็บของและลิ้นชักตรงเคาท์เตอร์ด้านล่าง
ต่อไปเป้นส่วนของครัว ซึ่งเป็นชุดครัวบิ้วท์อินแบบเคาท์เตอร์ล่างบน และที่ตั้งตู้เย็นได้แบบ 2 ประตู
พื้นที่ในห้องครัวสำหรับคอนโดถือว่ากว้างดีค่ะ สามารถใช้งานพร้อมกันได้ 1-2 คน
เปิดดูฟังก์ชั่นเคาท์เตอร์กันได้ตามนี้ค่ะ
เคาท์เตอร์ด้านบนมีทั้งตู้เก็บของแบบบานปิดและแบบชั้นลอย
เตาไฟฟ้าและที่ดูดควันของ HAFELE
อ่างล้างจานแบบ 1 หลุม มีที่พักจานเล็กๆด้านข้างของ HAFELE เช่นกัน
ด้านในห้องจะมีสวิตซ์ไฟ และจุดควบคุมระบบอิเล็คทรอนิกส์ภายในห้อง
ต่อไปเราขึ้นไปดูพื้นที่ชั้นบนกันค่ะ
ตัวบันไดเป็นบันไดไม้ ชานพักจะเป็นแบบสามเหลี่ยม เวลาเดินต้องระวังจังหวะกันนิดนึง
ตรงบันไดจะเป็นผนังกระจกแบบ double volume ได้แสงสว่างจากข้างนอกเต็มๆ ต้องติดม่านเพื่อความเป็นส่วนตัวนะคะ
ราวบันได้เป็นแบบราวไม้กลม
ขึ้นมาด้านบนพื้นจะเป็นลามิเนตนะคะ
ส่วนแรกจะเป็น Foyer ด้านหน้าห้องนอนทั้ง 2 ห้อง จะเจอกับห้องนอนเล็กซึ่งเป็นห้องกระจกก่อนเลย
ตัวห้องนอนเล็กกั้นด้วยประตูบานกระจกแบบรางเลื่อน 2 ตอน
ด้านในโครงการจัดเตียงแบบ Day Bed ใช้นั่งเล่นหรือนอนก็ได้ และด้านในจัดเป็นพื้นที่ทำงาน
Daybed ที่ให้มาขนาดพอๆกับเตียง 3 ฟุตค่ะ
ตรงข้ามกับเตียงก็จะเป็นตู้เก็บของแบบลิ้นชัก
และด้านในสุดเป็นโต๊ะทำงาน
เหนือโต๊ะทำงานติดแอร์ 9,000 BTU ให้ 1 ตัว
ผนังห้องด้านหลังจะมีประตูทางออกของห้องนี้อีกจุดหนึ่ง ซึ่งสามารถเชื่อมกับทางหนีไฟได้ ส่วนด้านข้างประตูทางหนีไฟเป็นประตูห้องน้ำ ที่เชื่อมกับ Master Bedroom ค่ะ
ประตูทางออกบันไดหนีไฟค่ะ
มองจากด้านในห้องกลับออกมาที่ระเบียงด้านหน้า
ต่อไปเป็น Master Bedroom ค่ะ
ห้องนอนใหญ่วางเตียง 5 ฟุตมาให้
ปลายเตียงด้านในเป็นผนังกระจกแบบบาน fix
เหนือกระจกติดแอร์มาให้อีก 1 ตัว
มุมมองจากด้านในห้องออกไปที่เตียง จะเห็นว่ามีส่วนของตู้เสื้อผ้าและห้องน้ำต่อไปอีก
หน้าต่างเป็นบานfix แล้วมีบานสไลด์ให้ 2 บาน
ปลายเตียงมีขอบผนังสำหรับติดทีวีแบบแขวนได้
ทีวีในห้องตัวอย่างติดแบบเป็นรางเลื่อนได้
ต่อไปเราไปดูอีกด้านของห้องนอนกันบ้าง เป็นส่วนของตู้เสื้อผ้าและห้องน้ำค่ะ
ด้านหน้าจะเป็นโถงทางเดินเข้าไปห้องน้ำ
ตู้เสื้อผ้าให้มาแบบบานเปิด 2 บาน ฟังก์ชั่นด้านในก็ได้ตามนี้ค่ะ
อีกฝั่งเป็นโต๊ะเครื่องแป้งพร้อมเก้าอี้สตู บิ้ว์ติดผนังมาให้
ในสุดเป็นห้องน้ำที่เชื่อมทะลุได้ทั้งจากห้องนอนเล็กและห้องนอนใหญ่ค่ะ
ด้านในห้องน้ำชั้นบนจะเป็นแบบ 3 ฟังก์ชั่นมาตรฐาน มีส่วนเปียกและส่วนแห้ง
อ่างล้างหน้าแบบกลม หน้าตาเหมือนกันกับห้องน้ำข้างล่าง
ด้านข้างกระจกก็มีปลั๊กไฟพร้อมกล่องกันน้ำกระเด็น
ด้านในเป็นส่วนของโถสุขภัณฑ์
ติดสายชำระและที่ใส่กระดาษทิชชูมาให้ด้านข้าง
ติดกับสุขภัณฑ์เป็น Shower Box กั้นกระจก Tempered แบบบานเปิดมาให้ พื้นที่ด้านในประมาณ 1.2 x 1.2 ม.
ที่จับประตูห้องอาบน้ำสามารถใช้แขวนผ้าเช็ดตัวได้
ฝักบัวได้เป็น Hand Shower ของ COTTO
และมีจุดติดตั้งเครื่องทำน้ำอุ่นมาให้ด้วย
Environment
สภาพแวดล้อมรอบๆ โครงการ ส่วนใหญ่จะเป็นที่อยู่อาศัย โดยมากก็จะเป็นโครงการคอนโดมิเนียม Low Rise โดยเฉพาะติดถนนซอยสุขุมวิท 64 มีโรงเรียน ร้านอาหาร ร้านสะดวกซื้อ และใกล้กลับสถานีรถไฟฟ้าด้วย
ส่วนสภาพแวดล้อมในซอยโดยละเอียดสามารถอ่านได้ใน Link รีวิวโครงการ Whizdom @Punnawithi Station (วิสซ์ดอม ปุณณวิถี สเตชั่น) ที่อยู่ติดกันค่ะ
สำหรับโครงการคอนโดมิเนียมที่ตั้งอยู่ภายในซอยสุขุมวิท 64 ที่ ESTOPOLIS ได้ไปรีวิวมาแล้วมีอยู่หลายโครงการ สามารถอ่านตัวอย่างรีวิวโครงการทได้ตามนี้ค่ะ
โครงการ MONIIQ Sukhumvit 64
โครงการ Mayfair Place Sukhumvit 64
โครงการ Whizdom @Punnawithi Station (วิสซ์ดอม ปุณณวิถี สเตชั่น)
Location
ที่ตั้งโครงการ
Whizdom The Exclusive (วิสซ์ดอม ดิ เอ็กซ์คลูซีฟ)

โครงการ Whizdom The Exclusive (วิสซ์ดอม ดิ เอ็กซ์คลูซีฟ) ตั้งอยู่ในซอยสุขุมวิท 64 ถนนสุขุมวิท สามารถเข้าออกได้ 2 ทาง คือทางซอยสุขุมวิท 64 ซึ่งปากซอยโครงการอยู่ใกล้กลับสถานี BTS ปุณณวิถี ทางออกที่ 4 เดินทางด้วยรถไฟฟ้าสะดวกมาก และก็ใกล้กับจุดขึ้นลงทางด่วนสุขุมวิท 62 ที่มีซอยทะลุไปออกด้านหลังได้ด้วย

ตัวโครงการตั้งอยู่ติดกับถนนซอยพงษ์เวชอนุสรณ์ 1 หรือซอยสุขุมวิท 64 แยก 1 ซึ่งสามารถทะลุออกได้ทั้งถนนสุขุมวิทผ่านปากซอยสุขุมวิท 64 หรือทางซอยสุขุมวิท 62 ซึ่งเป็นจุดขึ้นลงทางด่วนด้วย
การเดินทางจากดินแดง

เราจะขึ้นทางด่วนมาจากด่านดินแดงค่ะ หลังจากขึ้นทางด่วนมาแล้วก็มุ่งหน้าตามป้ายท่าเรือ-บางนา-ดาวคะนอง

ขับมาเรื่อยๆจนผ่านทางลงเพลินจิต ก็ให้ตรงตามป้ายท่าเรือ-บางนา-ดาวคะนอง มา

จากนั้นเลยทางโค้งจากช่วงเพลินจิตมา ให้ชิดซ้ายมาทาง ท่าเรือ-บางนา
ตรงตามป้าย ท่าเรือ บางนา มาเลยค่ะ

ขับตรงมาอีกนิดจะเห็นป้ายถนนอาจณรงค์ รามอินทรา บางนา ให้อยู่เลนกลางหรือขวาก็ได้ค่ะ ตรงมาเรื่อยๆ

ตรงมาจนลงจากทางยกระดับ จะมีป้ายทางออกที่ 15 ที่จะมาออกซอยสุขุมวิท 62 ให้เตรียมตัวออกซ้ายตามป้ายค่ะ

พอเบี่ยงออกซ้ายมาแล้ว จะเจอซอยแยกเล็กๆตรงทางโค้งไปถนนสุขุมวิท นั่นคือทางทะลุซอยสุขุมวิท 64 ให้ออกขวาตรงเข้าซอยไปเลยค่ะ
ตรงเข้ามาในซอยช่วงแรกจะเป็นบ้านพักอาศัย และมีซอยแยกที่ไปทะลุออกสุขุมวิท 62 ได้อีก
ตรงมาจะเจอโครงการคอนโด Regent Home ทางขวามือ
ตรงเข้ามาเป็นทางบังคับโค้งซ้าย ด้านหน้าโครงการ MONIIQ Sukhumvit 64
แล้วก็ขับตรงตามถนนซอยมาเรื่อยๆ
จะเจอสามแยกที่มาเชื่อมกับซอยพงษ์เวชอนุสรณ์ 1 ที่ไปออกซอยสุขุมวิท 64 ให้เลี้ยวขวาค่ะ

พอเลี้ยวขวามาประมาณ 50 เมตรก็จะเจอโครงการ Whizdom The Exclusive (วิสซ์ดอม ดิ เอ็กซ์คลูซีฟ) อยู่ทางซ้ายมือค่ะ
Analysis
วิเคราะห์โครงการ Whizdom The Exclusive (วิสซ์ดอม ดิ เอ็กซ์คลูซีฟ)
ทำเล: โครงการ Whizdom The Exclusive (วิสซ์ดอม ดิ เอ็กซ์คลูซีฟ) ตั้งอยู่ในทำเลที่สะดวกสำหรับคนที่เดินทางด้วยรถไฟฟ้า และคนที่ใช้รถยนต์ส่วนตัว เพราะเชื่อมต่อถนนได้หลายเส้น ทั้งสุขุมวิท บางนา-ตราด และใกล้จุดขึ้นลงทางด่วน โดยรวมทำเลรอบๆค่อนข้างอุดมสมบูรณ์ มีห้างสรรพสินค้า และตลาดใหญ่ๆอยู่ไม่ไกล สำหรับคนที่อยู่เป็นครอบครัวก็มีโรงเรียนดังๆในบริเวณใกล้โครงการอยู่หลายที่เลย
สภาพแวดล้อม: สภาพแวดล้อมรอบโครงการภายในซอยสุขุมวิท 64 ส่วนใหญ่เป็นโครงการคอนโดมิเนียมนี่แหละ เป็นอาคารบ้านเรือนและอาคารพาณิชย์บ้าง อาคารสำนักงานบ้าง บรรยากาศตอนกลางวันค่อนข้างเงียบสงบ ส่วนถ้าออกมาที่ถนนสุขุมวิทก็มีร้านค้า ร้านอาหาร ถ้าเลยไปทางอ่อนนุชก็มีคอมมูนิตี้ เดอะ ฟิลล์ และโลตัส อ่อนนุช ทางบางนาก็มีปิยรมณ์ สปอร์ตคลับ ที่มีคอมมูนิตี้มอลล์ด้านใน และบิ้กซี กับเซ็นทรัล บางนา
แบบห้อง: แบบห้องของโครงการ Whizdom The Exclusive (วิสซ์ดอม ดิ เอ็กซ์คลูซีฟ) ถือว่าได้พื้นที่ใช้สอยค่อนข้างเยอะ และมีแบบห้องถึง 9 แบบ กับผังห้องอีกรวม 27 แบบ โดยแบบ Studio ก็ได้ขนาดเริ่มต้นที่ 30 ตารางเมตร การใช้งานพื้นที่ใช้สอยในห้องก็ค่อนข้างลงตัว ชขนาดห้องและแบบห้องของโครการโดยรวมก็ถือว่าเหมาะสำหรับการอยู่อาศัยแบบ 2-3 คนกำลังพอดีๆค่ะ
ราคา: ราคาของโครงการปัจจุบันมีห้อง Duplex ขายที่ราคา 6.2 ล้านบาท ขนาดพื้นที่ใช้สอย 82 ตารางเมตร ซึ่งราคาเฉลี่ยของโครงการอยู่ที่ 100,000 บาทต่อตารางเมตร เมื่อคิดรวมกับขนาดพื้นที่ห้อง สภาพโครงการ และทำเลแล้ว ก็ถือว่าค่อนข้างคุ้มค่าเลยทีเดียว
สิ่งอำนวยความสะดวก: Facilities ในโครงการ ก็ถือว่าให้มาโอเคมีบริการรถรับ-ส่งที่สถานีรถไฟฟ้าตลอดเวลา คือไม่ต้องรอรอบของรถ ถ้ามีลูกบ้านต้องการใช้บริการก็สามารถออกได้เลย ก็ถือว่าอำนวยความสะดวกให้กับลูกบ้านได้ดีมาก ระบบ Security ก็โอเค มีเจ้าหน้าที่ รปภ. 24 ชั่วโมง และระบบ Key Card เฉพาะกับลูกบ้านในโครงการ ที่สำคัญก็คือจำนวนที่จอดรถในโครงการ 100% ไม่ต้องกังวลปัญหาเรื่องที่จอดไม่พอ
Whizdom The Exclusive
58e1fb841de72e5217c6fb66
whizdom-the-exclusive





















































































































