[Review] แวร์เด สุขุมวิท 49/15 (Verde Sukhumvit 49/15) คอนโด Low rise ในสไตล์ Luxury Vintage...จุดบรรจบของความสงบและความรื่นรมย์ของย่านพร้อมพงษ์-ทองหล่อ
267/1 ซอยสุขุมวิท 49 แยก 15 ถนนสุขุมวิท แขวงคลองตันเหนือ เขตวัฒนา กรุงเทพฯ

Review info
Verde Sukhumvit 49/15 ลักซูรี่คอนโด สไตล์คลาสสิค วิเทจ ดีไซน์หรูเหนือระดับ ให้ความเป็นส่วนตัวสูงสุด เพื่อการอยู่อาศัยใจกลางเมือง
ความสงบในเมืองใหญ่อาจจะหาไม่ได้ง่ายๆ แต่ก็ไม่ใช่ว่าจะหาไม่ได้เลยเสียทีเดียว....
ใครที่กำลังตามหาคอนโดบนพื้นที่สงบเงียบในย่านทองหล่อ ต้องขอแนะนำให้รู้จักกับ แวร์เด สุขุมวิท 49/15 (Verde Sukhumvit 49/15) คอนโด Low rise มีสไตล์เฉพาะตัว โดดเด่นในเรื่องความเงียบสงบและความเป็นส่วนตัวด้วยจำนวนยูนิตเพียง 31 ยูนิต เหมาะกับคนที่ชื่นชอบการใช้ชีวิตในเมือง แต่กลับโหยหาความสงบเหมือนอยู่บ้านหลังใหญ่ และต้องการพื้นที่ Work & Play ซึ่งไม่วุ่นวาย แต่เน้นการเจาะไลฟ์สไตล์ที่ใช่...ในแบบที่เราเป็น
ข้อมูลโครงการ แวร์เด สุขุมวิท 49/15 (Verde Sukhumvit 49/15)
ราคาเมื่อวันที่ 30/3/2017
1 bedroom พื้นที่ใช้สอย 45.35-76.37 ตร.ม. ราคาเริ่มต้นที่ 7.4 ล้านบาท
แวร์เด สุขุมวิท 49/15 (Verde Sukhumvit 49/15)
ชื่อโครงการ แวร์เด สุขุมวิท 49/15 (Verde Sukhumvit 49/15)
ที่ตั้งโครงการ ซอยสุขุมวิท 49/15 ถนนสุขุมวิท แขวงคลองตันเหนือ เขตวัฒนา กรุงเทพมหานคร
ราคาเริ่มต้น 7.4 ล้านบาท
Insight
เจาะลึกโครงการ แวร์เด สุขุมวิท 49 (Verde Sukhumvit 49)
ศักยภาพบนทำเลพักอาศัยที่ดีที่สุด สะดวกครบครัน และเพลิดเพลินกับไลฟ์สไตล์ที่เป็นคุณ
คอนโด Verde Sukhumvit 49 (แวร์เด สุขุมวิท 49) เป็นโครงการคอนโดมิเนียมเรียบหรูตกแต่งด้วยสไตล์วินเทจ ผสมผสานกับความคลาสสิก โดยเป็นคอนโดขนาด Low Rise 7 ชั้น 1 อาคาร ตั้งอยู่บนซอยสุขุมวิท 49 แยก 15 ถนนสุขุมวิท แขวงคลองตันเหนือ เขตวัฒนา เรียกได้ว่า อยู่บนใจกลางความเจริญ เพราะไม่ว่าจะหันไปทางไหนก็ล้วนเป็นศูนย์เศรษฐกิจสำคัญทั้งนั้น เช่น อโศก พร้อมพงษ์ ทองหล่อ เป็นต้น อีกทั้งอยู่ใกล้รถไฟฟ้า BTS สถานีพร้อมพงษ์ และสถานีทองหล่อ เพียงเข้าไป 1 กิโลเมตรนิดๆเท่านั้น
แผนผังอาคารของโครงการ แวร์เด สุขุมวิท 49/15 (Verde Sukhumvit 49/15)
![]()
Mater plan ของโครงการ แวร์เด สุขุมวิท 49/15 (Verde Sukhumvit 49/15) ชั้นแรกเป็นพื้นที่ของลานจอดรถและส่วนของล็อบบี้ ซึ่งเป็นทางเข้าของอาคาร ตัวMater plan ของโครงการ แวร์เด สุขุมวิท 49/15 (Verde Sukhumvit 49/15) ชั้นแรกเป็นพื้นที่ของลานจอดรถและส่วนของล็อบบี้ ซึ่งเป็นทางเข้าของอาคาร ตัวอาคารหันหน้าไปทางทิศใต้ เมื่อขับรถเข้ามาจะพบกับโถงทางเดินรถแบบซุ้มลอดผ่านใต้อาคาร ให้อารมณ์เหมือนขับรถเข้าสู่ส่วนของบ้านหลังใหญ่ที่ตกแต่งด้วยสไตล์วินเทจ ที่จอดรถจะเป็นแบบจอดใต้อาคารคิดเป็น 100% หรือ 33 คัน ไม่รวมการจอดแบบซ้อนคัน เมื่อเข้าสู่ตัวอาคารจะเจอกับพื้นที่ล็อบบี้ซึ่งตกแต่งมาในสไตล์แอนทีคให้ความรู้สึกอบอุ่น ผ่านไปเจอโถงลิฟต์สองตัว ให้มาแบบล็อกชั้นเพื่อความปลอดภัยในการพักอาศัย
ด้านความปลอดภัย อุ่นใจด้วยระบบรักษาความปลอดภัย 24 ชั่วโมง พร้อมกล้อง CCTV ครอบคลุมทั้งโครงการ เข้า-ออกด้วยระบบ Key card access และ Video door phone ให้ทุกการเข้าถึงเป็นสิทธิ์เฉพาะตัว ส่วนลานจอดรถของอาคารจะคิดเป็น 100% หรือ 33 คัน ไม่รวมการจอดแบบซ้อนคัน
ภาพตัวอย่างของ Sensual Courtyard ผ่อนคลายผ่านมุมมองเสรี ด้วยช่องเปิดบริเวณกลางอาคาร แต่งแต้มอารมณ์ด้วยระเบียงเหล็ก Wrought iron ใต้ร่มเงาไม้ใหญ่ที่เป็นเสมือนแลนด์มาร์ก

ภาพตัวอย่างของ Elegant Lobby & Corridor พื้นที่ต้อนรับหรูหรา โปร่งสบายพร้อมเฟอร์นิเจอร์สไตล์แอนทีคให้ความรู้สึกอบอุ่น ตกแต่งด้วยกระเบื้องหินอ่อน กรุกระจกโดยรอบเพื่อเพิ่มมิติและแสงสว่าง นอกจากนี้ยังมีให้บริการ Harmonizing the connection เชื่อมต่อทุกองศาของไลฟ์สไตล์แบบไม่สะดุดกับสัญญาณ WiFi ฟรี
ภาพตัวอย่างของลิฟต์โดยสารในสไตล์วินเทจที่รองรับปริมาณของผู้เข้าพักได้อย่างคล่องตัว มีให้บริการ 2 ตัว แบบล็อกชั้น
สำหรับพื้นที่บนชั้นสอง จะแบ่งออกเป็นพื้นที่ส่วนกลางอย่างสระว่ายน้ำ ฟิตเนส สตีม และพื้นที่พักผ่อน ชั้นนี้มีจำนวนยูนิตทั้งหมด 3 ยูนิตด้วยกัน เป็นชั้นที่เหมาะสำหรับคนชอบใช้พื้นที่ส่วนกลางเป็นประจำ ถ้าใครชื่นชอบความเงียบสงบอาจจะหลีกเลี่ยงการซื้อห้องในชั้นนี้ หรือเลือกซื้อห้องทางซ้ายมือ (ห้อง 1 BR 76.37 Sq.m. ) ที่อยู่ห่างจากพื้นที่ส่วนกลางมาหน่อยแทน
ภาพตัวอย่างของ Natural lap pool สระว่ายน้ำ Infinity edge pool ดีไซน์สี่เหลี่ยมคางหมู ขนาด 12×5 เมตร พร้อมจุดสันทนาการริมสระ และจุดพักผ่อน
ภาพตัวอย่างของ Lounge seat เปิดรับทัศนียภาพมุมกว้าง พร้อม Revival fitness suite มีอุปกรณ์ฟิตเนสตามมาตรฐาน ห้องน้ำแยกชาย-หญิง ห้องเปลี่ยนเสื้อผ้าและห้องสตีมให้ครบครัน
สำหรับผังในชั้น 3-6 จะเป็นพื้นที่ของห้องพักทั้งหมด เฉลี่ยต่อชั้นสูงสุดมีแค่ 6 ยูนิตเท่านั้น ถือว่าเป็นโครงการที่จัดสรรมาเพื่อคนที่ชอบความเป็นส่วนตัวสูง โถงลิฟต์จะวางตัวอยู่กลางอาคารสามารถเดินมาใช้งานได้สะดวกจากทุกยูนิต ไม่มีใครได้เปรียบเสียเปรียบกัน ส่วนการจัดวางผังห้องจะเป็นห้องสองทิศ คือเป็นห้องมุมทำห้องเป็นกระจกเข้ามุมมองเห็นวิวได้ 2 ทิศ ทำให้ห้องดูกว้างมากขึ้น
สำหรับชั้น 7 จะเป็นพื้นที่ของ Penthouse มีเหลือ 2 ยูนิต ได้แก่ขนาด 100.30 ตารางเมตร และ85.06 ตารางเมตร โดยสามารถซื้อรวมกันทั้ง 2 ห้อง รวมเนื้อที่ 187.96 ตารางเมตร
โมเดลของโครงการ แวร์เด สุขุมวิท 49/15 (Verde Sukhumvit 49/15)
Verde สุขุมวิท 49/15 เป็นโครงการประเภท Low rise สูง 7 ชั้น จากบริษัท ซับเจคทีฟ จำกัด แนวคิดของการสร้างโครงการคือ การคำนึงถึงทุกรายละเอียดเพื่อให้ผู้อยู่อาศัยรู้สึกอบอุ่นและสบายเหมือนอยู่บ้าน โดยให้ความสำคัญกับความสวยงามและความหรูหราควบคู่ไปกับคุณภาพ
“โครงการออกแบบมาในสไตล์ Luxury vintage สะท้อนถึงบุคลิกของคนเมืองที่ต้องการความพิเศษเหนือใคร”

ด้วยสไตล์การตกแต่งอาคารและห้องพักแบบ Luxury Vintage และนำเอานวัตกรรม Thick Solid Wall สร้างผนังที่มีความหนาไม่น้อยกว่า 17 เซนติเมตร เพื่อป้องกันเสียงรบกวนระหว่างยูนิต สร้างความเป็นส่วนตัวสูงให้แก่ผู้พักอาศัย ทำให้เป็นอีกหนึ่งโครงการที่น่าสนใจสำหรับคนที่อยากได้คอนโดเงียบๆ สำหรับพักผ่อนและใกล้กับสถานที่ทำงาน
พื้นที่ส่วนกลางตั้งอยู่บนชั้น 2 แยกออกมาเป็นสระว่ายน้ำกลางแจ้งรูปสี่เหลี่ยมคางหมู เดินมาใช้งานได้สะดวกดี
อาคารฝั่งทิศตะวันตก ช่วงกลางอาคารจะเป็นโถงลิฟต์ และด้านข้างจะเป็นยูนิตพักอาศัยมองเห็นวิวได้ 2 ทิศในทุกยูนิต
ตัวอาคารหันหน้าทางทิศใต้ มีการออกแบบให้อาคารมีช่องลมเปิดโล่งบริเวณกลางอาคาร และปลูกต้นไม้ไว้รอบๆ อาคารเพื่อสร้างพื้นที่สีเขียวไว้ให้ผู้อยู่อาศัยได้ใช้พักผ่อน รวมถึงใช้เป็นช่องว่างระหว่างอาคารข้างเคียงอีกด้วย
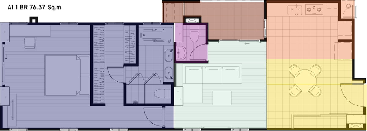
1 BR 76.37 SQ.M
1 BR 76.37 Sq.m.
ห้องตัวอย่างแบบ 1 Bedroom ขนาด 76.37 ตารางเมตร เป็นห้องมุมที่มองเห็นวิวทางทิศใต้ (ด้านกว้าง) ทิศตะวันตก และทิศตะวันออก ถือเป็นห้องที่ออกแบบแผนผังมาให้เหมาะสำหรับการอยู่อาศัยคล้ายกับการวางฟังก์ชันของบ้าน โดยแบ่งพื้นที่ออกเป็นส่วนทำกิจกรรม (ครัว ห้องนั่งเล่นและระเบียง) และส่วนพักผ่อน (ห้องนอน) แยกออกจากกันชัดเจน ทำให้ห้องมีความเป็นส่วนตัวสูง ซึ่งไม่ค่อยมีคอนโดมิเนียมเจ้าไหนทำห้องออกมาในลักษณะนี้
เมื่อเปิดประตูห้องเข้ามาจะเจอกับโถงทางเดินกว้าง ขวามือเป็นโซนครัว มองตรงไปเป็นห้องนั่งเล่น ขวามือของห้องนั่งเล่นจะเป็นห้องน้ำ ซึ่งอยู่ติดกับระเบียง ส่วนห้องนอนจะอยู่แยกส่วนออกไปทำประตูกั้นให้มิดชิดมีความเป็นส่วนตัวสูง นอกจากจะมีจุดเด่นที่ความเป็นส่วนตัวแล้วทุกยูนิตยังทำฝ้าออกมาสูงถึง 2.85 เมตร เพื่อความโปร่ง โล่งสบายมากยิ่งขึ้น
ประตูทางโครงการที่มีให้จะเป็นประตูแบบ Digital Door Lock ของ Yale และยังมี Video Call phone ของ Bticino ที่แขกของลูกบ้านสามารถกดเรียกลูกบ้านได้ตั้งแต่บริเวณล็อบบี้ ลูกบ้านสามารถให้เข้ามาได้เลยตั้งแต่ล็อบบี้ ลิฟต์ มายังห้องของลูกบ้านโดยทีที่ลูกบ้านไม่จำเป็นต้องเดินลงไปรับ
เข้ามาในห้องมุมบริเวณประตูจะมีส่วนขยายออกไปอีก แสดงให้เห็นถึงความกว้างขึ้นของห้อง โดยไม่ได้มีระยะเพียงแค่ผนังประตู ซึ่งในส่วนนี้สามารถทำที่แขวนหรือติดตั้งชั้นลอยเล็กๆ เสริมได้ ส่วนมุมที่ขยายออกไปสามารถจะเป็นส่วนของมุมเก็บของได้ หรือจะวางตู้เก็บรองเท้าก็ทำได้เช่นกัน
มากันที่ครัวกันต่อ ทางโครงการให้ Fix พื้นที่วางตู้เย็นมาให้ สามารถวางตู้เย็นขนาดใหญ่ได้เลย เเต่ตู้เย็นจะเกินมุมสำหรับวางมานิดหน่อย ไม่ค่อยเป็นสัดส่วนเท่าไร ส่วนด้านข้างจะเหลือเป็นพื้นที่โล่ง อาจจะจัดหาตู้ Built-in มาเพิ่มพื้นที่สำหรับเก็บของด้านข้างก็ได้ จะสังเกตเห็นว่าพื้นของห้องครัวจะเปลี่ยนเป็น Homogeneous Tile แทนพื้นไม้ Engineering wood ซึ่งใช้เป็นพื้นห้องนั่งเล่นยาวไปจนถึงห้องนอน
ขยับมาดูพื้นที่ครัวกันบ้าง ครัวที่ได้จะเป็นครัวแบบเปิด Built-in ติดกับผนัง อาจจะไม่เหมาะสำหรับการประกอบอาหารที่มีกลิ่นฉุนหรือควันเยอะๆ เน้นไปทางการทำอาหารเบาๆ ประเภทอบเป็นหลัก โดยโครงการจะให้ชุดครัวหน้าตาตามห้องตัวอย่าง ส่วนจุดวางไมโครเวฟจะเป็นแบบวางบนเคาน์เตอร์ได้เลย เพราะขนาดเคาน์เตอร์มีให้กว้างทีเดียว
เคาน์เตอร์ครัววางตัวเป็นรูปตัว L ตัวเคาน์เตอร์ชิ้นล่างมีลิ้นชักและตู้แบบ Soft-close สำหรับเก็บอุปกรณ์ต่างๆ แยกไว้ให้เป็นสัดส่วน ท็อปของเคาน์เตอร์ครัวจะเป็นแกรนิตมี มีคุณสมบัติเช็ดทำความสะอาดสะดวก ให้ความเงางามเป็นประกาย ทนกรด ทนด่าง และทนรอยขีดข่วน
อ่างล้างจานเป็นแบบหลุ่มคู่ของ Franke แยกหลุมสำหรับล้างแก้วออกต่างหาก พร้อมก๊อกน้ำที่หันเปลี่ยนทิศทาง เพื่อให้สะดวกต่อการใช้งานมากยิ่งขึ้น
ส่วนเตาไฟฟ้า 2 หัวเป็นของ Franke ให้มาพร้อมกับเครื่องดูดควันแบบปล่อยออกนอกอาคาร พื้นผนังด้านหนังกรุกระเบื้องลายหินอ่อน เพื่อป้องกันคราบน้ำมันจาการประกอบอาหารและสามารถเช็ดล้างทำความสะอาดได้ง่ายขึ้น
ที่มุมเคาน์เตอร์ครัวจะมีปลั๊กไฟให้ 2 จุดทั้งซ้าย-ขวา สำหรับเสียบเครื่องใช้ไฟฟ้าอย่างเตาไมโครเวฟ กาน้ำร้อน เป็นต้น
บริเวณส่วนเชื่อมต่อไปยังห้องนั่งเล่นจะเหลือพื้นที่ว่าง กว้างพอให้วางโต๊ะทานอาหารได้สบายๆ
เงยหน้ามองฝ้าด้านบนมีการเล่นระดับฝ้าให้ดูสวยงามเข้ากับไตล์วินเทจ ไฟภายในห้องจะเป็นไฟ Down light และมีเครื่องตรวจจับควันไฟติดมาให้เรียบร้อย
พื้นที่ห้องนั่งเล่นจะเป็นพื้นที่โล่ง เหมาะสำหรับคนที่ชอบแต่งคอนโดด้วยตัวเอง ที่มุมห้องจะติดตั้งเครื่องปรับอากาศมาให้ 1 ตัวเป็นของ Daikin หรือเทียบเท่า
หากจัดวางเฟอร์นิเจอร์ตามห้องตัวอย่างระยะห่างระหว่างทีวีจนถึงโซฟาจะอยู่ที่ 1.7 เมตร เหมาะกับทีวีขนาด 47 นิ้ว แต่ถ้าใครอยากได้ทีวีขนาดใหญ่มากก็อาจจะขยับโซฟาให้ออกมาอีกสักหน่อยก็ยังไหว เพราะด้านหลังเหลือพื้นที่ว่างอยู่อีกมาก และส่วนที่อยู่ติดกับห้องนั่งเล่นจะเป็นห้องน้ำสำหรับแขก และพื้นที่ระเบียง
พื้นห้องน้ำจะลดระดับลงมาจากพื้นด้านนอก เพื่อป้องกันน้ำไหลย้อนออกไป ส่วนพื้นห้องน้ำจะปูด้วย Homogeneous Tile สีเทากันลื่นได้ดี
สุขภัณฑ์ภายในห้องน้ำ Verde Sukhumvit 49/15 คัดสรรมาให้เข้ากับสไตล์การตกแต่งแบบวินเทจ อย่างการเลือกอ่างล้างหน้าแบบขาตั้งพื้นที่มีรูปทรงดูวินเทจเข้ากับคอนเซปต์ของโครงการ โดยสุขภัณฑ์ทั้งหมดจะเป็นของ Kohler ด้านข้างอ่างล้างหน้าจะเป็นชักโครก พร้อมสายฉีดชำระ และที่ใส่กระดาษทิชชู่ หัววาล์วน้ำของโถสุขภัณฑ์และสายฉีด ทำมาแบบแยกออกจากกัน ซึ่งง่ายต่อการซ่อมแซมดี
ส่วนต่อไปจะเป็นพื้นที่ระเบียง อยู่ติดกับห้องนั่งเล่นทำให้ห้องนั่งเล่นดูสว่าง เพราะประตูระเบียงเป็นประตูกระจกแบบบานเลื่อนสองตอน พื้นด้านนอกลดระดับลงไปเล็กน้อย เพื่อป้องกันน้ำไหลย้อนเข้ามาในห้อง
ด้านนอกระเบียงมีขนาดค่อนข้างกว้าง สามารถจัดเป็นมุมกินลม ชมวิวได้ด้วยการหาชุดเก้าอี้สนามมาตั้ง ด้านข้างจัดปลั๊กไฟไว้ให้ใช้งานด้วยอีกจุด ส่วนคอมเพรสเซอร์แอร์จะทำหลบมุมอยู่อีกฝั่ง ทำให้ระเบียงนั่งเล่นไม่โดนลมร้อนจากคอมเพรสเซอร์แอร์โดยตรง
ส่วนราวกันตกห้องจริงจะเป็น Balustrade ซึ่งเป็นดีไซน์แบบวินเทจ ส่วนด้านนอกเป็นเหล็กร็อท ไอร์ออน
กลับเข้ามาในห้องอีกรอบ ส่วนต่อไปที่จะพาเข้าไปชมจะเป็นส่วนห้องนอน ในห้องจริงจะทำการกั้นประตูแยกปิดให้อีกที เพื่อความเป็นส่วนตัว
ช่องทางเดินเชื่อมเข้ามายังห้องนอน แต่ก่อนจะเข้ามาส่วนนี้จะเป็นส่วนของ Walk-in closet และห้องน้ำก่อน
Walk-in closet สร้างแยกออกมาเป็นสัดส่วน ตู้เสื้อจะได้แบบ Built-in หน้าบานเปิดโล่ง มุมห้องจะเป็นหน้าต่าง ตรงนี้อาจจะหาม่านมาใช้บังสายตาเพิ่มเติมเวลาแต่งตัว ส่วนขวามือจะเป็นประตูทางเข้าห้องน้ำ
ขนาดของตู้เสื้อผ้าก็ให้มาค่อนข้างใหญ่ จุเสื้อผ้าได้เต็มที่
ห้องน้ำใหญ่จะค่อนข้างกว้าง แยกส่วนเปียกและส่วนแห้งออกจากกันชัดเจน และจุดเด่นของที่นี่คือได้ อ่างล้างหน้าแบบ His&Her ของ kohler ประเภทแขวนผนัง ท็อปเป็นลายหินอ่อนดูสวยงาม ใช้เป็นพื้นที่วางของเพิ่มเติมได้เลย
รูปแบบอ่างจะเป็นแบบฝังลงบนเคาน์เตอร์ เลือกมาในสไตล์วินเทจอีกเช่นกัน ด้านข้างอ่างติดตั้งปลั๊กไฟมาให้ 2 จุด ใช้เสียบเครื่องใช้ไฟฟ้าอย่างไดร์เป่าผมหรือเครื่องโกนหนวดไฟฟ้าได้ ส่วนกระจกเงาจะได้สเปคตามนี้ ซึ่งเข้ากับสไตล์การแต่งห้องแบบวินเทจได้ดีทีเดียว
มุมซ้ายของห้องน้ำจะเป็นอ่างอาบน้ำ พร้อมฝักบัว ด้านบนมีช่องแสงเล็กๆ ทำให้ห้องน้ำสว่าง และดูไม่อึดอัดมากจนเกินไป
หันมาอีกฝั่งเป็นที่ตั้งของโซนเปียกกั้นด้วย shower box มาให้ เพื่อป้องกั้นน้ำกระเด็นออกมาด้านนอก ส่วนข้างๆ จะเป็นที่ตั้งโถสุขภัณฑ์ ตั้งเหลื่อมหลังผนังเพื่อใช้ผนังบังสายตาได้อีกทาง
โถสุขภัณฑ์ของ kohler พร้อมสายฉีดชำระ และที่ใส่กระดาษทิชชู่
ช่องทางเข้าฝั่งโถสุขภัณฑ์มีราวให้แขวนฉากกั้นเพิ่ม เพื่อสร้างความเป็นส่วนตัว มองเหนือขึ้นไปอีกจะเป็นช่องระบายอากาศ ส่วนไฟในห้องจะเป็นไฟดาวน์ไลท์ ให้แสงสว่างพอประมาณ
ฝักบัวจะได้ทั้งแบบ hand shower และ rain shower ของ kohler เช่นกัน
สำหรับห้องนอนในห้องจริงจะได้มาเป็นห้องเปล่า แต่ติดวอลเปเปอร์มาให้เรียบร้อยเหมือนส่วนอื่นๆ พื้นห้องปูด้วย Engineering wood ทำให้ห้องดูอบอุ่น เหมาะกับการตกแต่งในสไตล์วินเทจ ส่วนขนาดเตียงสามารถวางได้ถึงขนาดคิงไซส์ไม่ได้ติดขัดด้านพื้นที่ เหลือทางให้เดินรอบเตียงได้สบายๆ
มุมห้องจะเป็นมุมหน้าต่าง มองเห็นวิวได้หลายทิศทาง มุมนี้ก็สามารถจัดเป็นมุมนั่งเล่น หรือมุมทำงานก็ดูเหมาะสมเพราะอยู่ใกล้กลับหน้าต่าง ซึ่งเป็นช่องแสงธรรมชาติดีต่อการใช้สายตาในการทำงาน
ห้องนอนติดตั้งแอร์เพิ่มให้ 1 ตัวของ Daikin ปลายเตียงมีหน้าต่างบานคู่เปิดโล่งออกไปเห็นวิวทางทิศใต้
หน้าต่างภายในห้องจะเป็นบานสไลด์ผสมบานฟิกซ์ ออกแบบมาในสไตล์วินเทจเช่นเดียวกัน
ทางฝั่งทิศตะวันตกเองก็มีหน้าต่างอีกสองบาน แต่ในช่วงกลางวันอาจจะโดนแดดมาก แนะนำให้ติดม่านกันยูวีเพิ่มเติมจะดีกว่า เพื่อลดความร้อนจากแสงแดด
พื้นที่ข้างหัวเตียงกว้างประมาณ 50 ซม. สามารถวางโต๊ะข้างๆ หัวเตียงเพิ่มเติมได้ด้วย
Location
ที่ตั้งโครงการ แวร์เด สุขุมวิท 49/15 (Verde Sukhumvit 49/15)
พร้อมพงษ์-ทองหล่อ ทำเลพรีเมียม ที่ตั้งคอนโดระดับไฮเอนด์
แวร์เด สุขุมวิท 49/15 (Verde Sukhumvit 49/15) ตั้งอยู่ในย่านพร้อมพงษ์-ทองหล่อที่หนาแน่นและคราคร่ำไปด้วยผู้คน เพราะเป็นย่านเศรษฐกิจหลักของกรุงเทพมหานคร และถึงแม้จะดูวุ่นวายแต่ทำเลในย่านนี้ก็ยังเป็นที่ต้องการสำหรับกลุ่มคนที่อยากจะอยู่ใกล้กับแหล่งไลฟ์สไตล์ของคนรุ่นใหม่ การจับจองพื้นที่เพื่อสร้างอสังหาริมทรัพย์ในย่านนี้จึงมีอัตราการแข่งขันสูง ด้วยเรื่องจำกัดทางด้านพื้นที่ที่มีน้อยลงเรื่อยๆ และความเจริญที่เข้าถึงอย่างขีดสุด คอนโดทั้งหลายจึงไม่ใช่ระดับกลางแต่เป็นระดับไฮเอนด์ ซึ่งตอบโจทย์คนมีกำลังซื้อคอนโด เพื่ออยู่อาศัยในย่านธุรกิจของประเทศ
แต่ถ้ามองลึกเข้ามายังซอยสุขุมวิท 49/15 ซึ่งเป็นที่ตั้งของโครงการกลับเป็นพื้นที่สงบเงียบ เหมาะกับการอยู่อาศัย แต่ก็ไม่ได้อยู่ห่างไกลจากไลฟ์สไตล์คนเมือง ทั้งด้านสาธารณูปโภคก็มีให้ครบครัน รวมถึงความสะดวกสบายในด้านการเดินทางที่สามารถลัดเลาะไปยังถนนหลักสายต่างๆ ได้ง่ายดาย
การเดินทางไปยัง แวร์เด สุขุมวิท 49/15 (Verde Sukhumvit 49/15)
การเดินทางโดยรถยนต์ส่วนตัว
เส้นทางที่ 1 จากฝั่งถนนรัชดาภิเษก ไปแยกอโศก แล้วเลี้ยวขวาไปยังถนนสุขุมวิท จากนั้นตรงไปเรื่อยๆ จนถึงซอยสุขุมวิท 49 จะสังเกตเห็นห้างทองบ้วนฮั้วล้งอยู่ปากซอย เลี้ยวซ้ายเข้าไปแล้วขับตรงไปยังแยกที่ 15 ซึ่งจะอยู่ทางซ้ายมือ เมื่อเลี้ยวเข้าไป ขับตรงประมาณ 100 กว่าเมตรก็จะถึงคอนโด Verde Sukhumvit 49 (แวร์เด สุขุมวิท 49) ทางขวามือ
เส้นทางที่ 2 จากถนนเพชรบุรีตัดใหม่ ขับตรงมาเรื่อยๆ จนถึงป้ายแยกพร้อมพงษ์ ให้เลี้ยวเข้าถนนเพชรบุรี 38/1 จากนั้นให้ขับตรงมาจนถึงทางเลี้ยวด้านซ้ายเข้าซอยสุขุมวิท 39 ขับตรงประมาณ 700 เมตร เลี้ยวซ้ายเข้าซอยพร้อมศรี 1 จากนั้นเลี้ยวซ้ายเข้าซอยสุขุมวิท 49 ตรงไปประมาณ 500 เมตรก็จะถึงแยกที่ 15 ซึ่งจะอยู่ทางซ้ายมือ เมื่อเลี้ยวเข้าไป ขับตรงประมาณ 100 กว่าเมตรก็จะถึงคอนโด Verde Sukhumvit 49 (แวร์เด สุขุมวิท 49) ทางขวามือ
การเดินทางโดยรถสาธารณะ

การเดินทางจากคอนโด แวร์เด สุขุมวิท 49/15 ไปยังสถานที่อื่นๆ นอกจากรถยนต์ส่วนตัวแล้ว ยังมีรถกระป๊อให้บริการรับ-ส่งในซอยไปยัง BTS หรือสามารถเรียกวินมอเตอร์ไซค์ได้ สามารถต่อได้ทั้งรถเมล์และรถไฟฟ้า
การเดินทางโดยรถไฟฟ้า
คอนโด Verde Sukhumvit 49 (แวร์เด สุขุมวิท 49) อยู่ใกล้รถไฟฟ้าหลายสถานี ได้แก่ ทองหล่อ พร้อมพงษ์ และอโศก
นอกจากนี้ยังสามารถขึ้นรถไฟฟ้ามหานคร MRT สถานีสุขุมวิทได้อีกด้วย โดยทางออกที่ใกล้ที่สุดของแต่ละสถานีจะเป็นดังนี้
รถไฟฟ้า BTS สถานีพร้อมพงษ์ ให้ขึ้นที่ทางออกที่ 3
รถไฟฟ้า BTS สถานีทองหล่อ ให้ขึ้นที่ทางออกที่ 1รถไฟฟ้า MRT สถานีสุขุมวิท ให้ขึ้นที่ทางออกที่ 1
Environment
สภาพแวดล้อมโครงการแวร์เด สุขุมวิท 49/15 (Verde Sukhumvit 49/15)
คอนโด แวร์เด สุขุมวิท 49/15 (Verde Sukhumvit 49/15) อยู่บริเวณศูนย์กลางเศรษฐกิจ เต็มไปด้วยความเจริญและทันสมัย ครบครันทั้งแหล่งชอปปิ้ง ห้างสรรพสินค้า ร้านอาหาร ร้าน Hangout สถานที่ราชการ โรงพยาบาล บริษัทยักษ์ใหญ่ ฟิตเนสคลับและสวนสาธารณะ ทำให้เป็นพื้นที่ทำเลศักยภาพการลงทุนที่ถูกจับตามองจากคนไทยและชาวต่างชาติ ที่ดินและอสังหาริมทรัพย์ราคามีแนวโน้มขึ้นสูงเรื่อยๆ
สุขุมวิท 49 พื้นที่ทำเลศักยภาพการลงทุนที่ถูกจับตามองจากคนไทยและชาวต่างชาติ
ในย่านนี้เป็นแหล่งรวมตัวของผู้อยู่อาศัยหลากสัญชาติ โดยเฉพาะคนญี่ปุ่น ทำให้ร้านค้าและธรุกิจ รวมไปถึงป้ายบอกทางส่วนใหญ่มีภาษาญี่ปุ่นด้วย ด้วยพื้นที่ทำเลย่านนี้มีราคาสูงมากเพราะครบครันทุกความต้องการ และการคมนาคมก็สะดวก สามารถเดินทางไปยังสถานที่ต่างๆ ได้อย่างรวดเร็ว ใกล้ๆบริเวณโครงการแวร์เด สุขุมวิท 49 รายล้อมไปด้วยบ้านผู้มีชื่อเสียง นักการเมืองและนักธุรกิจมากมาย ถึงจะเป็นย่านเศรษฐกิจที่คึกคักมาก แต่ภายในสุขุมวิท 49/15 นั้นกลับค่อนข้างมีความเป็นส่วนตัวและสงบ แวร์เด สุขุมวิท 49/15 จึงเป็นคอนโดระดับไฮเอนด์ที่มองหาผู้อาศัยที่รักไลฟ์สไตล์แบบสะดวกและครบครัน ใส่ใจคุณภาพชีวิตของตัวเองควบคู่ไปกับรสนิยมดีๆ
ภายในซอยสุขุมวิท 49/15 มีความเป็นส่วนตัวและค่อนข้างสงบ ทำให้พักผ่อนได้อย่างเต็มที่ไม่มีสิ่งรบกวน
โรงเรียนนานาชาติ The American School of Bangkok อยู่ในย่านนี้ มีรถรับ-ส่ง ช่วยอำนวยความสะดวกและความปลอดภัยให้กับเด็กและผู้ปกครองที่อาศัยแถวนี้มากขึ้น
มีห้างสรรพสินค้าและมินิมาร์ทมากมาย ไม่ต้องห่วงด้านอาหารการกิน เพราะอาหารหลากหลายจนไม่มีเบื่อ
โรงพยาบาลสมิติเวช เป็นอีกโรงพยาบาลเอกชนที่มีชื่อเสียงมาก
วิลล่า มาร์เก็ท อยู่ไม่ไกลจากคอนโดมากนัก สามารถซื้อของสดคุณภาพดีไปประกอบอาหารทานเองได้
นอกจากร้านอาหารญี่ปุ่นแล้ว เครื่องอุปโภคต่างๆ อย่างเสื้อผ้า ก็เป็นสไตล์ญี่ปุ่นหลายร้านเลยทีเดียว
มีท่ารถวินมอเตอร์ไซค์อยู่ตรงข้ามกับวิลล่า มาร์เก็ท
ถัดจากวิลล่า มาร์เก็ท เป็น The 49 Terrace มีร้านค้าให้เลือกซื้อและใช้บริการมากมายเช่นเดียวกัน
ภายใน The 49 Terrace จัดพื้นที่ค่อนข้างร่มรื่น เหมาะกับการนั่งผ่อนคลายได้ดี
เมื่อเดินออกมาถนนสุขุมวิทจะเรียงรายไปด้วยร้านสำหรับ Hangout และร้านอาหารญี่ปุ่น
อย่างไรก็ตามยังมีร้านเก่าๆหลงเหลืออยู่บ้าง เต็มไปด้วยเสน่ห์เชิญชวนเข้าไปดู
คนไทยทำงานออฟฟิศจะอยู่บริเวณนี้เยอะเช่นกัน เพราะมีอาคารสำนักงานให้เช่าหลายตึก
นอกจากอาคารให้สำนักงานเช่า ยังมีโรงแรมและที่พักชั่วคราวมากมาย
มีรถเมล์ผ่านบริเวณแยกอโศกหลายสาย ทำให้สามารถเดินทางได้หลายเส้นทาง
ทั้งผู้คนหลากสัญชาติและรถต่างก็สัญจรไป-มามากมายในย่านเศรษฐกิจนี้
คอนโดใกล้ห้างสรรพสินค้าใหญ่ๆหลายห้าง เช่น Terminal 21, Emporium และ Em Quateir
Analysis
วิเคราะห์โครงการ แวร์เด สุขุมวิท 49/15 (Verde Sukhumvit 49/15)
ทำเล ซอยสุขุมวิท 49
ซอยสุขุมวิท 49/15 เป็นทำเลที่เหมาะสำหรับการอยู่อาศัยอย่างแท้จริง เนื่องจากมีความเงียบสงบเหมาะสมสำหรับการพักผ่อน แต่กลับสะดวกสบายด้วยการเดินทาง และมีสิ่งอำนวยความสะดวกอยู่รายล้อมโครงการมากมาย ไม่ว่าจะเป็นรถไฟฟ้า ห้างสรรพสินค้าหรู หรือเส้นทางการเดินทางที่สามารถลัดเลาะไปยังถนนเส้นสำคัญสายต่างๆ ได้ง่าย แทบไม่ต้องขวนขวายออกไปเผชิญรถติดที่ถนนใหญ่ให้เสียเวลา
การเดินทางด้วยรถยนต์
ถ้าตัดเรื่องรถติดในซอยออกไป การเดินทางด้วยรถยนต์ส่วนตัวถือว่าอยู่ในระดับที่สะดวกสบายมาก เพราะเชื่อมต่อถึงถนนเส้นหลักถึง 2 สาย ไม่ว่าจะเป็น...
เส้นทางที่ 1 จากฝั่งถนนรัชดาภิเษก ไปแยกอโศก แล้วเลี้ยวขวาไปยังถนนสุขุมวิท จากนั้นตรงไปเรื่อยๆ จนถึงซอยสุขุมวิท 49 จะสังเกตเห็นห้างทองบ้วนฮั้วล้งอยู่ปากซอย เลี้ยวซ้ายเข้าไปแล้วขับตรงไปยังแยกที่ 15 ซึ่งจะอยู่ทางซ้ายมือ เมื่อเลี้ยวเข้าไป ขับตรงประมาณ 100 กว่าเมตรก็จะถึงคอนโด Verde Sukhumvit 49 (แวร์เด สุขุมวิท 49) ทางขวามือ
เส้นทางที่ 2 จากถนนเพชรบุรีตัดใหม่ ขับตรงมาเรื่อยๆ จนถึงป้ายแยกพร้อมพงษ์ ให้เลี้ยวเข้าถนนเพชรบุรี 38/1 จากนั้นให้ขับตรงมาจนถึงทางเลี้ยวด้านซ้ายเข้าซอยสุขุมวิท 39 ขับตรงประมาณ 700 เมตร เลี้ยวซ้ายเข้าซอยพร้อมศรี 1 จากนั้นเลี้ยวซ้ายเข้าซอยสุขุมวิท 49 ตรงไปประมาณ 500 เมตรก็จะถึงแยกที่ 15 ซึ่งจะอยู่ทางซ้ายมือ เมื่อเลี้ยวเข้าไป ขับตรงประมาณ 100 กว่าเมตรก็จะถึงคอนโด Verde Sukhumvit 49/15
ส่วนเส้นทางอื่นๆ ที่สามารถเดินทางด้วยรถยนต์ส่วนตัวจากที่ตั้งโครงการไปได้ จะเป็นซอยย่อยๆ ซึ่งเป็นทางหนีทีไล่ให้หลีกเลี่ยงรถติดบนถนนใหญ่ได้ อย่างเช่น การเดินทางลัดเลาะจากซอยสุขุมวิท 55 (ทองหล่อ), สุขุมวิท 63 (เอกมัย), สุขุมวิท 39, สุขุมวิท 31 และสุขุมวิท 23 ซึ่งซอยเหล่านี้สามารถเชื่อมต่อถึงกันได้ทั้งหมด ถือว่าช่วยย่นระยะการเดินทางจากถนนใหญ่ให้รวดเร็วยิ่งขึ้น
การเดินทางด้วยระบบขนส่งสาธารณะ
สำหรับการเดินทางด้วยระบบขนส่งสาธารณะอาจจะไม่สะดวกสบายมากเท่าไรนัก เพราะโครงการอยู่ในซอยที่ค่อนข้างลึกต้องต่อรถมอเตอร์ไซค์รับจ้าง หรือรถกระป๊อเข้าไปยังตัวโครงการ โดยระยะทางห่างจากปากซอยประมาณ 1.8 กม. แต่ถ้ามองถึงศักยภาพในการเข้าถึงรถไฟฟ้า ก็ถือว่าเป็นทำเลที่เดินทางไปยังสถานีรถไฟฟ้าได้หลายสถานีด้วยกัน ไม่ว่าจะเป็น...
รถไฟฟ้า BTS สถานีพร้อมพงษ์ ให้ขึ้นที่ทางออกที่ 3
รถไฟฟ้า BTS สถานีทองหล่อ ให้ขึ้นที่ทางออกที่ 1
รถไฟฟ้า MRT สถานีสุขุมวิท ให้ขึ้นที่ทางออกที่ 1
สภาพแวดล้อมรอบโครงการ
รอบโครงการ แวร์เด สุขุมวิท 49/15 (Verde Sukhumvit 49/15) เป็นทำเลที่แวดล้อมไปด้วยบ้านเดี่ยวหลังใหญ่ของคนในชุมชนดั้งเดิม ทำให้เป็นพื้นที่เงียบสงบเน้นการอยู่อาศัยเป็นหลักและมีความเป็นส่วนตัวสูง เหมาะสำหรับคนที่ต้องการคอนโดเงียบๆ ใช้พักผ่อนในช่วงวันหยุดและอยากจะตัดขาดชีวิตวุ่นวายในเมืองออกไป แต่ถ้าวันไหนอยากจะออกไปเที่ยว เปิดหูเปิดตา เมื่อเดินทางออกมาช่วงกลางซอยหรือช่วงต้นซอยสุขุมวิท ก็จะเจอกับความเจริญและทันสมัย ครบครันทั้งแหล่งชอปปิง ห้างสรรพสินค้า ร้านอาหาร ร้าน Hangout สถานที่ราชการ โรงพยาบาล บริษัทยักษ์ใหญ่ ฟิตเนสคลับและสวนสาธารณะ ทำให้เป็นพื้นที่ทำเลศักยภาพการลงทุนที่ถูกจับตามองจากคนไทยและชาวต่างชาติ
แบบห้องของโครงการ
สำหรับแบบห้องของโครงการ แวร์เด สุขุมวิท 49/15 (Verde Sukhumvit 49/15) มีให้เลือก 3 แบบ แต่ในปัจจุบันเหลืออยู่ 2 แบบ คือ 1 bedroom พื้นที่ใช้สอย 45.35-76.37 ตร.ม. และ 2 bedrooms พื้นที่ใช้สอย 78-106.46 ตร.ม. ส่วน Type ห้องจะแบ่งออกเป็น 13 Type มีให้เลือกหลากหลายรูปแบบและหลายขนาดตามสไตล์ส่วนตัว โครงการเน้นความเป็นส่วนตัวสูงโดยออกแบบให้ยูนิตให้มีเพียง 31 ยูนิต ต่อชั้นตกอยู่ที่ 6 ยูนิตเท่านั้น ทำให้ได้ไซส์ห้องขนาดใหญ่กว่าคอนโดมิเนียมในเจ้าอื่นๆ ด้านการจัดวางเลย์เอาท์จะเเบ่งพื้นที่หลักๆ ออกเป็นส่วนทำกิจกรรมและส่วนพักผ่อน โดยออกแบบมาให้เหมือนกับ ‘บ้าน’ ที่มีความเป็นส่วนตัวสูง และมีพื้นที่ใช้สอยกว้างขวาง ทางโครงการขายห้องแบบ Fully Fitted ให้ชุดครัว ชุดสุขภัณฑ์และเครื่องปรับอากาศ เหมาะสำหรับคนมีงบประมาณในการตกแต่งคอนโดเพิ่มเติมเอง
สิ่งอำนวยความสะดวกของโครงการ
เนื่องจากพื้นที่ค่อนข้างมีจำกัดทำให้ไม่ได้จัดเต็มเรื่องพื้นที่ส่วนกลาง แต่ก็ไม่ใช่ว่าจะไม่มีให้เลย ตัวโครงการ Verde Sukhumvit 49/15 เน้นพื้นที่สีเขียวล้อมรอบอาคาร เพื่อสร้างช่องว่างให้โครงการมีความเป็นส่วนตัวและอยู่ห่างจากอาคารบ้านเรือนใกล้เคียงมากที่สุด ส่วนกลางหลักๆ จะมีล็อบบี้สไตล์วินเทจ, สระว่ายน้ำ Infinity edge pool ดีไซน์สี่เหลี่ยมคางหมู ขนาด 12×5 เมตร, ห้องฟิตเนสและห้องสตีมแยกชาย-หญิง
ส่วนความปลอดภัย ก็อุ่นใจด้วยระบบรักษาความปลอดภัย 24 ชั่วโมง พร้อมกล้อง CCTV ครอบคลุมทั้งโครงการ เข้า-ออกด้วยระบบ Keycard access และ Video door phone ให้ทุกการเข้าถึงเป็นสิทธิ์เฉพาะตัว
ราคาและความคุ้มค่า
ราคาเฉลี่ยต่อตารางเมตรอยู่ที่ 164,444 บาท เริ่มต้นที่ 7.4 ล้านบาท อาจจะมองว่าเป็นเรทราคาที่สูงเกินเอื้อมไปสักหน่อย แต่ถ้ามองในแง่ของทำเลย่านพร้อมพงษ์-ทองหล่อแล้วก็ถือว่าเป็นเรทราคาปกติ เพราะที่ดินย่านนี้มีราคาสูง เนื่องจากอยู่ใกล้ความสะดวกสบายและแหล่งธุรกิจหลักของกรุงเทพมหานคร ยิ่งถ้ามองถึงสาธารณูปโภคที่ตอบโจทย์ไลฟ์สไตล์ของคนสมัยใหม่ประกอบคู่กับการเดินทางที่สะดวกสบายลัดเลาะได้หลายเส้นทางด้วยเเล้ว ก็ถือว่าสมน้ำสมเนื้อกับราคาที่ต้องจ่ายไป
คอนโด แวร์เด สุขุมวิท 49/15 (Verde Sukhumvit 49/15) เหมาะสำหรับคนที่กำลังตามหาคอนโด Low rise ในย่านพร้อมพงษ์-ทองหล่อ เน้นความเป็นส่วนตัวที่โอบล้อมด้วยสิ่งอำนวยความสะดวกทั้งการเดินทางและการใช้ชีวิต อยากได้ห้องขนาดใหญ่ที่ให้ความรู้สึกเหมือนอยู่บ้าน และมีงบประมาณในกระเป๋ามากพอที่จะซื้อและตกแต่งเพิ่มเติมเอง
Verde Sukhumvit 49/15
58e1d1c2719b2bc4ff135736
แวร์เด-สุขุมวิท-49-15-verde-sukhumvit







































































