[Review] สมดุลแห่งความแตกต่างที่ลงตัว ทั้งสีสันและความสงบ พบความหรูหราสุดพิเศษหนึ่งเดียวที่ ‘The ESSE Sukhumvit 36’
ถนนสุขุมวิท แขวงพระโขนง เขตคลองเตย กรุงเทพมหานคร

HIGHLIGHTS
ความสงบและความหรูหราสุดพิเศษ
ที่ตรงข้ามกับชีวิตในเมืองที่วุ่นวาย
- พื้นที่จอดรถ 100% มาพร้อม Automatic Car Parking 70% ของจำนวนพื้นที่จอดรถทั้งหมด
- สะดวกทุกรูปแบบการเดินทาง ตั้งอยู่ใจกลางเมืองบนถนนสุขุมวิท ติดสถานีรถไฟฟ้า BTS ทองหล่อ ไม่ว่าจะเดินทางโดยรถยนต์ส่วนตัว หรือใช้บริการขนส่งสาธารณะก็ถึงที่หมายได้ทันใจ ในเวลาอันรวดเร็ว
- ฟังก์ชันยูนิตที่กว้างขวาง ออกแบบมาเพื่อตอบสนองความต้องการของผู้อยู่อาศัยในขนาดยูนิตที่หลากหลายตั้งแต่ 38.50-252.00 ตร.ม.
- ให้ความเป็นส่วนตัวและสงบเหนือระดับ ด้วย Single Loaded Corridor และจำนวนยูนิตสูงสุดเพียง 12 ยูนิตต่อชั้นเท่านั้น
- มอบสมดุลระหว่างการใช้ชีวิตแบบสังคมกับความเป็นส่วนตัว ด้วยรูปแบบ Facility ที่มีทั้ง function ใช้งานร่วมกัน และแบบแยกเป็นพื้นที่ส่วนตัว
Project Review
The ESSE Sukhumvit 36 โครงการระดับ Ultimate luxury condomunium ในคอนเซ็ปต์ ‘สมดุลแห่งความแตกต่าง' ด้วยความสงบและความหรูหราสุดพิเศษที่ตรงข้ามกับชีวิตในเมืองที่วุ่นวายนั้น คือการได้หลบหนีจากชีวิตในเมืองที่วุ่นวายไปสู่สถานที่ที่ช่วยให้จิตใจได้รับการพักผ่อน และยังเป็นสถานที่ที่คุณสามารถเป็นตัวของตัวเองได้อย่างแท้จริง
“ โดยร่วมทุนระดับโลกกับ Hongkong Land และทีมงานระดับโลกในการดีไซน์คอนเซปต์และให้คำปรึกษาในการออกแบบโครงการอย่าง SOM บริษัทด้านการออกแบบสถาปัตยกรรมที่ใหญ่ที่สุด และมีอิทธิพลมากที่สุดในโลก, Shma บริษัทที่เชี่ยวชาญด้าน Landscape Architecture and Urban Design, dwp ผู้มีชื่อเสียงด้านการออกแบบ มีประสบการณ์ด้านการออกแบบให้กับโครงการหรูต่าง ๆ ทั้งไทยและต่างประเทศ "
รายละเอียดโครงการ The ESSE Sukhumvit 36
ชื่อโครงการ : The ESSE Sukhumvit 36 (ดิ เอส สุขุมวิท 36)
เจ้าของโครงการ : บริษัท เอส36 พร็อพเพอร์ตี้ จำกัด (บริษัทร่วมทุนระหว่างสิงห์เอสเตทและฮ่องกงแลนด์)
ที่ตั้งโครงการ : ถนนสุขุมวิท แขวงพระโขนง เขตคลองเตย
พื้นที่โครงการ : 2-2-0 ไร่
ลักษณะโครงการ : High Rise สูง 43 ชั้น 1 อาคาร
จำนวนห้อง : 338 ยูนิต
รูปแบบห้อง :
- 1-Bedroom 38.50-43.25 sq.m.
- 2-Bedroom 73.50-77.00 sq.m.
- 3-Bedroom 116.75-124.25 sq.m.
- Penthouse 252.00 sq.m
ที่จอดรถ : 100% (Automatic Car Parking 70%)
ราคาเริ่มต้น : 12.6 ลบ. ล้านบาท (โปรโมชัน 11.9 ลบ. ลงทะเบียนรับส่วนลดเพิ่ม 100,000 บาท คลิก ถึงวันที่ 15 พย.นี้เท่านั้น)
Floor Plan และพื้นที่ส่วนกลางโครงการ The ESSE Sukhumvit 36
Ground Floor Plan ของ The ESSE Sukhumvit 36 ออกแบบให้ตัวอาคารส่วนที่พักอาศัยถอยร่นห่างออกจากถนนใหญ่เข้ามา 84 เมตร พร้อมขั้นด้วยพื้นที่สีเขียว เพื่อความสงบเงียบ เป็นส่วนตัวสำหรับผู้อยู่อาศัย พื้นที่โครงการอยู่ติดกับถนนสุขุมวิท ดังนั้นเมื่อเข้ามาถึงด้านใน เราจะเจอกับสวนสีเขียวก่อนเป็นลำดับแรก ตามมาด้วยชานทางเดิน ที่จะพบกับมุมนั่งเล่นและ Thirty six lounge มุมนั่งเล่นแยกส่วนจากตัวอาคาร ติดกันจะเป็นทางเข้าสำหรับ Automatic Car Parking ของรถ Sedan ตามมาด้วยจุด Drop Off และทางขึ้นลานจอดรถปกติ สำหรับ Automatic Car Parking ของรถ SUV นั้น จะอยู่ด้านหลังของอาคาร ด้านในอาคารอยู่อาศัยนั้น ที่ชั้นนี้จะเป็นพื้นที่ของ Lobby, Mailbox และโถงลิฟต์บริการ 4 ตัวแบบล็อกชั้นพร้อมลิฟต์ขนของแยกอีก 1 ตัว
A HARMONY OF CONTRAST
AUTHENTIC AND CONTEMPORARY
‘มอบสมดุลความแตกต่างระหว่างสถาปัตยกรรมแบบภูมิปัญญาไทยกับการออกแบบที่เป็นสากล’ ไปสู่ความเป็น Iconic ของตัวโครงการ The ESSE Sukhumvit 36 ให้ชีวิตอยู่กึ่งกลางความสมดุลแห่งศิลปะ รูปทรงโค้งได้รับแรงบันดาลใจมาจากจั่วเรือนไทย ทําจาก GRC และ Aluminium composite ขึ้นรูปพิเศษเฉพาะสำหรับโครงการ The ESSE Sukhumvit 36 พร้อมด้วยกระจกฉนวนกันความร้อน หรือกระจกอินซูเลท ที่มีประสิทธิภาพในการลดการถ่ายเทความร้อนจากภายนอกเข้าสู่ภายในตัวอาคารได้เป็นอย่างดีถึง 45% จึงช่วยลดการใช้พลังงานในอาคารได้มากทีเดียว นอกจากนี้ โถงอาคารก็ได้รับแรงบันดาลใจมาจากใต้ถุนสูงของบ้านไทย จึงออกแบบโดยสร้างช่องลมผ่านกลางตัวอาคาร ทำให้อากาศไหลผ่านได้ดีอีกด้วย
The ESSE Sukhumvit 36 เป็นโครงการแรกของสิงห์ที่ใช้ระบบ Auto parking นี้ โดยมีลิฟท์มาให้ถึง 4 ตัว ใช้เวลารอเฉลี่ยเพียง 3 นาทีในช่วงเวลาเร่งด่วน โดยตัว Auto parking นี้ จะแบ่งความสูงของรถเอาไว้ ดังนั้นจะมีลิฟท์สำหรับ Sedan 2 ตัว และมีลิฟท์สำหรับ SUV อีก 2 ตัว คิดเป็น 70% ของพื้นที่จอดทั้งหมดเมื่อรวมกับพื้นที่จอดรถแบบ Conventional มาพร้อม EV Charger 7 ที่ แบ่งเป็นของ Penthouse 4 ที่, Supercar 2 ที่ และทั่วไปอีก 1 ที่ให้ด้วย
เริ่มต้น Facilities ส่วนแรกของโครงการด้วยสวนสีเขียวด้านหน้า ที่ได้รับแรงบันดาลใจมาจากภูมิประเทศท้องถิ่นและนาขั้นบันได ภายในประดับตกแต่งไปด้วยต้นไม้พันธุ์ท้องถิ่นไทยหลากหลาย เช่น ต้นไม้มงคลอย่างต้นนางกวักและต้นมั่งมี และ Golden ears of rice Sculpture หรือรวงทอง ที่ออกแบบโดยได้รับแรงบันดาลใจจากรวงข้าวสีทอง
พร้อมพื้นที่นั่งเล่นพักผ่อนหย่อนใจ ให้คุณได้สัมผัสธรรมชาติสีเขียวที่หาได้ยากยิ่งในเมือง นอกจากนี้ พื้นที่ส่วนนี้ก็ยังทำหน้าที่เป็น Buffer ระหว่างตัวอาคารพักอาศัยกับถนนใหญ่ ให้ความรู้สึกเป็นส่วนตัว ปราศจากเสียงรบกวน และให้ความรู้สึกสบายใจ เมื่อได้อยู่ใกล้ชิดกับธรรมชาติ
" พื้นที่สีเขียวของโครงการ The ESSE Sukhumvit 36 คิดเป็น 30% ของที่ดินทั้งหมด โดยสวนสีเขียวบริเวณชั้น G มีขนาด 800 ตร.ม. ส่วนบนอาคารมีขนาดอยู่ที่ 400 ตร.ม. "
ติดกับสวนสีเขียวจะเป็น Thirty six lounge ห้องรับรองสำหรับแขก และเป็นพื้นที่สำหรับลูกบ้านให้สามารถแวะเข้ามานั่งพักผ่อนอ่านหนังสือ กับบรรยากาศของสวนที่เงียบสงบได้ ด้วยความที่ส่วนนี้แยกออกจาก Lobby ทําให้ลูกบ้านได้รับความเป็นส่วนตัวมากขึ้น อีกทั้งยังมีมุมเครื่องดื่มให้บริการ ดังนั้นคุณจึงสามารถเข้ามาใช้พื้นที่ได้ทั้งการนั่งทำงาน, อ่านหนังสือ, นัดพบคนสำคัญ และอื่น ๆ โดยภายในตกแต่งด้วย Chandelier ทอจากเส้นใยทองเหลือง ที่ได้รับแรงบันดาลใจจากผ้าไหมไทย มีความหรูหรา ลงตัว เข้ากับบรรยากาศโดยรอบของโครงการ
บริเวณทางเชื่อมจาก Thirtysix lounge ไปยัง Lobby ออกแบบเหมือนใต้ถุนสูงของบ้านไทยสมัยก่อน ช่วยให้ลมพัดผ่านสบาย วางแปลนเหมือนเป็นชานบ้านที่เชื่อมเรือนต่าง ๆ ของบ้านไทย (เรือนรับรอง, เรือนที่พักส่วนตัว) ตัวพื้นปูด้วยวัสดุหินแท้ Picazzo Grey บางส่วนใช้วิธีปูแบบ Buzon (ระบบที่ยกแผ่นหินขึ้นมาไม่ให้สัมผัสพื้นด้านล่างโดยตรง) ทําให้หินหายใจได้ ไม่มีลักษณะของหินด่างเป็นจํ้าเพราะนํ้าที่ซึมขึ้นมา ถือเป็นการออกแบบที่ใส่ใจในทุก ๆ รายละเอียดอย่างแท้จริง
ส่วนของ Lobby ก็ตกแต่งด้วย Chandelier ทอจากเส้นใยทองเหลืองอีกเช่นกัน ส่วนลาย pattern ของพื้นได้รับแรงบันดาลใจจากลายฝาปะกนของบ้านไทย โทนด้วยรวมเล่นคู่สีที่สื่อถึงความเป็นไทย แต่ยังคงความหรูหราในแบบสมัยใหม่ไว้ร่วมกันได้อย่างลงตัว พื้นที่ส่วนนี้สามารถใช้เป็น Waiting area สำหรับคอย Auto parking ได้ ทั้งยังเป็นพื้นที่ Conceige Service สำหรับดูแลลูกบ้าน ติดต่อประสานงานบริการต่าง ๆ เช่น ร้านอาหาร, สปา, ซักรีด, รถรับส่ง, สำรองพื้นที่ Facilities ภายในโครงการ
นอกจากนี้ก็ยังมีส่วนของ Mailbox แยกออกมาเป็นสัดส่วนสวยงามและเป็นระเบียบ ให้ลูกบ้านทุกคนสามารถเข้ามาเช็กจดหมายส่วนตัวของท่านได้ทุกวัน
ด้านหน้าห้อง Mailbox ออกแบบให้เหมือนกับประตูบ้านโบราณ แต่แฝงมาด้วยความโมเดิร์นเข้ากับยุคสมัยใหม่ ทั้งยังติดตั้งเครื่องฟอกอากาศ IQ Air มาตรฐานเดียวกับโรงพยาบาล กรองได้ทั้ง PM 2.5, แบคทีเรีย, ไวรัส ให้ในบริเวณพื้นที่สวนกลาง Indoor ทุกส่วนของโครงการ
ถัดเข้าไปด้านในจากส่วน Lobby จะเป็นพื้นที่ของโถงลิฟท์ ที่มีลิฟท์โดยสารสำหรับลูกบ้านให้บริการทั้งหมด 4 ตัว เป็นระบบแบบล็อกชั้น ใช้วิธีการกดเรียกลิฟท์ด้วยการแตะบัตรและสัมผัสหน้าจอเพื่อกดเลือกชั้นที่ต้องการ จากนั้นหน้าจอจะแสดงตำแหน่งของลิฟท์ที่พร้อมให้บริการกับเรา ถือได้ว่าเป็นเทคโนโลยีที่อำนวยความสะดวกสบาย และช่วยเพิ่มความปลอดภัยให้กับลูกบ้านได้เป็นอย่างดี
A HARMONY OF CONTRAST
SOCIETY AND EXCLUSIVITY
เพลิดเพลินไปกับสิ่งอำนวยความสะดวกเพื่อการพักผ่อนที่หลากหลาย ออกแบบมาเพื่อให้ตรงกับความต้องการของผู้อยู่อาศัย มอบสมดุลแห่งความต่างระหว่างการใช้ชีวิตแบบสังคมกับความเป็นส่วนตัว ไปสู่รูปแบบของ Facility ที่มีทั้ง function ที่ใช้งานร่วมกัน และแยกเป็นพื้นที่ส่วนตัว โดยพื้นที่ส่วนกลางแรกจะอยู่ที่บริเวณชั้น 7 ส่วนนี้จะประกอบไปด้วย Swimming Pool, พื้นที่สีเขียว, Kid’s Room, Private Spa Room, Steam Room และ Onsen
Swimming Pool ระบบเกลือของโครงการ The ESSE Sukhumvit 36 ตั้งอยู่ท่ามกลางบรรยากาศอันร่มรื่นของแมกไม้ขนาดใหญ่ ที่ให้ร่มเงาและสัมผัสเย็นสบายทุกครั้งที่ได้มาเยือน ทั้งยังรับลมเย็นพร้อมวิวเมืองอันสวยงามได้จากจุดนี้อีกด้วย
ข้างสระตลอดแนวความยาว ทางโครงการเตรียมพื้นที่พักผ่อนเอาไว้ให้อย่างจุใจ ให้คุณได้เหยียดกายพักผ่อนหลังจากการว่ายน้ำออกกำลังกาย หรือสำหรับครอบครัวที่มีคุณหนูตัวน้อย พื้นที่ส่วนนี้คุณพ่อคุณแม่ก็สามารถนั่งคอยลูก ๆ ได้อย่างใกล้ชิด
นอกจากนี้ภายในสระก็ยังมีส่วนของ Jacuzzi ที่มาพร้อมแรงดันน้ำสำหรับนวดผ่อนคลายร่างกาย และ Kid’s Pool สระน้ำตื้นสำหรับเด็ก ๆ
หากคุณหนู ๆ ยังอยากสนุกกันต่อ ติดกันก็ยังมี Kid’s Room ห้องของเล่นเด็กสำหรับเด็ก ๆ ที่จัดตกแต่งอย่างน่ารัก มาพร้อมของเล่นหลากหลายชนิดที่ช่วยเสริมสร้างจินตนาการและพัฒนาการสำหรับเด็ก ๆ
สำหรับผู้ที่ชื่นชอบการนวดผ่อนคลาย ที่นี่ก็มี Private Spa ห้องทรีตเมนต์ที่เพียงคุณจองใช้บริการล่วงหน้า ก็สามารถนัดหมายผู้นวดเข้ามาดูแลให้บริการคุณได้อย่างเป็นส่วนตัว ไม่ว่าจะเป็นวันที่เหนื่อยล้าของคุณ หรือวันหยุดสุดสัปดาห์ที่ต้องการชาร์จพลังงานจากอาทิตย์ที่เหนื่อยล้า ก็ไม่จำเป็นต้องเดินทางออกไปร้านสปาให้เสียเวลาและพลังงานของคุณแต่อย่างใด
ทางด้านของห้องน้ำ จะแยกฝั่งส่วนชายและหญิง ภายในมีล็อกเกอร์เก็บของสำหรับฝากของใช้ส่วนตัวสำหรับผู้ที่มาใช้บริการสระว่ายน้ำ มีอ่างล้างมือและถังขยะระบบอัตโนมัติให้บริการ
ห้องน้ำมาพร้อมระบบ Flushing แบบสัมผัสที่ทันสมัย แยกออกจากห้องอาบน้ำอย่างเป็นสัดส่วน บานประตูเป็นวัสดุกระจกเงา ให้คุณเช็กความเรียบร้อยก่อนออกจากห้องน้ำได้ในตัว
ถัดเข้าไปด้านในจะเป็นส่วนของห้อง Onsen ที่ซ่อนหลบหนีความวุ่นวายอยู่อย่างลับ ๆ เปิดเข้ามาส่วนแรกจะเป็นล็อกเกอร์เก็บของสำหรับผู้ที่เข้ามาใช้บริการ
ด้านในเมื่อเปิดเข้ามาจะเจอกับห้อง Steam Room ก่อนเป็นลำดับแรก (หากจะใช้บริการห้องนี้จะต้องจองล่วงหน้าก่อน 30 นาที) ข้อดีของการอบไอนํ้าคือช่วยผ่อนคลายกล้ามเนื้อ, กระตุ้นการไหลเวียนโลหิต, กระตุ้นระบบหายใจ, ช่วยเปิดรูขุมขน ขับถ่ายสิ่งสกปรกและสารพิษที่อยูในร่างกายออกมา อีกทั้งยังกระตุ้นระบบประสาทและฮอร์โมน ช่วยให้ผิวอ่อนนุ่ม ชุ่มชื้น ซึ่งจะแตกต่างจาก Sauna ที่ทำให้ผิวของเรารู้สึกแห้ง อีกทั้งยังทำให้ร่างกายของเราขาดน้ำได้
ตรงข้ามกับห้อง Steam Room จะเป็นส่วนชำระล้างร่างกาย ก่อนที่เราจะหย่อนกายลงในบ่อน้ำร้อน เพื่อความสะอาด และเป็นการปรับอุณหภูมิให้กับร่างกายของเรา ได้ค่อย ๆ เคยชินกับความร้อน ตรงส่วนนี้จะมีเก้าอี้นั่งเล็ก ๆ สไตล์แบบ Onsen ญี่ปุ่นมาให้ด้วย
Onsen จะแบ่งออกเป็น 2 บ่อ 2 นํ้าแร่ อุณหภูมิอยู่ที่ 38 และ 42 องศา โดย…
- นํ้าแร่ในบ่อ 38 องศา ประกอบด้วยแร่ Magnesium และ Potassium ช่วยผ่อนคลายกล้ามเนื้อ, ความดันโลหิต, ความเครียดวิตกกังวล, กระตุ้นการไหลเวียนโลหิต, กระตุ้นระบบหายใจ, กระตุ้นระบบประสาทและฮอร์โมน
- นํ้าแร่ในบ่อ 42 องศา ประกอบด้วยแร่ Potassium, Sodium chloride และ Borate ช่วยผ่อนคลายกล้ามเนื้อ, กระตุ้นการไหลเวียนโลหิต, กระตุ้นระบบหายใจ, กระตุ้นระบบประสาท, ฮอร์โมน, การทํางานของเซลในร่างกาย, ช่วยให้ผมและผิวอ่อนนุ่ม ชุ่มชื้น
ให้ความรู้สึกสงบนิ่งแบบ Zen ที่มีความผ่อนคลายและสงบนิ่ง
ด้านหลังสุดของส่วนกลางบริเวณชั้น 7 จะเป็นโซนพื้นที่สำหรับนั่งเล่นขนาดใหญ่ ได้บรรยากาศแบบในร่ม แตกต่างจากโซนสระว่ายน้ำ ตอบโจทย์สำหรับผู้ที่ต้องการความเงียบสงบได้เป็นอย่างดี
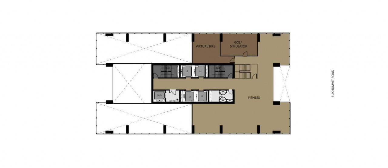
ชั้น 8 เป็นชั้นที่สามารถเดินเชื่อมผ่านจากบันไดบริเวณชั้น 7 ได้ ชั้นนี้จะประกอบไปด้วย Fitness, Golf Simulator และ Virtual Bike
ภายใน Fitness มีเครื่องออกกำลังกายครบทุกสัดส่วนของร่างกายทั้งหมดจํานวน 23 เครื่อง ภายในพื้นที่ขนาดใหญ่ โล่งโปร่ง ให้ความรู้สึกโอ่โถงสบาย ไม่แออัด รับวิวสระว่ายน้ำ ตัวพื้นห้อง เลือกใช้วัสดุพิเศษโดยเฉพาะสำหรับยิม ที่รองรับน้ำหนักและแรงกระแทกได้อย่างดี
เครื่องออกกำลังกายเลือกแบรนด์ชั้นนำอย่าง Octane Fitness และ Life Fitness ที่มาพร้อมหน้าจอเทคโนโลยีเชื่อมต่อได้หลายแอปความบันเทิง ทั้ง Netflix, Facebook, YouTube และอื่น ๆ อีกมากมาย ให้คุณเพลิดเพลินไปกับการออกกำลังกายได้อย่างเต็มที่ เพื่อสุขภาพที่ดีของคุณ
Goft Similator ห้องเล่นกอล์ฟเสมือนจริง พร้อมให้ความเป็นส่วนตัวสำหรับคุณและกลุ่มเพื่อน หรือแม้กระทั่งการเลือกใช้เวลาร่วมกันสำหรับสมาชิกในครอบครัว เพียงแจ้งเจ้าหน้าที่สำรองพื้นที่ล่วงหน้า ก็สามารถเข้ามาใช้งานได้ง่าย ๆ แล้ว บอกเลยว่าด้านในออกแบบมาอย่างใส่ใจ ทั้งพื้นหญ้าเทียม แสง สี เสียง ที่ช่วยให้บรรยากาศมีความสมจริง สนุกไปกับเกมได้อย่างไม่รู้เบื่อ อีกทั้งยังเป็นการออกกำลังกายไปในตัวด้วย
ปิดท้ายด้วย Virtual Bike ห้องจำลองการแข่งขันขี่จักรยาน ที่สามารถเชื่อมต่อระบบแข่งขันจักรยานทั่วโลก ภายในมีทั้งหมด 4 เครื่อง พร้อมมุมนั่งเล่น สามารถนัดกลุ่มเพื่อนหรือครอบครัวมาจอยกิจกรรมสนุก ๆ ร่วมกันได้ ไฟในห้องปรับแต่งสีสันได้ตามใจชอบ ให้บรรยากาศเปลี่ยนได้ตามความต้องการ หรือหากใครจะเลือกเปิดม่านเพื่อรับวิวจากด้านนอกก็สามารถทำได้
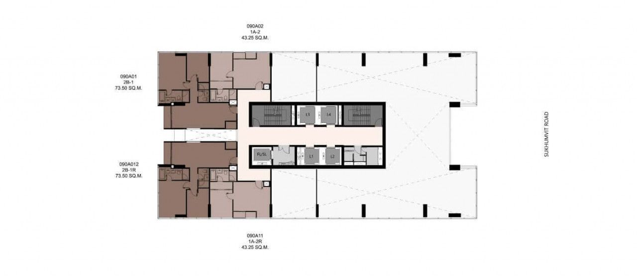
ชั้น 9 จะเป็นพื้นที่พักอาศัยส่วนแรกของโครงการ ชั้นนี้จะมีความเป็นส่วนตัวอยู่ที่ 4 ยูนิตต่อชั้น อยู่ใกล้กับ Facilities หลัก ๆ ของโครงการ เหมาะสำหรับคนที่อยากได้ความเป็นส่วนตัวและชื่นชอบที่จะใช้พื้นที่ส่วนกลางของโครงการบ่อย ๆ
ชั้น 10-35 จะเป็นชั้นที่มีจำนวนยูนิตมากที่สุดต่อชั้นอยู่ที่ 12 ยูนิต แต่แม้จะเป็นจำนวนที่มากที่สุดของโครงการ แต่ก็ถือว่าเป็นจำนวนที่ยังให้ความเป็นส่วนตัวอยู่มาก แถมยังได้ Single Loaded Corridor เปิดประตูห้องมาก็ไม่ต้องกลัวว่าจะเจอกับลูกบ้านท่านอื่น
มาถึงยังชั้น 41 กันบ้าง ชั้นนี้ก็เป็นอีกชั้นหนึ่งที่มีความพิเศษเป็นอย่างมาก เพราะเป็นชั้นที่มี Facilities ที่ตอบสนองความต้องการที่หลากหลาย เน้นในส่วนของพื้นที่ Semi-indoor รับวิวและบรรยากาศโดยรอบเป็นอย่างมาก ชั้นนี้จะประกอบไปด้วย Sky Lounge, The Residence Lounge, Sky Theatre, BBQ Deck และพื้นที่นั่งเล่นพักผ่อนโดยรอบ
พื้นที่นั่งเล่นของชั้น 41 ในส่วนของ Semi-indoor มีมุมให้เลือกนั่งหลากหลาย ทั้งระเบียงนั่งยาวที่ให้คุณรับวิวและลมธรรมชาติได้อย่างเต็มที่ หรือจะหลบร่มมานั่งชิงช้าเบาะนุ่ม ๆ ที่หันวิวไปทางบางกระเจ้า ให้เหมือนได้ใกล้ชิดธรรมชาติขึ้นมาอีกสักนิด
นอกจากนี้ก็ยังมี Rice Field Garden ทีได้รับแรงบันดาลใจมาจากนาขั้นบันได ให้คุณได้นั่งเล่นสัมผัสพื้นหญ้า ใกล้ชิดธรรมชาติ ท่ามกลางวิวเมืองที่งดงามสุดขอบฟ้า ให้คุณชมช่วงเวลาพระอาทิตย์ตกดินได้ในทุก ๆ วัน
มุม BBQ Area ก็เป็นอีกมุมหนึ่งที่ครอบครัวและเพื่อน ๆ สามารถเข้ามาใช้บริการร่วมกันได้ เพียงแค่จองพื้นที่ล่วงหน้าก่อนเท่านั้น ไม่ว่าจะเป็นปาร์ตี้วันเกิด หรือวันสำคัญไหน ๆ ก็ให้ทุกวันเป็นวันพิเศษได้เสมอ
ถัดเข้ามาด้านในร่วมจากส่วน BBQ Area จะมีอีกหนึ่งมุมพักผ่อนที่บรรยากาศดีไม่แพ้กัน หากคุณอยากจะเปลี่ยนบรรยากาศจำเจจากการนั่งทำงานในห้องอันแสนอุดอู้ ก็สามารถขึ้นมาใช้พื้นที่ส่วนนี้ในการนั่งทำงานชิลล์ ๆ พร้อมโน้ตบุ๊กคู่ใจของคุณได้
หาก BBQ Area ยังไม่ตอบโจทย์สำหรับมื้ออันแสนพิเศษของคุณ ก็ยังมี Residence Lounge (จองล่วงหน้า) ห้องทานอาหารที่ให้ความเป็นส่วนตัวในร่มพร้อม City View ที่งดงามไม่แพ้ด้านนอก เพียงเรียกบริการเชฟคนโปรดของคุณ มารังสรรค์มื้อพิเศษ ก็เนรมิตให้เป็นวันสุดแสนประทับใจได้ง่าย ๆ
Sky Lounge พื้นที่นั่งเล่นในร่ม ประกอบด้วย บาร์, โต๊ะพูล และมุมนั่งพักผ่อน ที่มาพร้อมบานกระจกขนาดใหญ่ รับวิวเมืองและวิวบางกระเจ้าได้เต็มตา เป็นพื้นที่ที่คุณจะได้พบปะกับผู้คนใหม่ ๆ พร้อมสนุกไปกับบรรยากาศรอบกายได้อย่างอิสระ เหมาะมากที่จะชวนกลุ่มเพื่อนคนสำคัญของคุณมาพักผ่อน
ความวุ่นวายในเมืองและความเงียบสงบ
ผสมผสานชีวิตย่านทองหล่อที่มีชีวิตชีวา
กับบรรยากาศอันเงียบสงบที่เข้ากันอย่างลงตัว
ปิดท้ายชั้น 41 กับ Sky Theatre ห้องดูหนังส่วนตัวที่ต้องทำการจองล่วงหน้าก่อนใช้บริการ ให้คุณได้รับชมภาพยนตร์อย่างเป็นส่วนตัวกับครอบครัวและเพื่อน ๆ เสมือนบรรยากาศในโรงหนังขนาดใหญ่ ด้วยเครื่องเสียงและจอภาพที่คมชัด
มุมนั่งรับชมภาพยนตร์จัดให้เป็นเบาะนั่งนุ่ม ๆ สำหรับเอนนอน พร้อมโต๊ะข้างให้คุณได้วางขนมของทานเล่นและเครื่องดื่มได้อย่างสะดวก
ปิดท้ายในส่วนของ Facilities กับชั้น Roof Orchard แปลงผักสวนครัวของลูกบ้าน ที่ให้คุณได้มีผักปลอดสารพิษไว้ทานภายในครอบครัว ทั้งยังเป็นอีกหนึ่งกิจกรรมดี ๆ ที่คุณสามารถทำร่วมกับสมาชิกในครอบครัวได้
Room Review
2-Bedroom 73.50 sq.m.
แปลนห้อง 2-Bedroom 73.50 sq.m. แยกส่วนพื้นที่ใช้งานและพื้นที่ส่วนตัวออกจากกันอย่างชัดเจนเพื่อความเป็นส่วนตัว เมื่อเปิดประตูเข้ามาด้านใน เราจะเข้ามายืนยู่ที่บริเวณครัวเปิดของห้องก่อนเป็นส่วนแรก ถัดเข้าไปด้านในจะเป็นพื้นที่ Living Room ติดระเบียง ส่วนด้านขวามือระหว่างครัวและ Living Room จะเป็นทางเชื่อมไปยังห้องนอนทั้ง 2 ห้อง โดย Master Bedroom จะมีห้องน้ำส่วนตัวอยู่ด้านใน ติดกันจะเป็น Bedroom 2 ปิดท้ายด้วย Bathroom 2 ที่ใช้รองรับในกรณีที่มีแขกมาเยือนห้องของเราได้
ทางเข้าเชื่อมผ่านประตูดิจิทัลจากแบรนด์ SAMSUNG ที่มาพร้อมระบบสแกนลายนิ้วมือ, รหัสพิน และกุญแจ มีระบบแรนดอมตัวเลขเพื่อป้องกันการกดรหัสจากรอยนิ้วมือ มีระบบเตือนภัยเมื่อมีการงัดแงะ พร้อมโหมดล็อกอัตโนมัติ นอกจากนี้ก็ยังให้ระบบ Home Automation System ทุกยูนิต ควบคุมได้ทั้งไฟ, ม่าน และเครื่องปรับอากาศ ผ่านสมาร์ทโฟน
.
.
เมื่อเปิดประตูเข้าไปภายในห้อง ส่วนแรกที่เราเข้ามายืนอยู่ จะเป็นพื้นที่ของครัวเปิด ถัดเข้าไปจะเป็นมุมนั่งเล่นและระเบียงห้องตามลำดับ
ซ้ายมือติดประตูทางเข้า เป็นตู้บิลต์อินเต็มความสูงของห้อง มาพร้อมหน้าบานกระจกเงาดูหรูหราพรีเมียม บานแรกสุดจะเป็นชั้นวางรองเท้าพร้อมลิ้นชักเล็ก ๆ สำหรับใส่ถุงเท้า ส่วนบานตู้ที่ติดกันจะเป็น Laundry สำหรับวางเครื่องซักผ้าและเครื่องอบผ้า ภายในมีระบบน้ำ ไฟ ท่อระบายน้ำ และระบบระบายอากาศให้อย่างครบครัน ด้านบนมีชั้นวางของสำหรับเก็บข้าวของและอุปกรณ์ได้อย่างเป็นระเบียบพร้อมราวแขวนผ้า เรียกได้ว่าเป็นการออกแบบที่ใช้ทุกพื้นที่ได้อย่างอย่างคุ้มค่า
ถัดเข้ามาด้านในจะเป็นพื้นที่ในส่วนของครัวเปิด ที่ให้ในส่วนของเคาน์เตอร์ไอแลนด์มาด้วย เพื่อเพิ่มพื้นที่เตรียมอาหารของคุณให้กว้าง และหยิบจับทุกอย่างได้สะดวกคล่องตัวมากยิ่งขึ้น พื้นส่วนครัวปูด้วยกระเบื้องลายหินอ่อนสีขาว เพื่อให้ง่ายต่อการเช็ดล้างทำความสะอาด
ตู้เย็นบิลต์อินจากเบรนด์ Kupperbusch ซ่อนด้วยหน้าบานกระจกเรียบหรู ให้มา 2 หน้าบานขนาดใหญ่จุใจ ใช้งานได้อย่างสะดวกสบาย ด้านข้างตู้เย็นซ่อนชั้นวางเอาไว้ให้อีก 5 ชั้น สามารถเก็บขวดเครื่องปรุงและวัตถุดิบแห้งต่าง ๆ ได้อย่างเป็นระเบียบ หาง่าย หยิบใช้สะดวก ตอบโจทย์สำหรับไลฟ์สไตล์คอนโดมิเนียมเป็นอย่างมาก
เคาน์เตอร์ครัวเลือกใช้วัสดุ Composite Quartz ลายหินอ่อนสีดำเงางาม มอบความพรีเมียม พร้อมด้วย Backsplash วัสดุเดียวกัน ช่วยให้การเช็ดทำความสะอาดคราบน้ำมันต่าง ๆ ง่ายดายมากขึ้น ซิงก์ล้างจานพร้อมก๊อกน้ำจากแบรนด์ FRANKE ออกแบบให้มี 2 ช่อง สำหรับล้างและพักวัตถุดิบได้อย่างสะดวก ทางด้านของเตาไฟฟ้าก็ให้มามากถึง 4 หัวเตาพร้อมฮู้ดระบายอากาศออกด้านนอกอาคารจากแบรนด์ Kuppersbusch
ส่วนพื้นที่จัดเก็บนั้น ชั้นวางของด้านบนใช้ระบบ Hydraulic เป็นบานพับข้อศอก เเทนบานเปิดปิดแบบปกติทั่วไป เพียงกดหนึ่งครั้งเพื่อเปิด และกดอีกหนึ่งครั้งเพื่อเปิด ตอบโจทย์การหยิบจับของในที่สูง ให้มีความสะดวกสบาย ใช้งานได้ง่ายมากยิ่งขึ้น นอกจากนี้ก็ยังมีบานลิ้นชักสำหรับเก็บช้อนส้อม ภาชนะต่าง ๆ และอุปกรณ์งานครัวอีกมากมาย ให้ครัวของคุณเป็นระเบียบเรียบร้อยได้อยู่เสมอ
เคาน์เตอร์ไอแลนด์เอง ด้านใต้ก็มีพื้นที่จัดเก็บให้อีกพอสมควร มาพร้อมเตาไมโครเวฟจากแบรนด์ Kuppersbusch ให้คุณทำอาหารได้หลากหลายเมนูมากยิ่งขึ้น
ติดกับส่วนครัวจะเป็นพื้นที่ส่วน Living Room ที่ปูด้วยไม้ Engineering Wood วางลายแบบก้างปลาให้คล้ายพื้นเรือนไทยในสมัยก่อน มีความสวยงามเป็นเอกลักษณ์ และแตกต่างไม่เหมือนใคร
Living Room มีพื้นที่สำหรับวางโซฟาและชั้นวางทีวีในระยะที่พอดีกับระดับสายตาในการรับชม และยังมีพื้นที่เหลือพอให้สามารถวางโต๊ะกลางตัวเล็ก ๆ สำหรับวางของว่างหรือเครื่องดื่มได้ โดยไม่กินพื้นที่ทางเดิน นอกจากนี้ทางโครงการยังออกแบบฝ้าของห้องทุกยูนิตมาให้สูงถึง 3 เมตร เพื่อช่วยเพิ่มความโล่ง โปร่ง สบาย ให้กับห้องได้เป็นอย่างดี
ส่วนพื้นที่ติดตั้งทีวี ทางโครงการก็ดรอปช่องไว้ให้สวยงาม พร้อมผนังลายหินอ่อนนำเข้าตามแบบในห้องตัวอย่างทุกประการ เหลือเพียงนำชั้นวางของในสไตล์ที่ถูกใจเพิ่มเข้าไป มุมเอ็นเตอร์เทนเมนต์ส่วนนี้ก็สวยงามลงตัวพอดิบพอดี
ผ้าม่านและวอลเปเปอร์ภายในห้องทุกยูนิต ทางโครงการเลือกใช้ของ Jim Thompson ที่มีดีเทลงดงาม เหมือนกับผ้าไหมไทย ช่วยเสริมให้ภาพรวมของห้องมีความอ่อนช้อยในแบบฉบับไทยร่วมสมัย
ติดกันกับมุม Living Room เมื่อดึงผ้าม่านออกเบา ๆ ตัวรางอัตโนมัติก็จะเคลื่อนเปิดม่านของเราช้า ๆ เผยให้เห็นวิวทิวทัศน์อันงดงามของเมืองที่สวยงามทั้งในยามกลางวันและกลางคืน เมื่อเปิดประตูกระจกบานเลื่อนออก เราก็สามารถเชื่อมต่อกับส่วนระเบียงของห้องได้ในทันที
ด้านนอกระเบียงกันด้วยกระจกใส ไม่บดบังทัศนียภาพ พร้อมซ่อนแอร์คอมเพรสเซอร์ไว้แยกจากส่วนระเบียง ขนาดพื้นที่ให้มาแบบพอเหมาะ ไม่เน้นการใช้งานอย่างจริงจังมากนัก เพราะภายในห้องให้ส่วน Laundry ที่สามารถติดตั้งเครื่องอบผ้าในตัวเอาไว้ให้แล้ว
กลับมาต่อกันที่พื้นที่ส่วนตัวของห้องกันบ้าง โดยระหว่าง Living Room และส่วนครัว จะมีทางเชื่อมไปสู่ห้องน้ำและห้องนอนทั้ง 2 ห้องของห้อง Type นี้ ซึ่งซ่อนไว้แยกจากพื้นที่ใช้งาน เพื่อหลีกเลี่ยงเสียงรบกวน ยกระดับความเป็นส่วนตัวให้มากยิ่งขึ้น
ห้องแรกสุดที่เราพบ จะอยู่ทางด้านขวามือจากส่วนทางเชื่อมนี้ ห้องนี้เป็น Bathroom 2 ที่อยู่ใกล้กับส่วนพื้นที่ใช้งานมากที่สุด ดังนั้นจึงสามารถใช้รับรองแขกที่มาเยือนห้องของเราได้ โดยไม่จำเป็นต้องเชื่อมต่อผ่านห้องนอนส่วนตัวของเรา
.
.
ภายในเมื่อเปิดเข้าไปจะเจอกับเคาน์เตอร์อ่างล้างหน้าและโถสุขภัณฑ์ก่อนเป็นลำดับแรก ซึ่งจากตัวเคาน์เตอร์อ่างล้างหน้านั้น จะบิลต์พื้นที่วางของเชื่อมไปยังจุดซ่อนระบบของโถสุขภัณฑ์ ทำให้ผู้ใช้งานสามารถวางขวดผลิตภัณฑ์ต่าง ๆ รวมถึงเทียนและต้นไม้ประดับได้อย่างเพียงพอ นอกจากนี้ก็ยังให้ปลั๊กไฟพร้อมฝาปิดกันน้ำสำหรับใช้กับเครื่องใช้ไฟฟ้าอย่างไดร์เป่าผม หรือใช้เป็นจุดชาร์จแปรงสีฟันไฟฟ้าของเราได้
พื้นที่จัดเก็บนอกจากจะวางบนเคาน์เตอร์ได้แล้ว ด้านในบานกระจกและด้านใต้เคาน์เตอร์ก็ยังซ่อนพื้นที่จัดเก็บเอาไว้ให้อีกค่อนข้างมาก
- เป็นระเบียบมากยิ่งขึ้น โดยเฉพาะบานกระจกด้านในที่บิลต์อย่างใส่ใจด้วยชั้นวาง 3 ชั้น เก็บผลิตภัณฑ์ของคุณได้อย่างจุใจ หยิบใช้งานง่าย
ส่วนเปียกของห้องกันด้วย Shower Box บานผลักกระจกใส ที่ให้มาเกือบเต็มความสูงของห้อง ป้องกันน้ำกระเด็นออกมาโดนส่วนแห้งได้เป็นอย่างดี ด้านในให้มาทั้ง Rain Shower และ Hand Shower พร้อมดรอปชั้นวางของเอาไว้ให้อีก 3 ชั้น
ถัดเข้ามาจาก Bathroom 2 จะเป็นทางเชื่อมไปสู่ Master Bedroom และ Bedroom 2
โดยห้อง Bedroom 2 ที่อยู่สุดทางเดินของส่วนนี้ เมื่อเปิดเข้าไปจะพบกับพื้นที่วางเตียงขนาดกว้าง สามารถวางเตียงขนาด 6 ฟุตได้กำลังพอเหมาะ สามารถเดินเข้า-ออกบริเวณรอบเตียงได้แบบไม่ติดขัด นอกจากนี้ก็ยังมีบานกระจกขนาดใหญ่พร้อมม่าน ให้คุณเปิดรับวิวได้อย่างเต็มที่ ยิ่งในช่วงเวลากลางวัน แสงธรรมชาติจากด้านนอกก็สามารถส่องเข้ามาภายใน ให้เราประหยัดพลังงานจากการใช้ไฟไปได้มากอีกด้วย
ด้านข้างเตียงทั้ง 2 ฝั่ง เหลือพื้นที่สำหรับใช้งานกำลังพอดี สามารถเลือกวางเป็นโต๊ะหัวเตียงทั้ง 2 ฝั่งเพื่อใช้จัดเก็บข้าวของเล็ก ๆ น้อย ๆ หรือจะเพิ่มเติมเป็นส่วนของโต๊ะทำงานเล็ก ๆ ตามแบบในห้องตัวอย่างก็เหมาะ จะบิลต์เป็นโต๊ะเครื่องแป้งแบบยืนก็ลงตัว เพราะยังคงมีพื้นที่สำหรับการใช้งานเหลืออยู่พอสมควรสำหรับบริเวณนี้
.
.
ตู้เสื้อผ้าที่ทางโครงการให้ จะเหมือนตามแบบในห้องตัวอย่างทุกประการ คือเป็นตู้บิลต์อิน 2 หน้าบานแบบเลื่อนข้าง ภายในแยกส่วนจัดเก็บมาให้ทั้งชั้นวางของ, ราวแขวน และลิ้นชัก จัดเก็บเสื้อผ้าและเครื่องประดับของคุณทุกชิ้นได้อย่างลงตัว
ส่วนปลายเตียงนั้น ก็ยังเหลือพื้นที่อีกมาก นอกจากจะวางระบบสำหรับติดตั้งทีวีมาไว้ให้แล้ว คุณก็สามารถบิลต์ชั้นวางของติดผนังเพิ่มเติมเพื่อเพิ่มพื้นที่จัดเก็บให้มากขึ้นได้
ปิดท้ายกันด้วย Master Bedroom ห้องนอนขนาดใหญ่ที่เหมาะสำหรับการอยู่อาศัยร่วมกัน 2 ท่าน เมื่อเปิดเข้าไปเราจะเจอกับทางเชื่อมที่แยกเป็น 2 ฝั่งซ้ายและขวา สุดทางเดินจะเป็นพื้นที่วาง ให้คุณเพิ่มเติมเป็นส่วนพื้นที่จัดเก็บอื่น ๆ หรือโต๊ะเครื่องแป้งได้ตามใจชอบ
ด้านซ้ายจากทางเข้าจะเป็น Master Bathroom ของห้องนี้ เมื่อเปิดเข้าไปจะเจอกับเคาน์เตอร์อ่างล้างหน้าขนาดใหญ่และโถสุขภัณฑ์พร้อมฝารองนั่ง WASHLET จากแบรนด์ TOTO พื้นที่จัดเก็บด้านบนเคาน์เตอร์ยังคงให้มาแบบชัดเต็มเชื่อมถึงส่วนโถสุขภัณฑ์อีกเช่นเคย และไม่ลืมที่จะติดตั้งปลั๊กไฟสำหรับใช้งานเอาไว้ให้
บานตู้กระจกและด้านใต้เคาน์เตอร์อ่างล้างหน้าซ่อนพื้นที่จัดเก็บมากขึ้นเป็น 2 เท่าจาก Bathroom 2 เหมาะกับการใช้งานแยกสัดส่วนกันสำหรับผู้อยู่อาศัย 2 ท่าน
ตัวอ่างล้างหน้าก็ให้มาในสไตล์ His & Her สามารถแบ่งใช้งานในเวลาเร่งรีบได้ทั้งคุณผู้ชายและคุณผู้หญิง
ด้านขวามือจากอ่างล้างหน้า ทางโครงการก็มอบอ่างอาบน้ำมาให้แบบติดบานหน้าต่าง สามารถแช่น้ำเพื่อผ่อนคลาย พร้อมชมวิวด้านนอกในยามกลางคืนไปได้ในตัว ส่วนนี้มี Hand Shower มาให้ในตัว เพื่ออำนวยความสะดวกในการใช้งาน
- ระบบทำน้ำร้อนจะซ่อนฝังไว้บนฝ้าเพื่อความสวยงาม และช่วยทำให้ระบบน้ำร้อนมีความเสถียรในการทำงานมากขึ้น
ด้านซ้ายติดกับโถสุขภัณฑ์จะเป็นส่วน Shower Box กั้นด้วยบาน Partition กระจกใส มาพร้อม Rain Shower, Hand Shower และดรอปพื้นที่วางของ 3 ชั้นมาให้แบบเดียวกันกับ Bathroom 2
กลับออกมาที่ด้านหน้า Master Bathroom ส่วนนี้จะเป็นทางเชื่อมไปสู่ห้องนอนขนาดใหญ่ ด้านหน้าจะเป็นบานตู้เสื้อผ้าขนาดใหญ่ 2 ฝั่ง ซ้ายและขวา ให้คุณผู้หญิงและคุณผู้ชาย สามารถแบ่งสัดส่วนการจัดเก็บแยกออกจากกันได้อย่างเป็นระเบียบมากขึ้น
บานตู้ฝั่งซ้าย จะมีชั้นวางสำหรับเก็บของมาให้ที่ด้านข้าง เหมาะมากสำหรับใช้วางกระเป๋าใบโปรดของคุณ ส่วนตัวบานตู้ด้านในจะมีราวสำหรับแขวนเสื้อผ้า, ชั้นวางของ และลิ้นชักสำหรับเก็บของมาให้ ส่วนทางด้านของตู้ฝั่งขวา จะมาในขนาดที่ใหญ่กว่า พร้อมจัดสัดส่วนทั้งราวแขวน, ชั้นวางของ และลิ้นชักมาให้ ดังนั้นไม่ว่าเสื้อผ้าและเครื่องประดับของคุณจะเยอะแค่ไหน ก็เพียงพอสำหรับการจัดเก็บอย่างแน่นอน
ด้านในส่วนของพื้นที่วางเตียงนั้น เหมาะที่จะวางเตียงขนาด 6 ฟุตได้ โดยยังมีพื้นที่เหลือสำหรับโต๊ะหัวเตียงทั้ง 2 ด้าน พร้อมติดตั้งม่านเอาไว้ให้เพื่อเพิ่มความเป็นส่วนตัว และลดแสงขณะนอนหลับในเวลากลางคืน
วิวของห้อง Master Bedroom เรียกได้ว่าพิเศษมากกว่า ด้วยบานหน้าต่างเข้ามุม ที่ให้คุณสัมผัสวิวทิวทัศน์ได้ทั้งจากปลายเตียงและทางด้านข้าง ส่วนใครที่ยังอยากได้มุมเอนเตอร์เทนเมนต์เล็ก ๆ สำหรับนอนชมภาพยนตร์เรื่องโปรดแล้วล่ะก็ เพียงหาชั้นวางขนาดพอเหมาะตามแบบในห้องตัวอย่างมาวางไว้ก็สามารถติดตั้งทีวีได้ โดยไม่บดบังทัศนียภาพด้านนอกแล้ว
1-Bedroom 38.50 sq.m.
แปลนห้อง 1-Bedroom 38.50 sq.m. เอง ก็แยกส่วนพื้นที่ใช้งานและพื้นที่ส่วนตัวออกเป็น 2 ส่วนเช่นเดียวกัน แต่ห้อง Type นี้จะแบ่งออกมาในขนาดที่เท่า ๆ กัน เมื่อเปิดเข้ามา จะเจอกับส่วนพื้นที่ครัวเปิดก่อนเป็นลำดับแรก ถัดเข้าไปจะเป็นพื้นที่ Living Room ติดระเบียง ระหว่างครัวและ Living Room จะมีประตูทางเข้าเชื่อมไปยังส่วนของห้องนอนใหญ่ ภายในมีทั้ง Walk-in Closet และห้องน้ำในตัว ห้องนี้เหมาะมากสำหรับผู้ที่ต้องการอาศัยอยู่คนเดียว ที่ต้องการสัดส่วนของห้องที่แยกออกจากกันระหว่างพื้นที่ใช้งานและพื้นที่ส่วนตัวอย่างชัดเจน
เมื่อเปิดเข้ามาภายในห้อง ครัวเปิดจะเป็นส่วนแรกที่เรายืนอยู่ เคาน์เตอร์ครัวบิลต์มาให้ในลักษณะรูปตัว L จึงมีพื้นที่เตรียมอาหารอย่างเพียงพอ แม้จะเป็นห้องขนาด 1 Bedroom เหมาะมากสำหรับคนที่ชื่นชอบการทำครัว ส่วนของชุดเครื่องครัวนั้นทางโครงการก็ให้มาทั้งเตาไฟฟ้า 2 หัว, ฮู้ดระบายอากาศ และเตาไมโครเวฟจากแบรนด์ Kuppersbusch และซิงก์ล้างจานพร้อมก๊อกน้ำจาก FRANKE ส่วนวัสดุของท็อปครัว, Backsplash, พื้นครัว และบานตู้ ก็จะเหมือนกันกับห้อง 2 Bedroom ทุกประการ
ตู้เย็นของห้อง Type นี้ จะให้มาในขนาดพอดีสำหรับการใช้งานคนเดียว ซ่อนปิดหน้าบานด้วยกระจกเงา เรียบเนียนไปกับส่วนบิลต์อินอีกเช่นกัน ด้านข้างตู้เย็นแม้จะเป็นมุมเล็ก ๆ แต่โครงการก็ยังใส่ใจ จัดชั้นวางของเล็ก ๆ มาให้สำหรับเก็บเครื่องปรุงหรือวัตถุดิบแห้งได้แบบพอเหมาะพอดี เรียกได้ว่าใช้พื้นที่ทุกตารางนิ้วภายในห้องได้อย่างคุ้มค่ามากจริง ๆ
ติดกับส่วนเคาน์เตอร์ทำครัวจะเป็นโต๊ะนั่งรับประทานอาหารที่เชื่อมติดเป็นบิลต์อินชิ้นเดียวกัน สามารถนั่งรับประทานอาหารได้ตั้งแต่ 1-2 ท่าน หรือจะใช้เป็นพื้นที่วางของเพิ่มเติมสำหรับอุปกรณ์ครัวก็ได้
- ส่วนตู้ที่อยู่ติดกับตู้เย็นและประตูทางเข้าจะเป็นตู้เก็บรองเท้าขนาด 2 หน้าบาน
ใต้เคาน์เตอร์ครัวให้ช่องลิ้นชักจัดเก็บมาอย่างเต็มที่ สามารถเก็บได้ทั้งขวดเครื่องปรุง, ช้อนส้อมมีด และอุปกรณ์ทำครัวต่างได้อย่างเป็นระบบระเบียบ พร้อมให้คุณหยิบจับใช้งานได้อย่างสะดวกง่ายดาย
- และแน่นอนว่าบานตู้เก็บของด้านบนก็ให้ระบบ Hydraulic มาด้วยเช่นเดียวกัน
ถัดเข้าไปจากส่วนครัวเปิดจะเป็นพื้นที่สำหรับ Living Room ที่อยู่เชื่อมติดกับระเบียง
Living Room สามารถวางโซฟาขนาดกำลังพอเหมาะสำหรับ 2-3 ที่นั่งได้แบบสบาย ๆ จะเพิ่มเติมโต๊ะข้างหรือโต๊ะกลางสำหรับวางหรือจัดเก็บของก็ยังมีพื้นที่เหลือ ให้ระยะระหว่างโซฟาและทีวีที่เหมาะกับการรับชมแบบกำลังพอดีอีกด้วย
ทางฝั่งของผนัง ก็ดรอปช่องแขวนทีวีเอาไว้ให้อีกเช่นเคย ตัวผนังบิลต์วัสดุลวดลายหินเงางามแบบในห้องตัวอย่างมาให้ในโทนสีที่เข้ากับองค์ประกอบของห้องเป็นอย่างดี จะเลือกวางชั้นทีวีเพื่อเพิ่มพื้นที่จัดเก็บหรือปล่อยโล่งให้มีพื้นที่ใช้สอยที่กว้างมากขึ้นก็สามารถเลือกได้ตามความต้องการของผู้อยู่อาศัย
ระเบียงของห้อง Type นี้จะมีแอร์คอมเพรสเซอร์เพิ่มเข้ามา แต่จะกั้นสัดส่วนไว้ด้วยบานประตู ที่สามารถเปิดออกเพื่อใช้จัดเก็บอุปกรณ์ทำความสะอาดได้
ส่วน Laundry จะอยู่ติดกันกับโต๊ะนั่งรับประทานอาหาร ด้านในมีระบบน้ำ, ไฟ, ท่อระบายน้ำ และระบบระบายอากาศให้ครบแบบเดียวกับห้อง 2 Bedroom ด้านบนมีชั้นวางของมาให้ 2 ชั้น สำหรับเก็บอุปกรณ์ทำความสะอาดพร้อมราวแขวนผ้ามาให้
ต่อกันด้วยห้องนอนของห้อง 1-Bedroom 38.50 sq.m. เมื่อเปิดเข้ามาก็จะเจอกับพื้นที่วางเตียงขนาดใหญ่ก่อนเป็นลำดับแรก ห้องนี้แม้จะเป็น 1 Bedroom แต่ก็ให้พื้นที่ใช้สอยรอบเตียงมาค่อนข้างเยอะเลยทีเดียว ดังนั้นคุณจึงสามารถเพิ่มเติมส่วนอื่น ๆ ให้มีความอเนกประสงค์มากขึ้นได้ ไม่ว่าจะเป็นโต๊ะเครื่องแป้ง, โต๊ะทำงาน หรือชั้นวางของ ก็สามารถจัดสัดส่วนให้ลงตัวพอดีกับพื้นที่ได้
บริเวณปลายเตียงทางโครงการให้ Cable TV สำหรับติดตั้งทีวีแขวนผนังมาให้ หากอยากเพิ่มพื้นที่จัดเก็บก็สามารถบิลต์อินในส่วนของชั้นวางแขวนผนังเพิ่มเติมได้
ทางด้านของ Walk-in Closet ก็กั้นสัดส่วนไว้ให้ด้วยประตูประจกบานสไลด์ ช่วยให้ลมเย็นจากเครื่องปรับอากาศไหลวนอยู่เฉพาะบริเวณส่วนเตียงนอนของเรา และเป็นการแยกสัดส่วนระหว่างทั้ง 2 พื้นที่ออกจากกันให้เป็นระเบียบมากยิ่งขึ้น
ปิดท้ายด้วยห้องน้ำซึ่งอยู่ถัดเข้าไปจาก Walk-in Closet ภายในมีขนาดกว้าง มาพร้อมเคาน์เตอร์อ่างล้างหน้าขนาดใหญ่ ชั้นวางของซ่อนหลังบานกระจกเงา และปลั๊กไฟอีกเช่นเคย ทางด้านของโถสุขภัณฑ์ก็ให้เป็นฝารองนั่ง WASHLET จากแบรนด์ TOTO แบบเดียวกันกับ Master Bathroom ของห้อง 2 Bedroom
ติดกับโถสุขภัณฑ์จะเป็นส่วน Shower Box ด้านในให้ในส่วนของ Rain Shower, Hand Shower และ Drop Wall ชั้นวางของมาให้ ตัว Partition กั้นส่วนเปียกเป็นแบบบานผลักเกือบเต็มความสูงของห้อง หมดกังวลเรื่องน้ำที่อาจจะกระเด็นออกมาโดนส่วนแห้ง
ส่วนอีกฝั่งติดกับเคาน์เตอร์อ่างล้างหน้า ทางโครงการให้อ่างอาบน้ำเช่นเดียวกับ Master Bathroom ของห้อง 2 Bedroom พร้อมซ่อนระบบทำน้ำร้อนแบบฝังฝ้าเช่นเดียวกันกับห้อง 2 Bedroom
Location
A HARMONY OF CONTRAST
CITY AND SERENITY
The ESSE Sukhumvit 36 ตั้งอยู่บริเวณปากซอยสุขุมวิท 36 ใจกลาง CBD ศูนย์กลางธุรกิจชั้นนำของกรุงเทพมหานคร สามารถทะลุไปพระราม 4 ขึ้นทางด่วน หรือข้ามไปทางฝั่งเพชรบุรีได้อย่างสะดวกสบายด้วยรถยนต์ส่วนตัว ทั้งยังอยู่ติดกับ BTS ทองหล่อ ให้คุณเข้าถึงทุกที่ในช่วงเวลาเร่งด่วนได้อย่างใจต้องการ อีกทั้งทำเลยังรายล้อมไปด้วยแสงสีเสียงและไลฟ์สไตล์ที่หลากหลาย ให้คุณพบสมดุลความแตกต่างระหว่างสีสันของทองหล่อ กับความสงบส่วนตัวของโครงการได้อย่างลงตัว
พบสีสันของชีวิตได้แบบ All Day All Night ณ ‘ทองหล่อ’
โครงการ The ESSE Sukhumvit 36 ตั้งอยู่ติดกับสถานีรถไฟฟ้า BTS สถานีทองหล่อ สามารถเดินเชื่อมถึงได้อย่างสะดวกสบาย เพราะตั้งอยู่ด้านหน้าของโครงการ ทำให้การเดินทางไปยังแหล่งไลฟ์สไตล์และออฟฟิศชั้นนำในกรุงเทพเข้าถึงได้อย่างสะดวก โดยเฉพาะในช่วงเวลาเร่งด่วนในยามเช้าและหลังเลิกงาน บอกเลยว่าโครงการทำเลทองหล่อที่ติดถนนใหญ่และรถไฟฟ้าแบบนี้ มีแค่ที่ The ESSE Sukhumvit 36 ที่เดียวเท่านั้น
เพียงแค่ข้ามฝั่งจากโครงการ The ESSE Sukhumvit 36 ก็สามารถเข้าถึงซอยทองหล่อได้ง่าย ๆ แล้ว ภายในซอยแห่งนี้ขึ้นชื่อในเรื่องของร้านอาหารและคาเฟ่เป็นอย่างดี และมีความคึกคักไปด้วยผู้คนอยู่แทบจะตลอดทั้งวัน เป็นที่นิยมของทั้งชาวไทยและชาวต่างชาติ อีกทั้งยังเป็นแหล่งนัดพบยอดนิยมของกลุ่มเพื่อน และตอบโจทย์ผู้ที่ชื่นชอบการตามหาแสงสีในยามค่ำคืนได้เป็นอย่างดี
.
.
J AVENUE หนึ่งในไลฟ์สไตล์มอลล์แบบเปิดใจกลางซอยทองหล่อ ภายในมีร้านอาหารไทยและร้านอาหารนานาชาติชั้นนำมากมายให้เลือกสรร ทั้งอาหารญี่ปุ่น, อาหารไทย, อาหารเกาหลี, อาหารอิตาเลี่ยน และคาเฟ่เครื่องดื่มแนวมินิมอลอย่าง KOF ที่ให้คุณเติมความสดชื่น พร้อมรับยามบ่ายได้ในทุกวัน
72 Courtyard อีกหนึ่งไนต์ไลฟ์คอมมูนิตี้มอลล์ใจกลางทองหล่อ ที่มีเอกลักษณ์อยู่ที่การเน้นเฉพาะร้านอาหารและบาร์สำหรับดื่มเป็นหลัก ทำให้ที่นี่เป็นหนึ่งในแหล่งพบปะสังสรรค์ของกลุ่มเพื่อนหลังเลิกงานได้เป็นอย่างดี เพราะไม่ว่าคุณจะอยากฝากท้องกับร้านอาหารรสชาติเยี่ยมบรรยากาศดี หรืออยากจะสนุกครื้นเครงไปกับดนตรีและเครื่องดื่มดี ๆ ที่นี่ก็ตอบโจทย์ได้ครบทุกความต้องการ ไม่แน่ว่าการมาเยือนสถานที่แห่งนี้ อาจทำให้คุณได้พบปะกับผู้คนใหม่ ๆ ได้มากยิ่งขึ้น
The Commons คอมมูนิตีมอลล์ที่ได้รับความนิยมเป็นอย่างมากสำหรับชาวทองหล่อและผู้คนจากย่านใกล้เคียง เพราะที่นี่มาในคอนเซ็ปต์แบบใกล้ชิดธรรมชาติ และเปิดโล่งแบบ Open Air ทำให้บรรยากาศโดยรอบมีความชิลล์ เป็นกันเองแบบสุด ๆ ด้านในมีครบทั้งร้านอาหารนานาชาติที่เลื่องชื่อ, ร้านเครื่องดื่มสำหรับคอกาแฟ และชอปของหวานสำหรับคุณสาว ๆ ทั้งยังมีมุมนั่งเล่นให้เลือกพักผ่อนอยู่โดยรอบพื้นที่ ดังนั้นไม่ว่าคุณจะนัดพบคนสำคัญ แวะมาประชุมงาน หรือพกโน้ตบุ๊กคู่ใจมาเปลี่ยนบรรยากาศในการทำงาน ที่นี่ก็มีสเปซรองรับสำหรับทุกความต้องการของคุณได้อย่างแน่นอน
‘ซอยสุขุมวิท 47 และ 49’ พบแหล่งไลฟ์สไตล์ใกล้โครงการที่ไม่ควรพลาด
อีกหนึ่งซอยใกล้โครงการอย่างซอยสุขุมวิท 49 ก็เป็นอีกหนึ่งซอยที่น่าสนใจไม่แพ้กับซอยทองหล่อ แต่จะมีความสงบ และบรรยากาศที่แตกต่างออกไปเล็กน้อย บริเวณต้นซอยมีคอมมูนิตีมอลล์ 49 Playscape เอาใจคนรักน้องหมาอยู่ด้วย ด้านในมี HUNGRY PACK คาเฟ่บรรยากาศสุดชิลล์ที่เสิร์ฟเมนูอาหารและเครื่องดื่มหลากหลายตั้งแต่เช้าจรดค่ำ นอกจากนี้ก็ยังมีพื้นที่สำหรับน้องหมาและโรงเรียนฝึกสอนอยู่ที่นี่ด้วย ใครที่แวะมาก็อาจจะได้พบเจอกับสัตว์เลี้ยงแสนน่ารัก ที่ช่วยให้รู้สึกผ่อนคลายจิตใจได้เป็นอย่างดี
เขยิบต่อมาที่ต้นซอยสุขุมวิท 47 พบอีกหนึ่งคอมมูนิตีมอลล์ที่รวมทั้งร้านอาหาร, คาเฟ่, สปา, บริการเสริมความงาม, สถานที่ออกกำลังกาย และอื่น ๆ อีกมากมาย ในบรรยากาศร่มรื่น เป็นกันเอง เรียกได้ว่ารวมทุกความต้องการ ครบ จบ ในที่เดียว ให้คุณได้แวะมาพักผ่อนและใช้บริการได้ทุกความต้องการ แถมยังเข้าถึงได้ง่าย เพียง 700 เมตรจากโครงการเท่านั้น
อุ่นใจ ปลอดภัย ตลอด 24 ชั่วโมง เข้าถึงโรงพยาบาลชั้นนำได้ภายใน 5 นาที
สำหรับครอบครัวที่อยู่อาศัยร่วมกับผู้สูงอายุและเด็กเล็ก อาจจะมีความกังวลในเรื่องของเหตุฉุกเฉิน หรือสถานการณ์ไม่คาดฝันที่อาจเกิดขึ้นได้ทุกเมื่อ แต่ไม่ว่าจะเป็นโรคภัยไข้เจ็บหรืออุบัติเหตุที่ไม่คาดคิด จากตัวโครงการเพียง 5 นาที ก็สามารถเข้าถึงมือแพทย์ผู้เชี่ยวชาญจาก โรงพยาบาลสมิติเวชสุขุมวิท ได้ในทันที ดังนั้นคุณจึงอุ่นใจได้ในทุกช่วงเวลาอย่างแน่นอน
เดินเท้าเข้าถึงโรงเรียนนานาชาติบางกอกเพรพได้ใน 3 นาที
โรงเรียนนานาชาติบางกอกเพรพ ใกล้โครงการ The ESSE Sukhumvit 36 เพียง 230 เมตร อุ่นใจกับสถานศึกษาชั้นนำใกล้ที่พักอาศัย ให้คุณสามารถรับ-ส่งลูก ๆ ได้อย่างสะดวกสบาย และสามารถเข้าถึงได้ทันทีเมื่อมีเรื่องด่วน อีกทั้งเด็ก ๆ เอง ก็ยังสามารถเดินทางไปโรงเรียนเองได้อย่างปลอดภัย เพียงข้ามฝั่งจากสกายวอร์คของ BTS ทองหล่อเท่านั้น หมดกังวลเรื่องการข้ามถนนที่อาจจะทำให้เกิดอันตรายไปได้มากทีเดียว
หากคุณกำลังตามหาที่พักอาศัยที่ให้ความสงบเป็นส่วนตัว แต่ยังใกล้กับแหล่งไลฟ์สไตล์ครบครัน พร้อมด้วยการเดินทางที่เชื่อมต่อง่ายทุกส่วนของใจกลางเมือง The ESSE Sukhumvit 36 เป็นอีกหนึ่งโครงการที่ตั้งอยู่ในทำเลที่หาได้ยากในปัจจุบัน อีกทั้งยังใส่ใจในรายละเอียดทุกตารางนิ้ว เพื่อตอบโจทย์ฟังก์ชันการอยู่อาศัยของคุณอย่างแท้จริง ให้คุณพบความแตกต่างที่ลงตัว ทั้งสีสันและความสงบ ที่พรีเมียมเหนือใครได้แล้ววันนี้...
พิเศษสำหรับผู้ที่ลงทะเบียนเท่านั้น
รับส่วนลดเพิ่ม 100,000 บาท คลิก
เฉพาะในงาน ‘For the One who Knows’
14-15 พ.ย. 63
ดิ เอส สุขุมวิท 36
59f7e1e2dee823fc32ef22aa
the-esse-sukhumvit-36-ดิ-เอส-สุขุมวิท













































































































