[Review] ‘MAESTRO 19’ คอนโดที่ได้แรงบันดาลใจจาก Industrial Loft ที่ให้ความสงบและเป็นส่วนตัว ในทำเลใกล้ New CBD
ซอยรัชดาภิเษก 19 แขวงดินแดง เขตดินแดง กรุงเทพฯ 10400
เมเจอร์ ดีเวลลอปเม้นท์ เอสเตท จำกัด

HIGHLIGHTS
จะดีแค่ไหนถ้าเราเลือกใช้ชีวิตได้ในแบบที่ต้องการ
- “Pet Friendly Residences” โครงการคอนโดมิเนียมที่สามารถเลี้ยงสัตว์ได้
- ใกล้ MRT รัชดาภิเษก เพียง 650 เมตร เข้าถึง New CBD ได้ภายใน 4 นาที
- สะดวกสบายในการเดินทาง เชื่อมต่อถนน 3 เส้นหลัก ทั้งรัชดาภิเษก, วิภาวดีรังสิต และลาดพร้าว
- ใกล้รถไฟฟ้าสายอนาคต อย่าง รถไฟฟ้ารางเดี่ยวสายสีเหลือง และรถไฟฟ้าใต้ดินสายสีส้ม
- ให้ความเป็นส่วนตัว ด้วยจำนวนยูนิตต่อชั้นเพียง 20 ยูนิต พร้อมแบ่งพื้นที่ส่วนกลางออกจากพื้นที่พักผ่อนอย่างเป็นสัด เป็นส่วน
Project Review
MAESTRO 19 Ratchada 19-Vipha โดดเด่นด้วยดีไซน์ที่ให้ความรู้สึกเท่ แต่ยังคงความหรูหรา แตกต่างอย่างลงตัว ภายใต้คอนเซ็ปต์ ‘INDUSTRIAL ELEGANCE’ ผสมผสานใส่ความทันสมัยด้วยหินอ่อน ที่มีดีไซน์เฉพาะตัวอย่าง HERRINGBONE PATTERN ทั้งยังพิถีพิถันในการออกแบบโครงสร้าง โดยการก่อสร้างแบบ CONVENTIONAL ที่ทําให้ตัวอาคารแข็งแรง และช่วยป้องกันเสียงรบกวนได้เป็นอย่างดี รวมถึงการวางตําแหน่งอาคารเพื่อให้เกิดการไหลเวียนอากาศ และจัดวางช่องแสง เพื่อใช้เปิดรับแสงแดด ตลอดจนร่มเงาได้อย่างพอดีในทุกฤดูกาล
รายละเอียดโครงการ MAESTRO 19 Ratchada 19-Vipha
ชื่อโครงการ : MAESTRO 19 Ratchada 19-Vipha (มาเอสโตร 19 รัชดา 19-วิภา)
เจ้าของโครงการ : บริษัท เมเจอร์ ดิเวลลอปเมนท์ จำกัด (มหาชน)
ที่ตั้งโครงการ : ซอยรัชดาภิเษก 19 แขวงดินแดง เขตดินแดง กรุงเทพมหานคร
พื้นที่โครงการ : 5-1-3.4 ไร่
ลักษณะโครงการ : Low Rise สูง 8 ชั้น 4 อาคาร
จำนวนห้อง : 560 ยูนิต
รูปแบบห้อง :
- 1 ห้องนอน : 29.66-40.03 ตร.ม.
- 1 ห้องนอน พลัส : 43.75-43.97 ตร.ม.
- 2 ห้องนอน : 60.83 - 61.41 ตร.ม.
ที่จอดรถ : จอดรถได้ 324 คัน (รวมจอดซ้อนคัน)
ราคาเริ่มต้น : 2.75 ล้านบาท
Floor Plan โครงการ MAESTRO 19 Ratchada 19-Vipha
เริ่มดู Master Plan โครงการ MAESTRO 19 Ratchada 19-Vipha กันที่ชั้น Ground Floor ก่อนเป็นลำดับแรก เมื่อเลี้ยวซ้ายเข้ามาภายในรั้วโครงการ เราจะเจอกับ Building D และ Building A ตั้งอยู่ด้านหน้าสุด ส่วนการเดินรถจะเป็นแบบทางเดียว วนไปทางซ้ายรอบตัวอาคาร โดยพื้นที่จอดรถจะอยู่บริเวณอาคาร รวมไปถึงชั้นใต้ดินของ Building C และ Building B ด้วย
ส่วนของพื้นที่พักอาศัยจะเริ่มตั้งแต่ชั้น 2 ไปจนถึงชั้น 8 ซึ่งแต่ละชั้นจะมีจำนวนยูนิตอยู่ที่ 20 ยูนิตเท่านั้น โดยอาคารพักอาศัยทั้ง 4 อาคารก็จะมีจำนวน Type และการจัดวางแปลนต่าง ๆ ที่เหมือนกันทั้งหมด
สำหรับชั้นบนสุดอย่าง Rooftop ทั้ง 4 อาคาร ทางโครงการจะจัดเป็นพื้นที่สำหรับปาร์ตี้บาร์บีคิว พร้อมมีมุมนั่งเล่น, เตาย่าง และซิงก์ล้างจาน ให้คุณทำกิจกรรมร่วมกันได้อย่างมีความสุขในทุก ๆ วัน
พื้นที่ส่วนกลางโครงการ MAESTRO 19 Ratchada 19-Vipha
บริเวณหน้าพื้นที่โครงการ MAESTRO 19 Ratchada 19-Vipha จะเป็น ‘ลานโล่งกว้าง’ ที่มาพร้อมมุมนั่งเล่น และจุดจอดรถจักรยาน โดยส่วนนี้ลูกบ้านจะสามารถพาน้องหมามาเดินเล่นได้ด้วย ส่วนใครที่มีจักรยานส่วนตัวก็นำมาจอดไว้ตรงนี้ได้เลย เวลาหยิบใช้งานก็สะดวก เผื่อเอาไว้ปั่นไปสถานที่ใกล้ ๆ อย่างร้านสะดวกซื้อ และร้านอาหารใกล้เคียง หรือใครที่มีจักรยานพับได้ จะเลือกเก็บไว้ที่ห้องพักส่วนตัวก็ได้เช่นกัน
ขยับถัดเข้ามาอีกเล็กน้อยจะเป็นพื้นที่กว้างรอบ ๆ อาคารพักอาศัย ที่มีทั้งต้นไม้ใหญ่, สนามหญ้า และมุมนั่งเล่นเล็ก ๆ น้อย ๆ ให้ทุกคนออกมานั่งพักผ่อนรับลมเย็นในช่วงเช้า หรือหย่อนกายสูดอากาศในช่วงเย็น
ถัดไปทางด้านหลังจะมีสวนสำหรับสัตว์เลี้ยงอย่าง ‘Pet Zone’ ที่เอาไว้ให้น้อง ๆ ได้ออกมาวิ่งเล่น ทำธุระส่วนตัวอย่างอิสระ ซึ่งทางโครงการ MAESTRO 19 Ratchada 19-Vipha จะมีบริการที่ฉีดน้ํา, ถุงพลาสติก, ถังขยะ และลานพร้อมก็อกน้ำ สำหรับชำระทำความสะอาดต่าง ๆ เอาไว้ให้เรียบร้อย บอกเลยว่าถึงแม้จะอยู่คอนโดมิเนียม แต่เหล่าสัตว์เลี้ยงของคุณจะได้ใช้ชีวิตอิสระเสมือนอาศัยอยู่บ้านเลย
คราวนี้เข้ามาดูภายในอาคารพักอาศัยกันบ้าง โดยพื้นที่บริเวณชั้น 1 ของทุกอาคารจะประกอบไปด้วย 3 ส่วนหลัก ๆ ได้แก่ โถงลิฟท์, Mail Room และ Laundry ที่มาพร้อมมุมนั่งเล่นเล็ก ๆ สำหรับนั่งพักระหว่างรอผ้าซักได้
ขึ้นไปยังชั้น Rooftop กันต่อ ซึ่งทางโครงการจะจัดเป็นมุมพักผ่อนสำหรับลูกบ้านทุกคน มาพร้อมด้วยเตาสำหรับปิ้งบาร์บีคิว, ซิงก์ล้างจาน และมุมนั่งเล่น เรียกได้ว่า.. เราสามารถขึ้นมาจัดปาร์ตี้เล็ก ๆ ที่บริเวณนี้กันได้อย่างอิสระ หรือถ้าใครอยากแวะมานั่งเล่น รับลมชมวิวพระอาทิตย์ตกดินสวย ๆ ยามเย็น ก็สามารถขึ้นมาใช้บริการกันได้ทุกวันที่ต้องการ
ออกแบบการพักผ่อนของคุณ
ให้รู้สึกเหมือนอยู่บ้านทุกวัน
ปิดท้ายพื้นที่ส่วนกลางกันที่ Clubhouse อีกหนึ่งจุดไฮไลต์ของโครงการ MAESTRO 19 Ratchada 19-Vipha ที่ซึ่งเพรียบพร้อมไปด้วยสิ่งอำนวยความสะดวกหลากหลาย ตอบทุกความต้องการ ตั้งแต่ ‘โถง Lobby เพดานสูงโปร่ง’ ซึ่งจะเชื่อมต่อชั่วโมงพักผ่อนด้วยบันไดวนที่จะนำคุณไปสู่ ‘Co-Working Space’ และ ‘ห้องสมุด’ ที่เงียบสงบ พร้อมกับ ‘ฟิตเนส’ และ ‘พื้นที่เล่นโยคะ’ ที่ได้บรรจงออกแบบให้หันรับวิวที่ดีที่สุดของ ‘สระว่ายน้ำยาว 25 เมตร’ ที่ล้อมรอบด้วยต้นไม้ใหญ่ เพื่อให้คุณพักผ่อนได้อย่างเต็มที่
Main Lobby จะเป็นส่วนแรกของอาคาร Clubhouse ที่เราจะเปิดเข้ามาเจอ โดยพื้นที่ตรงนี้จะมีมุมนั่งเล่นให้เลือกทั้งแบบโซฟานุ่ม ๆ พร้อมโต๊ะกลาง สำหรับการนั่งเล่นชิลล์ ๆ และแบบโต๊ะเคาน์เตอร์บาร์ สำหรับใช้วางโน้ตบุ๊กคู่ใจขึ้นมาทำงาน ดังนั้น ไม่ว่าจะใช้เป็นใช้พื้นที่นั่งเล่น, นัดพบ หรือนั่งรอก็สามารถรองรับได้ทุกความต้องการ
ถัดขึ้นมาที่ชั้น 2 ของ Clubhouse กันบ้าง ซึ่งจะเปิดตัวอย่างสวยงามด้วย Swimming Pool ระบบน้ำเกลือขนาด 6x25 เมตร ลึก 1.2 เมตร ที่รายล้อมไปด้วยต้นไม้ โดยส่วนนี้ขอบอกเลยว่า... ตัวสระมีความยาวที่.shgikสามารถว่ายoheออกกำลังกายได้เต็มที่ แถมยังให้ความรู้สึกสดชื่น และร่มรื่นด้วยการตกแต่งสวนสีเขียวไว้รอบสระ เสมือนคุณได้แช่น้ำพักผ่อนอยู่ท่ามกลางธรรมชาตินั่นเอง
ไม่ว่าจะปล่อยตัวชิลล์ ๆ สบาย ๆ ด้วยการแช่น้ำเล่น หรือหามุมพักผ่อนเพื่อคลายความเหนื่อยล้า ก็สุนทรียได้ไม่แพ้กัน ส่วนใครที่อยากหาขนมมานั่งทาน พร้อมชวนเพื่อน ๆ มานั่งเล่นริมสระด้วยกันก็ยังได้
ถัดเข้ามายังส่วนของตัวอาคาร ตรงบริเวณห้องน้ำชายจะมาพร้อมล็อกเกอร์ สำหรับจัดเก็บของใช้ส่วนตัวหรือสิ่งของมีค่า พร้อมมีอ่างล้างหน้า และกระจกเงาให้ครบ สำหรับใช้ล้างหน้า ล้างตัวหลังขึ้นมาจากสระ
นอกจากนี้ ในส่วนของห้องน้ำชายก็ยังมาพร้อมกับ Sauna Room สำหรับให้คุณผู้ชายได้ผ่อนคลายความเหนื่อยล้าจากการทำงาน เพราะแค่เข้ามาใช้บริการเพียง 10-20 นาที ร่างกายของคุณก็จะรู้สึกโล่ง เบาสบาย เนื่องจากระบบโลหิตใต้ผิวหนังได้รับการกระตุ้นอย่างเต็มที่ เหมาะอย่างยิ่งสำหรับคุณผู้ชายที่นั่งทำงานในออฟฟิศนาน ๆ
ส่วนทางด้านของห้องน้ำหญิงก็จะมาพร้อมกับล็อกเกอร์ส่วนตัว และอ่างล้างหน้าให้อีกเช่นกัน เพื่อให้คุณสาว ๆ สามารถดูแลผิวหน้าได้สะดวก รวดเร็วหลังจากขึ้นมาจากสระน้ำนั่นเอง
ส่วนของ Shower Box และโถสุขภัณฑ์ก็มีไว้รองรับความต้องการของคุณสาว ๆ ให้คุณสามารถอาบน้ำแต่งตัว พร้อมทำ Activity อื่น ๆ ได้เลย
โดยสิ่งอำนวยความสะดวกภายในห้องน้ำหญิง จะได้เป็น Steam Room สำหรับอบไอน้ำ เพื่อช่วยผ่อนคลายกล้ามเนื้อ หรืออาการเหนื่อยล้าจากการทำงานได้เป็นอย่างดี นอกจากนี้ยังช่วยกระตุ้นโลหิต, กระตุ้นระบบลมหายใจ, เปิดรูขุมขน และรักษาสมดุลความเป็นกรดด่าง อีกทั้งยังทำให้จิตใจของเราผ่อนคลาย นอนหลับสบายอีกด้วย ซึ่งไม่ว่าจะเป็นช่วงเวลาไหน โครงการ MAESTRO 19 Ratchada 19-Vipha ก็ให้คุณสามารถเข้ามาใช้งานห้องอบไอน้ำได้อย่างเป็นส่วนตัว
สำหรับคนที่อยากมานั่งทำงานหรืออ่านหนังสือเงียบ ๆ คนเดียว ที่นี่ก็มีมุมโต๊ะบาร์หันหน้าเข้ากำแพง ที่มาพร้อมปลั๊กไฟทุกจุด ให้คุณสามารถพกพาโน้ตบุ๊กคู่ใจมาทำงานได้อย่างอุ่นใจ ไม่ต้องกังวลว่าจะไม่มีที่สำหรับชาร์จในกรณีฉุกเฉิน หรือถ้าอยากหามุมอ่านหนังสือแบบสงบสักหน่อย มุมนี้ก็เป็นมุมที่อยากแนะนำหรับคนที่ต้องการสมาธิมากเป็นพิเศษ
ส่วนใครอยากนั่งพูดคุยงานแลกเปลี่ยนซึ่งกันและกันกับกลุ่ม ก็มีโต๊ะตัวยาวแบบหันหน้าเข้าหากันในรูปแบบโต๊ะประชุมอยู่ด้วยเช่นเดียวกัน คุณสามารถมานั่งทำงานร่วมกัน เพื่อแลกเปลี่ยนไอเดีย ประสบการณ์ และความคิดเห็นที่น่าสนใจร่วมกันได้ และแน่นอนว่าตัวโต๊ะก็ซ่อนปลั๊กเอาไว้ให้อีกเช่นเดียวกัน เรียกว่าสะดวกสบาย ใช้งานได้อย่างมีประสิทธิภาพในทุกมุม
สำหรับคนที่อยากนั่งอ่านหนังสือหรือทำงานแบบสบาย ๆ มุมนั่งเล่นชิลล์ ๆ อย่างมุมโซฟาบอกเลยว่าตอบโจทย์ ส่วนนี้อาจไม่ได้เน้นความเป็นส่วนตัว หรือต้องการสมาธิมากนัก แต่จะเป็นมุมนั่งเล่นนุ่ม ๆ นั่งสบาย ไว้สำหรับอ่านหนังสือ หรือทำงานที่ไม่ได้จริงจังมากนัก มาพร้อมโต๊ะกลางตัวกลมสำหรับวางของได้บ้างเล็ก ๆ น้อย ๆ ใครที่ชอบนั่งทำงานหรืออ่านหนังสือบนอาร์มแชร์ตัวนุ่ม มุมนี้ตอบโจทย์
ปิดท้ายด้วยพื้นที่สงบ นั่งสบาย สำหรับคนที่ต้องการความเป็นส่วนตัวสูงสุด ที่นี่ก็มีโซฟาตัวนุ่ม พร้อมโต๊ะกลางและปลั๊กไฟไว้ให้อีกหนึ่งมุม ที่สามารถนั่งทำงานหรืออ่านหนังสือได้แบบส่วนตัวสุด ๆ ใครที่ชอบความไพรเวท บอกเลยว่ามุมนี้จะต้องกลายมาเป็นมุมโปรดของคุณอย่างแน่นอน
ขยับไปที่ชั้น 3 โดยชั้นนี้จะเป็นพื้นที่สำหรับการออกกำลังกายโดยเฉพาะ ซึ่งจะมีทั้งโซน Outdoor อย่างพื้นที่เล่นโยคะ และ Indoor อย่าง Fitness นั่นเอง เริ่มต้นสุขภาพดีไปกับลู่วิ่งไฟฟ้าในห้องฟิตเนส ที่ตัวห้องจะล้อมรอบด้วยกระจกใส ทำให้เราสามารถมองเห็นวิวสระว่ายน้ำได้ชัดเจน ส่วนพื้นที่เล่นโยคะจะอยู่ติดกันบริเวณระเบียง พร้อมปูหญ้าเทียมเอาไว้ให้สวยงาม ลูกบ้านทุกคนจึงสามารถนำเสื่อส่วนตัว มาใช้งานพื้นที่ตรงนี้ในการทำกิจกรรมได้อย่างเต็มที่
สำหรับอุปกรณ์ออกกำลังกายอื่น ๆ อย่างเครื่องเดินวงรี, เครื่องปั่นจักรยาน, เวทยกน้ำหนัก และเครื่องสร้างกล้ามเนื้อต่าง ๆ จะอยู่ภายในห้องขนาดใหญ่ฝั่งตรงข้ามทั้งหมด โดยเราสามารถเลือกเล่นเครื่องเล่นที่ชอบได้อย่างอิสระ ไม่ว่าจะขึ้นมาออกกำลังช่วงเช้าก่อนไปทำงาน หรือฟิตร่างกายช่วงหลังเลิกงานก็สามารถเข้ามาใช้พื้นที่ส่วนนี้ได้ทุกเมื่อ
Room Review
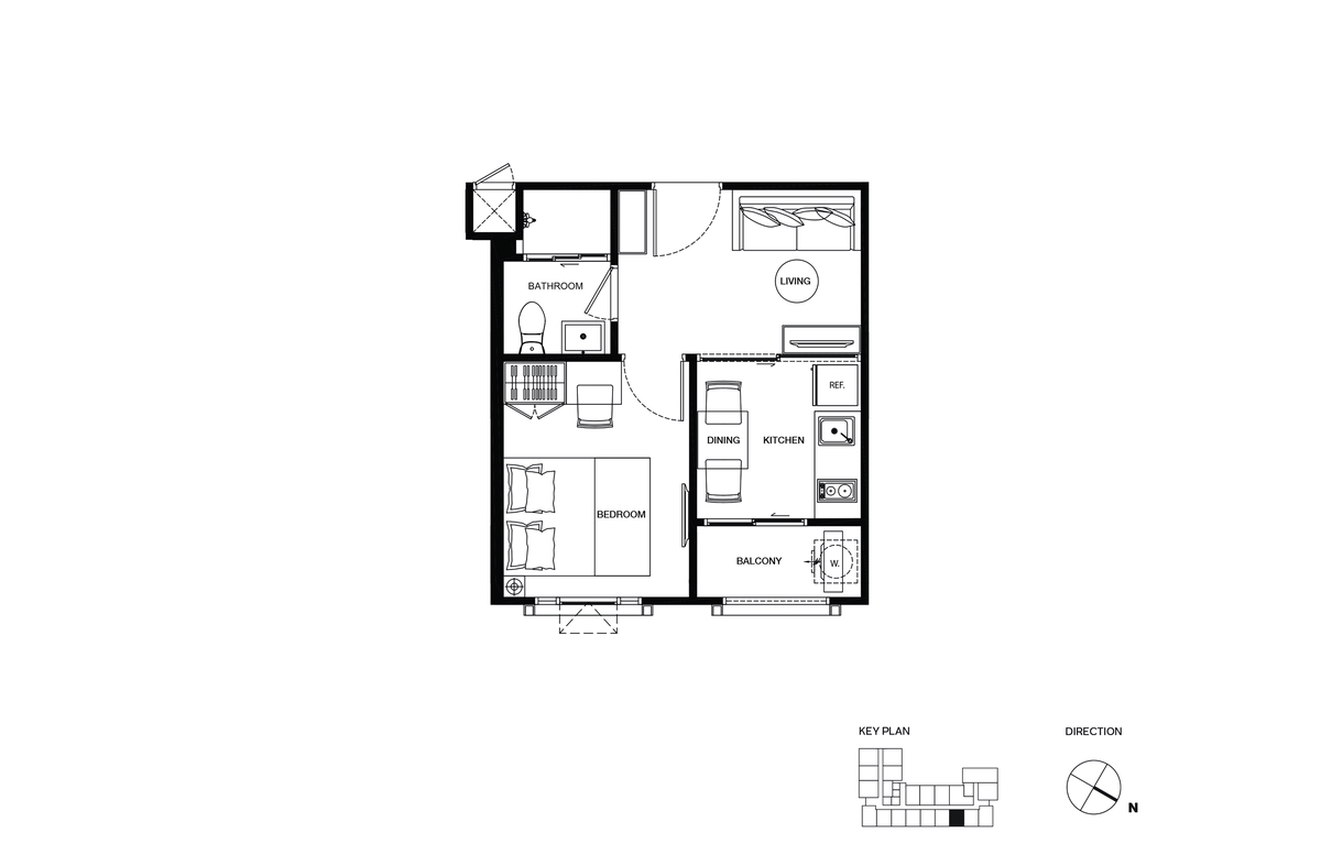
1 Bedroom ขนาด 39.89 ตร.ม.
สำหรับแปลนห้อง 1 Bedroom ขนาด 39.89 ตร.ม. จะมีลักษณะเป็นสี่เหลี่ยมตอนลึก ตกแต่งให้แบบ Fully Fitted ที่มีความยาวเข้าไปด้านในเล็กน้อย และเน้นให้พื้นที่ส่วนตัวอย่าง ‘ห้อง Master Bedroom’ มากเป็นพิเศษ จากทางเข้า ส่วนแรกที่เจอจะเป็น ‘ห้องครัวเปิด’ ถัดไปเป็นมุมของ ‘ห้องนั่งเล่น’ และ ‘ระเบียงห้อง’ ตามลำดับ แต่เมื่อขยับไปทางปีกซ้ายของห้องก็จะเป็นพื้นที่ของ ‘ห้อง Master Bedroom’ ทั้งหมด ซึ่งมาพร้อมกับ Walk-in Closet และ ‘ห้องน้ำ’ ในตัว โดยแขกที่มาเยือนจะสามารถเชื่อมต่อเข้าใช้งานห้องน้ำได้สะดวก ผ่านส่วนของครัวเปิดอีกด้วย
- ดังนั้น ห้อง Type นี้จึงค่อนข้างให้ความเป็นส่วนตัว และเหมาะสำหรับคนที่ต้องการพื้นที่ห้องนอนขนาดใหญ่
เปิดประตูเข้าสู่ห้องพักอาศัยอันกว้างขว้างกว่า 40 ตารางเมตรด้วยกลอนประตู Digital Door Lock จากแบรนด์ Hafele และเมื่อเดินเข้าไปด้านในเราจะเจอกับพื้นที่โล่งที่เชื่อมต่อถึงกัน เริ่มตั้งแต่ส่วนครัวเปิด ถัดไปเป็นมุมห้องนั่งเล่นขนาดใหญ่ ส่วนด้านในสุดจะเป็นระเบียงห้อง ที่ให้ความปลอดโปร่งด้วยประตูกระจกบานสไลด์ สามารถเปิดรับแสงธรรมชาติจากภายนอกให้ส่องเข้ามายังพื้นที่ด้านในได้อย่างเต็มที่
ทางด้านของระยะฝ้าเพดานก็จะมีความสูงอยู่ที่ 2.45 เมตร และปูพื้นห้องด้วยวัสดุลามิเนตหนา 8 มิลลิเมตร โทนสีอ่อน สบายตา และจะมีทางเข้าห้องนอน Master Bedroom อยู่ติดกับห้องนั่งเล่น ภายในประกอบด้วยห้องน้ำส่วนตัว ที่สามารถเชื่อมต่อผ่านส่วนครัวได้อีกทางหนึ่ง
สำหรับ “ครัวเปิด” ทางด้านขวามือของห้อง จะถูกออกแบบมาให้พร้อมสำหรับการใช้งานอย่างเต็มรูปแบบ ครบทั้งเคาน์เตอร์ตั้งพื้น และชั้นแขวนติดผนังรูปตัวแอล (L) แบบเข้ามุม ทำให้คุณมี Space ในการใช้สอย และจัดเก็บของต่าง ๆ ได้อย่างพอเพียง พร้อมด้วยพื้นที่ว่างที่ทางโครงการ MAESTRO 19 จัดเตรียมไว้ให้สำหรับใช้จัดวางมุมทานข้าวสำหรับ 1 - 3 คน สามารถใช้รองรับแขกได้สบาย ๆ
ทางด้านของพื้นที่จัดเก็บภายในครัวนั้น ทางโครงการ MAESTRO 19 Ratchada 19-Vipha ก็ได้ออกแบบอย่างใส่ใจ เว้นช่องสำหรับวางไมโครเวฟ และตู้เย็นให้ในตัว, พร้อมมีลิ้นชักสำหรับจัดเก็บช้อนซ้อมและอุปกรณ์ครัวต่าง ๆ นอกจากนี้ ยังมีตู้แขวนที่แบ่งชั้นภายในไว้เรียบร้อย เพื่อให้คุณสามารถจัดเก็บได้จุใจ และเป็นระเบียบยิ่งขึ้น ไม่ว่าจะเป็นภาชนะ, อุปกรณ์ทำครัว, อาหารแห้ง, เครื่องปรุง หรือวัตถุดิบต่าง ๆ ก็รับรองว่าเก็บได้ครบ เพียงพอสำหรับความต้องการแน่นอน
บริเวณ Top เคาน์เตอร์ครัวนั้นจะเป็นวัสดุหินแกรนิตสีดำ ดูหรูหรา มีความแข็งแรงทนทาน ทนต่อรอยขีดข่วน และความร้อนได้อย่างดีเยี่ยม ดังนั้น คุณจึงสามารถใช้งานครัวได้เต็มที่ ส่วนบริเวณ Backsplash ก็ตกแต่งด้วยวัสดุกระเบื้องเซรามิกโมเซก ที่ให้ทั้งความสวยงาม และยังเช็ดล้างคราบต่าง ๆ ได้ง่ายดาย เราจึงหมดกังวลเรื่องการทำความสะอาดไปได้
มาต่อที่พื้นที่สำหรับเตรียมวัตถุดิบต่าง ๆ ก็บอกได้เลยว่า เพียงพอสำหรับความต้องการอย่างแน่นอน ไม่ว่าจะจัดวางในส่วนของเครื่องใช้ไฟฟ้า หรือเครื่องปรุงต่าง ๆ เพิ่มเติมก็พอเพียง และยังเหลือพื้นที่ใช้สอยให้ใช้งานอื่น ๆ ได้แบบไม่ต้องกังวลเลย
ทางด้านชุดครัวภายในห้อง ทางโครงการ MAESTRO 19 ก็ให้มาทั้งเตาไฟฟ้าขนาด 2 หัว และเครื่องดูดควันระบบปล่อยออกนอกอาคารจากแบรนด์ Hafele ซึ่งจะช่วยดูดกลิ่นและระบายอากาศ เราจึงคลายกังวลเรื่องกลิ่นอาหารจะรบกวนบรรยากาศห้องไปได้ส่วนหนึ่ง
สำหรับซิงก์ล้างจานที่ทางโครงการ MAESTRO 19 ติดตั้งให้นั้นก็มาจากแบรนด์ของ Hafele อีกเช่นกัน โดยจะมีพื้นที่รอบอ่างให้เราใช้สอยได้อย่างสะดวก สามารถวางอุปกรณ์ทำความสะอาด และจัดวางที่คว่ำภาชนะได้สบาย ๆ
นอกจากนี้ ด้านซ้ายสุดของเคาน์เตอร์ครัวจะซ่อนพื้นที่สำหรับวางเครื่องซักผ้าฝาหน้าเอาไว้ให้ด้วย โดยทางโครงการจะเดินระบบน้ำ-ไฟไว้ให้เรียบร้อย ส่วนท็อปด้านบนก็ยังสามารถใช้เป็นพื้นที่ใช้สอยเพิ่มเติมได้ด้วย เรียกว่า... หมดกังวลเรื่องพื้นที่จัดเก็บสำหรับครัวของห้อง Type นี้ไปได้เลย
ต่อกันที่ “ห้องนั่งเล่น” ซึ่งจะอยู่ถัดจากส่วนครัวเปิด โดยพื้นที่ส่วนนี้บอกเลยว่า… ให้มาอย่างกว้างขวาง สามารถจัดวางมุมโซฟาตัวยาว พร้อมชุดโฮมเธียเตอร์ขนาดใหญ่ได้แบบสบาย ๆ ส่วนใครที่อาศัยอยู่กับสัตว์เลี้ยง ก็สามารถบริหารพื้นที่ให้กลายเป็นมุมพักผ่อนของน้อง ๆ ได้เช่นกัน ไม่ว่าจะวางเบาะนุ่ม หรือบ้านหลังเล็ก ๆ ก็สามารถจัดวางให้สัตว์เลี้ยงที่รู้ใจของเราได้สบาย เพราะยังเหลือพื้นที่ใช้สอยให้ใช้งานอีกเยอะ
- โครงการ MAESTRO 19 ได้ติดตั้งเครื่องปรับอากาศแบรนด์ Trane ขนาด 15,000 BTU มาให้ 1 ตัว ช่วยเพิ่มความเย็นสบายให้ทั้งคุณ และสัตว์เลี้ยงได้มีมุมพักผ่อนที่ดีร่วมกัน
ออกไปยังระเบียงห้อง ก็ให้พื้นที่ใช้สอยมาค่อนข้างกว้างขวางเช่นกัน สามารถใช้เป็นพื้นที่ตากผ้า และมุมนั่งเล่นได้ในตัว หรือใครอยากจะปลูกต้นไม้เพิ่มความร่มรื่นให้กับห้องก็สามารถทำได้
กลับเข้ามาสำรวจพื้นที่ห้องทางปีกซ้ายกันต่อ โดยซ้ายมือติดกับประตูทางเข้าจะเป็น “ห้องน้ำ” ที่สามารถเชื่อมต่อกับห้อง Master Besroom ได้อีกทางหนึ่ง ถัดไปจะเป็นทางเข้าห้อง Master Besroom โดยพื้นที่ระหว่างประตูทางเข้าทั้ง 2 ห้องนั้นจะคั่นกลางด้วยชั้นวางรองเท้า ที่ทางโครงการ MAESTRO 19 ได้บิลต์อินเอาไว้ให้
ซึ่งนอกจากจะใช้จัดเก็บรองเท้าได้อย่างเป็นระเบียบเรียบร้อยแล้ว บริเวณด้านบนตู้ยังสามารถใช้วางของใช้จำเป็นที่เรามักหยิบใช้บ่อย ๆ อย่างกุญแจห้อง, กระเป๋าถือใบโปรด, แว่นตาได้ หรือใครจะตกแต่งห้องด้วยการวางด้วยเครื่องหอม ต้นไม้เล็ก ๆ ก็เหมาะ ช่วยเพิ่มความมีชีวิตชีวาให้กับห้องได้เป็นอย่างดี
เมื่อเข้ามาภายใน ”ห้องน้ำ” (จากทางห้องครัว) จะเจอกับส่วนของอ่างล้างหน้าก่อนเป็นลำดับแรก ถัดไปจะเป็นโถสุขภัณฑ์ และ Shower Box ตามลำดับ โดยบริเวณเพดานด้านบนจะติดตั้งเครื่องดูดอากาศเอาไว้ให้ จึงหมดกังวลเรื่องกลิ่นอับชื้นไม่พึงประสงค์ไปได้เลย
อ่างล้างหน้าที่ทางโครงการ MAESTRO 19 เลือกใช้จะเป็นของแบรนด์ Lavenz มาพร้อมกับกระจกเงาทรงกลมที่ให้ความรู้สึกโมเดิร์น ส่วนพื้นที่รอบอ่างก็สามารถวางอุปกรณ์ล้างหน้า และอุปกรณ์ทำความสะอาดช่องปากได้เพียงพอ นอกจากนี้ ด้านใต้อ่างก็ยังมีตู้เก็บของขนาดใหญ่ ให้คุณใช้จัดเก็บเครื่องสำอางต่าง ๆ รวมถึงผลิตภัณฑ์ดูแลผิวได้มากพอสมควร ช่วยให้การจัดวางภายในห้องน้ำดูเป็นระเบียบยิ่งขึ้น ทั้งยังดูแลทำความสะอาดพื้นห้องน้ำได้ง่าย เนื่องจากตัวเคาน์เตอร์ Built in นี้อยู่สูงจากพื้นขึ้นมา
ทางฝั่งของ Shower Box นั้น ทางโครงการ MAESTRO 19 Ratchada 19-Vipha ก็ได้ออกแบบดีไซน์ Partition กั้นส่วนเปียก-แห้งมาให้ดูเก๋และแตกต่าง เป็นบานเลื่อนกระจกใสแบบสามตอน พร้อมตัดขอบสีดำ สามารถเปิดใช้งานได้สะดวก
ขอปิดท้ายการสำรวจห้อง 1 Bedroom ขนาด 39.89 ตร.ม. นี้กันที่ “ห้อง Master Bedroom” ที่ได้พื้นที่ในส่วนของห้องส่วนตัวมาอย่างกว้างกว้างขวางเป็นพิเศษ และเมื่อเปิดเข้าไปด้านในจะมีที่ว่างสำหรับให้วางเตียงขนาดใหญ่ ซึ่งเราเองก็สามารถบริหารพื้นที่ให้เหมาะสมกับการใช้งานได้หลากหลายรูปแบบ
- หากคุณอยากได้มุมทำงานส่วนตัว ก็สามารถเลือกวางเตียงขนาด 5 ฟุต พร้อมหาโต๊ะนั่งทำงานดีไซน์สวย ๆ สักตัวมาวางด้านข้างอย่างในห้องตัวอย่างได้ หรือหากอยากได้มุมทำงานไว้ชมวิวริมหน้าต่าง ก็สามารถเลือกวางเฟอร์นิเจอร์ได้อย่างอิสระ เพราะทั้ง 2 ฝั่งจะมีปลั๊กไฟเตรียมเอาไว้ให้พร้อมแล้วนั่นเอง
- สำหรับใครที่อยู่คนเดียว แต่อยากเพิ่มพื้นที่เก็บของให้มากขึ้นอีกสักหน่อย ก็สามารถเลือกเตียงขนาด 3.5 ฟุต และวางตู้เก็บของ หรือชั้นวางต่าง ๆ เพิ่มเติมได้
- ส่วนคนที่อยากให้สัตว์เลี้ยงตัวโปรดได้มีพื้นที่ส่วนตัวร่วมกัน ก็สามารถจัดพื้นที่เล็ก ๆ สำหรับน้องหมา น้องแมวของเราภายในห้องนอนแห่งนี้ได้ด้วย
โดยทางโครงการ MAESTRO 19 จะติดตั้งเครื่องปรับอากาศแบรนด์ Trane ขนาด 12,000 BTU มาให้อยู่บริเวณปลายเตียง พร้อมปลั๊กและ Cable TV สำหรับแขวนทีวีไว้นอนดู ให้คุณสามารถใช้ช่วงเวลาพิเศษชมภาพยนตร์ และซีรีส์เรื่องโปรดร่วมกับสัตว์เลี้ยงแสนรักของคุณได้ในทุก ๆ วัน
ทางด้านของ Walk-in Closet ก็ดีไซน์มาอย่างเรียบเก๋ มีความกลมกลืนไปกับสี และลายไม้ของพื้นลามิเนต พร้อมมีพื้นที่ให้จัดเก็บเสื้อผ้าได้อย่างจุใจถึง 2 ตู้ ส่วนด้านในสุดก็สามารถเชื่อมต่อไปยังห้องน้ำ ทำให้การแต่งตัว และเลือกเสื้อผ้านั้นทำได้อย่างสะดวกสบายไปด้วยนั่นเอง
1 Bedroom ขนาด 29.66 ตร.ม.
สำหรับแปลนห้อง 1 Bedroom ขนาด 29.66 ตร.ม. จะมีลักษณะเป็นแบบสี่เหลี่ยมจัตุรัส ตกแต่งให้แบบ Fully Fitted พร้อมกั้นแบ่งสัดส่วนพื้นที่ใช้สอยภายในอย่างชัดเจน เมื่อเปิดเข้ามาเราจะเจอกับ ‘ห้องนั่งเล่น’ ก่อนเป็นลำดับแรก ส่วนด้านขวามือจากทางเข้าจะเป็น ‘ห้องน้ำ’ ถัดไปด้านในสุดจึงจะเป็น ‘ห้อง Master Bedroom’ และ ‘ห้องครัวปิด’ ที่มีระเบียงเชื่อมต่อออกไปตามลำดับ
- ห้อง Type นี้จะค่อนข้างเหมาะสำหรับคนที่ต้องการอาศัยอยู่คนเดียว และอยากมีพื้นที่ใช้สอยภายในแยกออกจากกันเป็นสัดส่วนชัดเจน ทั้งยังเหมาะกับผู้ที่ใช้งานครัวเป็นประจำ เนื่องจากห้องครัวจะอยู่ติดระเบียง สามารถเปิดออกระบายอากาศได้ดี
เมื่อเดินเข้ามาด้านใน เราก็จะมายืนอยู่บริเวณ “ห้องนั่งเล่น” พอดี โดยทางโครงการ MAESTRO 19 จะติดตั้งเครื่องปรับอากาศแบรนด์ Trane ขนาด 12,000 BTU เอาไว้ให้ พร้อมปลั๊กไฟและ Cable TV สำหรับติดตั้งทีวีด้วย
- สำหรับมุมวางโซฟาก็สามารถเลือกจัดได้ 2 มุม ทั้งแบบหันตัวโซฟาเข้าห้องครัว แล้วค่อยวางชั้นวางทีวีแบบห้องในตัวอย่าง หรือจะเปลี่ยนมาวางโซฟาแบบเข้ามุม พร้อมติดโทรทัศน์แขวนผนังแทนก็ได้เช่นกัน
สำหรับ “ห้องครัว” จะมาในรูปแบบครัวปิด ที่มีพื้นที่ภายในค่อนข้างกว้างมากเลยทีเดียว เราจึงสามารถออกแบบพื้นที่ให้มีทั้งมุมนั่งทานอาหาร และมุมเตรียมอาหารได้อย่างอิสระ อีกทั้งห้องครัวยังอยู่ติดกับส่วนของระเบียงห้อง คุณจึงสามารถเปิดประตูระเบียงออก เพื่อใช้ระบายอากาศสู่ด้านนอกได้ทันที
เคาน์เตอร์ครัวทางโครงการ MAESTRO 19 บิลตฺอินให้มานั้น จะมีขนาดกำลังพอเหมาะต่อการใช้งาน ทั้งยังติดตั้งตู้แขวนผนังสำหรับเก็บภาชนะ, อุปกรณ์ทำครัว และวัตถุดิบต่าง ๆ มาอย่างจุใจอีกเช่นเคย พร้อมเว้นช่องวางไมโครเวฟ และตู้เย็นให้อีกด้วย
วัสดุ Top เคาน์เตอร์ครัวก็ใช้เป็นหินแกรนิตสีดำ มาตรฐานเดียวกันกับห้อง Type แรก ซึ่งจะมีความทนทาน แข็งแรง สามารถใช้งานครัวหนัก ๆ ได้ในระยะยาว แถมยังดูแลรักษาความสะอาดง่าย ทางด้าน Backsplash ก็ใช้เป็นกระเบื้องเซรามิกโมเซกเช่นเดียวกัน โดยข้อดี คือ จะให้ทั้งความสวยงาม เสมือนเป็นวัสดุตกแต่งห้อง ขณะเดียวกันก็สามารถเช็ดทำความสะอาดคราบน้ำมัน และรอยเปื้อนจากการปรุงอาหารได้ง่าย
ถัดมายัง “พื้นที่วางโต๊ะทานข้าว” ที่สามารถวางโต๊ะขนาด 2 คนนั่งได้แบบพอดี ๆ ส่วนใครที่อยากจะครีเอทให้ส่วนนี้เป็นมุมเตรียมอาหารเพิ่มเติม ก็สามารถเลือกโต๊ะกระจก หรือวัสดุหินแท้-หินเทียมที่ทนทานต่อการใช้งานแทนได้ นอกจากนี้ยังมีปลั๊กไฟมาให้พร้อม สามารถเสียบเครื่องปิ้งขนมปัง หรือเครื่องทำแซนด์วิชเล็ก ๆ บนโต๊ะได้
ด้านนอกระเบียงห้องมาพร้อมกับพื้นที่สำหรับวางเครื่องซักผ้าทั้งฝาหน้าและฝาบน พร้อมวางระบบน้ำ และปลั๊กไฟเอาไว้ให้เรียบร้อย
บริเวณด้านข้างระเบียงจะเหลือพื้นที่สำหรับใช้ตากผ้าได้สบาย ๆ หรือใครจะหาราวตากผ้าแบบติดผนังมาใช้แทน ก็ช่วยประหยัดพื้นที่ได้เป็นอย่างดี ส่วนตัวคอมเพรสเซอร์แอร์จะถูกติดตั้งแขวนไว้เหนือเครื่องซักผ้า ดังนั้น คุณจึงสามารถใช้พื้นที่ทุกตารางนิ้วของระเบียงได้อย่างเต็มที่แน่นอน
ติดกับตู้วางรองเท้าจะเป็นทางเข้าส่วนของ “ห้องน้ำ” โดยภายในจะจัดตกแต่ง และใช้วัสดุมาตรฐานเดียวกันกับห้อง Type แรกทั้งหมด เริ่มตั้งแต่เคาน์เตอร์อ่างล้างหน้า พร้อมกระจกเงาทรงกลม, โถสุขภัณฑ์ พร้อมสายชำระ และที่แขวนทิชชู่จากแบรนด์ Hafele ก่อนจะปิดท้ายด้วย Shower Box ที่มาพร้อมกระจกบานเลื่อน 3 ตอนสำหรับใช้กั้นส่วนเปียก-แห้ง ซึ่งทางโครงการก็ได้ติดตั้ง Hand Shower พร้อม Drop Wall สำหรับใช้วางสบู่ และแชมพูเอาไว้ให้เรียบร้อย
- นอกจากนี้ หากลองปรับเป็นเตียงขนาด 3.5 ฟุตดู ก็จะเหลือพื้นที่ให้เราสามารถวางโต๊ะทำงานขนาดย่อม ๆ เพื่อใช้เป็นมุมทำงานส่วนตัวได้อีกด้วย
ส่วนตู้เสื้อผ้าบิลต์อินทางโครงการ MAESTRO 19 ให้มานั้น จะตั้งอยู่ภายในห้องนอนจำนวน 1 ตู้ พร้อมแบ่งช่องจัดเก็บของให้ครบ ทั้งราวแขวนเสื้อ, ราวแขวนกางเกง, ลิ้นชักเก็บของ 3 ชั้น และช่องวางของด้านบนสุด ให้คุณสามารถจัดเก็บเสื้อผ้า และเครื่องประดับต่าง ๆ ได้อย่างเป็นระเบียบเรียบร้อย
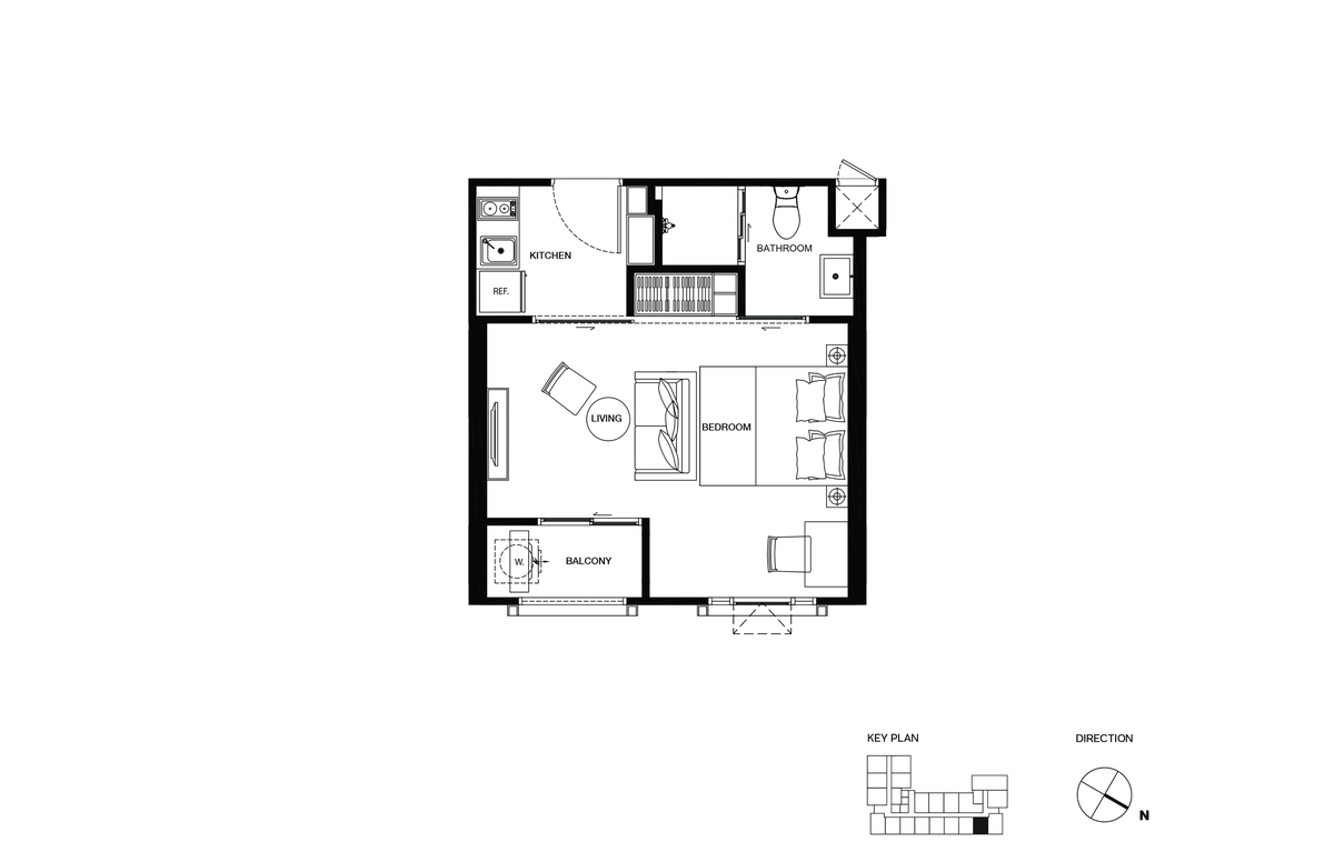
1 Bedroom ขนาด 29.66 ตร.ม.
ปิดท้ายชั่วโมงพักผ่อนด้วยแปลนห้อง 1 Bedroom ขนาด 29.66 ตร.ม. อีก 1 แปลน ซึ่งจะมี Layout ที่แตกต่างไปจาก Type ห้องก่อนหน้าเล็กน้อย แบะตกแต่งให้แบบ Fully Fitted อีกเช่นกัน โดยห้องนี้จะรวมส่วนของห้องนั่งเล่น, ห้องนอน และระเบียงเข้าไว้ด้วยกัน ส่วนประตูของห้องครัว, ตู้เสื้อผ้า และห้องน้ำ จะใช้ร่วมกันในฟังก์ชัน Hybrid Sliding Door สามารถปรับเปลี่ยนการใช้งานได้ตามต้องการ ห้องนี้จึงมีความฟังก์ชันนอล สามารถใช้งานได้หลากหลายรูปแบบ
เมื่อเปิดประตูห้องเข้ามาจะพบกับ “ห้องครัวปิด” ก่อนเป็นส่วนแรก โดยบริเวณนี้จะได้ทั้งเคาน์เตอร์ครัวตั้งพื้น และตู้แขวนผนังมาตรฐานเดียวกันกับห้อง Type ก่อนหน้าทุกประการ ส่วนอีกฝั่งจะเป็นตู้วางรองเท้าที่สามารถวางของด้านบนได้เหมือนกับห้อง 2 Type แรก
ถัดเข้ามาที่ Main หลักของห้องอย่าง ‘ห้องนอนและห้องนั่งเล่น’ กันต่อ ซึ่งจากมุมนี้เมื่อหันกลับไปยังห้องครัว จะเห็น Hybrid Sliding Door 2 บาน ที่ให้คุณพร้อมใช้งานได้อย่างอิสระ สามารถใช้ปิดส่วนครัวให้กลายเป็นครัวปิด, ใช้เป็นประตูห้องน้ำ รวมไปถึงการใช้เป็นหน้าบานของตู้เสื้อผ้าได้แบบ 3 in 1 เลยทีเดียว
ขยับมายัง “ห้องนั่งเล่น” ที่เราสามารถเลือกขนาดโซฟาปลายเตียงได้ตามต้องการ และทางโครงการ MAESTRO 19 ก็ได้ติดตั้งเครื่องปรับอากาศแบรนด์ Trane ขนาด 24,000 BTU ขนาดใหญ่เอาไว้ให้ตรงด้านของผนังห้อง พร้อมด้วยปลั๊กไฟและ Cable TV บอกเลยว่า... สำหรับพื้นที่ส่วนนี้เราจะสามารถดีไซน์ทุกอย่างออกมาได้อย่างใจนึกเลย
- หากคุณเป็นคนหนึ่งที่ชื่นชอบการชมภาพยนตร์ หรือเป็นคอเกมที่รักในความสนุกสนาน : พื้นที่ส่วนนี้ก็เพียงพอสำหรับการวางชั้นทีวีขนาดใหญ่ ให้คุณติดตั้งได้ทั้งชุดลำโพง, เครื่องเล่นต่าง ๆ และมีพื้นที่ให้จัดเก็บแผ่นหนังและแผ่นเกมได้อีกด้วย ทั้งยังมี Space เปิดโล่งให้คุณสนุกกับเกมได้อิสระ ไม่ว่าจะเล่นคนเดียว หรือชวนเพื่อนมาจอยด้วยกันก็ประทับใจไปหมด
- สำหรับคนที่เลี้ยงสัตว์เลี้ยง : อาจเปลี่ยนพื้นที่ส่วนนี้เป็นมุมพักผ่อนของน้องหมา น้องแมวได้ด้วย แน่นอนว่า หากเหล่าสัตว์เลี้ยงได้มีพื้นที่ให้วิ่งเล่น ก็จะช่วยลดความเครียด และทำให้สัตว์เลี้ยงของเรามีความสุขได้มากยิ่งขึ้นนั่นเอง
สำหรับพื้นที่วางเตียงก็สามารถใช้วางเตียงขนาด 5 ฟุตได้แบบเหลือเฟือ ทั้งยังสามารถจัดวางโต๊ะทำงาน, โต๊ะหัวเตียง, ตู้เก็บของขนาดพอเหมาะได้ด้วย ส่วนบริเวณริมหน้าต่าง หากไม่อยากวางเป็นโต๊ะทำงาน ก็สามารถหาเก้าอี้สตูลตัวยาว มาจัดเป็นมุมนั่งเล่นชมวิวชิลล์ ๆ พร้อมเป็นมุมอ่านหนังสือได้ในตัว บอกเลยว่า... ครีเอทได้หลากหลาย เลือกได้ตามความชอบ เหมาะกับทุกไลฟ์สไตล์จริง ๆ
สำหรับ “ห้องน้ำ” ของห้อง Type นี้ก็จะมีตัววัสดุ และการตกแต่งเป็นรูปแบบเดียวกันกับห้อง 2 Type แรก ตลอดจนแบรนด์ของชุดสุขภัณฑ์ด้วย
Location & Lifestyle
โครงการ MAESTRO 19 Ratchada 19-Vipha ตั้งอยู่ ‘ซอยรัชดาภิเษก 19’ หรือ ‘ซอยวิภาวดี 16’ ซึ่งหลายคนอาจรู้จักกันดีในชื่อของ “ซอยโชคชัยร่วมมิตร” นั่นเอง โดยซอยนี้จะเป็นซอยที่สามารถลัดจากถนนวิภาวดีรังสิตออกไปยังถนนรัชดาภิเษก และถนนลาดพร้าวได้ นอกจากนี้ถนนทั้ง 3 เส้นทางยังเป็นถนนสายหลักที่พาเราเชื่อมต่อไปสู่พื้นที่สำคัญ ๆ ของกรุงเทพมหานคร ไม่ว่าจะเป็นโซน New CBD อย่าง พระราม 9, ท่าอากาศยานนานาชาติดอนเมือง และโซนชอปปิงไลฟ์สไตล์ใกล้สวนจตุจักร อย่าง ย่านลาดพร้าว นั่นเอง
เชื่อมต่อทุกศูนย์กลางธุรกิจ
ตอบโจทย์ชีวิตเมืองได้อย่างดีเยี่ยม
ส่วนใครที่เดินทางด้วยระบบขนส่งสาธารณะอย่าง ‘รถไฟฟ้า’ เป็นประจำ ใกล้กับโครงการ MAESTRO 19 Ratchada 19-Vipha เพียง 650 เมตร คุณก็จะสามารถเข้าถึงรถไฟฟ้า MRT สถานีรัชดาภิเษกได้อย่างง่ายดาย สามารถเดินทางเชื่อมต่อเข้าสู่ย่านศูนย์กลางธุรกิจสำคัญ ๆ ได้อย่างสะดวก และรวดเร็ว
- เพียง 2 สถานี : ถึง CentralPlaza Ladprao
- เพียง 3 สถานี : ถึงสวนจตุจักร, Esplanade Ratchada และ The Street Ratchada
- เพียง 4 สถานี : ถึง CentralPlaza Grand Rama 9
นอกจากนี้ ในอนาคตอันใกล้ โครงการรถไฟฟ้ารางเดี่ยวสายสีเหลือง (ลาดพร้าว-สำโรง) และรถไฟฟ้าใต้ดินสายสีส้ม (ตลิ่งชัน-มีนบุรี) ก็กำลังจะมาเปิดให้บริการ ช่วยทำให้การเดินทางรอบ ๆ โครงการ MAESTRO 19 นั้นง่ายดาย และเพิ่มเส้นทางให้หลากหลายมากขึ้นด้วย
หากคุณเป็นคนที่ชื่นชอบไลฟ์สไตล์ทั้ง
ชอปปิง, ชิลล์เอาต์ และกำลังตามหาร้านอร่อยอยู่
ใกล้ ๆ โครงการก็มีสถานที่น่าสนใจรออยู่มากมาย
‘เพียง 3 สถานี’ ก็เข้าถึงได้ทั้ง The Street Ratchada, CW Tower, Esplanade Ratchada และตลาดนัดรถไฟรัชดา
The Street Ratchada ไลฟ์สไตล์มอลล์ใจกลางย่านรัชดา ที่ออกแบบมาเพื่อตอบโจทย์ชีวิตที่ไม่ยึดติดกับเวลา เพราะที่นี่จะมีร้านอาหาร, ร้านกาแฟ, ซูเปอร์มาร์เก็ต และฟิตเนสที่เปิดให้บริการอยู่ตลอด 24 ชั่วโมงด้วย ดังนั้น ไม่ว่าคุณจะอยากชอปปิง ซื้อของจำเป็นกลับห้องในเวลากลางดึก, ตามหาร้านอาหารสำหรับฝากท้องในช่วงเวลาหลังเที่ยงคืน, มองหาร้านกาแฟสำหรับนั่งทำงานอย่างสงบ หรือต้องการออกกำลังกายหลังจากการเคลียร์งานจนดึกดื่น ที่ The Street Ratchada ก็มีสถานที่คอยต้อนรับทุกความต้อง การของคุณในทุกช่วงเวลา
ทางด้านของ Shop ร้านค้าก็มีหลากหลาย ทั้งโซนแฟชัน อย่าง พวกเสื้อผ้า, เครื่องประดับ, กระเป๋า, รองเท้า นอกจากนี้ยังมีร้านอาหารชื่อดัง และคาเฟ่น่ารัก ๆ หลากหลายสัญชาติ ตลอดจนคลาสเรียนออกกำลังกาย ที่นอกเหนือจากฟิตเนส อย่างคลาสมวย และคลาสเรียนเต้นเป็นทางเลือกใหม่ ๆ ให้กับเราด้วย
ถัดจาก The Street Ratchada ไปอีกเล็กน้อย เราจะพบกับ Esplanade Ratchada โรงภาพยนตร์ระดับเมกาเพล็กซ์ 12 โรง ภายในมีบริการทั้งร้านอาหาร, คาเฟ่, สินค้าแฟชัน, บริการคลินิกเพื่อความงาม, ธุรกรรมธนาคาร และอื่น ๆ อีกมากมาย นอกจากนี้ ที่ชั้นบนสุดก็ยังมีบลูโอ ลานโบว์ลิ่ง และห้องคาราโอเกะ, โรงละครรัชดาลัย เธียเตอร์ สำหรับคอละครเวที รวมถึง Art In Paradise พิพิธภัณฑ์ภาพจิตรกรรม 3 มิติ ที่คุณสามารถเข้าไปเยี่ยมชมผลงานพร้อมถ่ายรูปสนุก ๆ ได้ สำหรับใครที่ชอบความบันเทิงแบบครบวงจร ลองแวะมาที่นี่ที่เดียว รับรองไม่ผิดหวังอย่างแน่นอน
ปิดวันกันด้วย ตลาดนัดรถไฟรัชดา ซึ่งเราสามารถเดินเชื่อมจาก Esplanade Ratchada ได้ทันที โดยตลาดนัดแห่งนี้จะค่อนข้างได้รับความนิยมจากทั้งชาวไทย และชาวต่างชาติอย่างล้นหลาม เพราะมี Street Food มากมายให้เลือกชิม แถมยังมีร้านน่านั่ง ดนตรีเพราะ ๆ ให้เลือกแฮงก์เอาต์กันเพลิน ๆ ด้วย อีกทั้งยังมีสินค้าแฟชัน อย่างพวกเสื้อผ้า เครื่องประดับต่าง ๆ ให้เดินเลือกชม เลือกลอง เลือกชอปกันอีกเพียบ บอกเลยว่า... เหมาะสำหรับการแวะมาพักผ่อน หาความสุขหลังเลิกงานอย่างยิ่ง
สำหรับใครที่กำลังตามหาคอนโดพักอาศัยที่ให้ความรู้สึกสงบ ครบด้วยสิ่งอำนวยความสะดวกสบาย ใกล้แหล่งชอป-ชิม-ชิลล์ เลี้ยงสัตว์ได้ อีกทั้งยังเดินทางเข้าถึงโซน New CBD และใจกลางเมืองได้อย่างง่ายดายอยู่ล่ะก็ บอกเลยว่า... ที่โครงการ MAESTRO 19 Ratchada 19-Vipha จะตอบโจทย์ทุกความต้องการให้กับคุณได้
พิเศษ! เมเจอร์ฯ ฉีกกฎ ให้มากกว่ามาตราการรัฐ
ส่วนลดสูงสุด 7 แสนบาท พร้อมฟรีทุกค่าใช้จ่าย
ลงทะเบียนเพื่อรับสิทธิพิเศษ คลิก
มาเอสโตร 19 รัชดา 19 – วิภา
5b9a200bc8ef2288d7fab1bf
maestro-19-ratchada-–-vipha-มาเอสโตร-รัชดา-วิภา





















































































