[Review] บาลานซ์ 24 ชั่วโมงของชีวิตได้อย่างที่ใจต้องการ ที่ 'IDEO Ratchada - Sutthisan'
ถนนสุทธิสารวินิจฉัย แขวงดินแดง เขตดินแดง กรุงเทพมหานคร
Ananda (อนันดา)

Project Info
ใน 24 ชั่วโมง… เราใช้เวลาไปกับอะไรกันบ้าง?
หากลองหันกลับมามองตัวเอง แล้วนั่งหาคำตอบว่า 24 ชั่วโมงที่ผ่านไปในแต่ละวัน เราหมดไปกับอะไรบ้าง? ซึ่งหลายคนอาจได้คำตอบว่า 'หมดไปกับการทำงาน' ทำให้เราหลงลืมความสุขควรได้จากการพักผ่อนไปเสียแล้ว
แต่วันนี้ดีเวลลอปเปอร์ชื่อดังอย่าง Ananda ได้มองเห็นความสำคัญของความสุขต่างๆ เหล่านี้และเนรมิต ให้ IDEO Ratchada - Sutthisan (ไอดีโอ รัชดา - สุทธิสาร) ช่วยตอบโจทย์ชีวิตบาลานซ์ 24 ชั่วโมงของเราได้อย่างที่ใจต้องการ
รายละเอียดโครงการ IDEO Ratchada - Sutthisan
- ชื่อโครงการ : IDEO Ratchada - Sutthisan (ไอดีโอ รัชดา - สุทธิสาร)
- ผู้พัฒนาโครงการ : บริษัท อนันดา ดีเวลลอปเม้นท์ จำกัด (มหาชน)
- ที่ตั้งโครงการ : ถนนสุทธิสารวินิจฉัย แขวงดินแดง เขตดินแดง กรุงเทพมหานคร
- เนื้อที่โครงการ : 1-3-97 ไร่ ลักษณะโครงการ : อาคารชุดพักอาศัย 1 อาคาร สูง 24 ชั้น
- จำนวนห้องชุดพักอาศัย : 410 ยูนิต
- จำนวนที่จอดรถ : 182 คัน หรือประมาณ 47% (ไม่รวมจอดซ้อนคัน)
- แบบห้อง :
- Studio พื้นที่ใช้สอย 28.50 ตารางเมตร
- 1 Bedroom พื้นที่ใช้สอย 34.00 และ 34.50 ตารางเมตร
- 2 Bedrooms พื้นที่ใช้สอย 56.50 และ 71.50 ตารางเมตร - ราคาเริ่มต้น : 2.49 ล้านบาท
- ลิ้งค์ลงทะเบียน : IDEO Ratchada - Sutthisan (ไอดีโอ รัชดา - สุทธิสาร)
Insight
โครงการ IDEO Ratchada - Sutthisan (ไอดีโอ รัชดา - สุทธิสาร) เป็นคอนโค High Rise สูง 24 ชั้น ตั้งอยู่บนถนนสุทธิสารวินิจฉัย ใกล้ๆ กับ 'แยกรัชดา-สุทธิสาร' มีการเดินทางที่สะดวกรวดเร็ว ทาง Ananda จึงดึงจุดเด่นด้านนี้ออกมารวมเข้ากับไลฟ์สไตล์ของคนทำงานรุ่นใหม่ เกิดเป็น IDEO Ratchada - Sutthisan (ไอดีโอ รัชดา - สุทธิสาร) ที่ตอบโจทย์การใช้ชีวิตได้มากกว่าเคย
ตกแต่งอาคารด้วยการเล่นสีดำ-เทา-ขาวให้กับโครงสร้างอาคาร แล้วเพิ่มความโมเดิร์นด้วยเส้นตรงดูมั่นคง พร้อมทั้งจัดวางองค์ประกอบต่างๆ เป็นรูปทรงเรขาคณิต ที่สื่อถึงความเท่และดูทันสมัยเอาใจคนรุ่นใหม่ได้อย่างดี
ทางเข้าโครงการ IDEO Ratchada - Sutthisan (ไอดีโอ รัชดา - สุทธิสาร) จะอยู่ติดกับ 'ถนนสุทธิสารวินิจฉัย' แต่ถึงแม้อาคารจะถูกออกแบบมาในสไตล์ Modern แต่ทางโครงการก็ยังไม่หลงลืมพื้นที่สีเขียว สังเกตได้จากต้นไม้สูงที่เรียงรายอยู่ตลอดเส้นทาง ช่วยเชื่อมเราเข้าสู่พื้นที่พักผ่อนได้อย่างลงตัวทุกก้าวของชีวิต
ที่จอดรถถูกจัดไว้ให้ตั้งแต่บริเวณชั้น 1 เรื่อยขึ้นไปจนถึงชั้น 5 สามารถรองรับการจอดได้ 182 คัน (ไม่รวมจอดซ้อนคัน) หรือคิดเป็น 42% ของจำนวนยูนิตพักอาศัยทั้งหมด
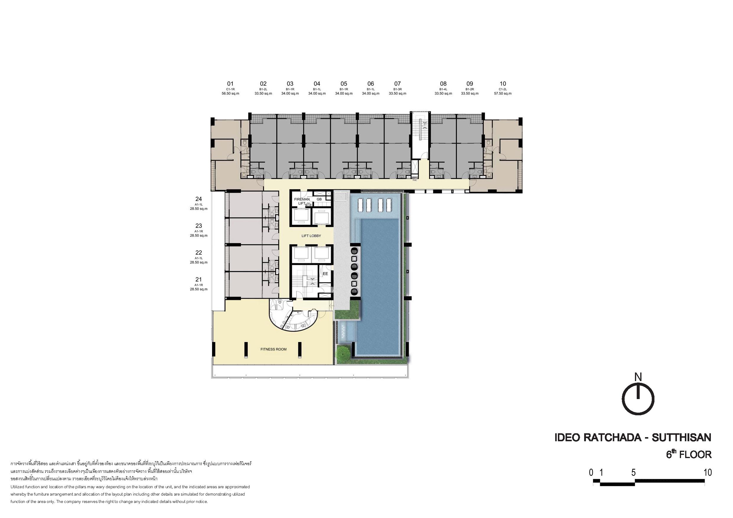
เมื่อขยับขึ้นมาที่ชั้น 6 ก็จะเริ่มเป็นชั้นของยูนิตพักอาศัยกับพื้นที่ Facilities ส่วนกลางอย่าง 'สระว่ายน้ำ' และ 'ฟิตเนส 24 ชั่วโมง' ซึ่งทาง IDEO Ratchada - Sutthisan ก็ได้คำนึงถึงความเป็นส่วนตัวของผู้พักอาศัยจึงแบ่งพื้นที่ทั้งสองโซนออกจากกันชัดเจน
บนชั้น 20 จะออกแบบพื้นที่บางส่วนให้เป็น 'สวนส่วนกลาง' เพื่อเอาใจคนรักธรรมชาติและเปิดให้เราชมวิวรอบๆ โครงการได้ในตัว
หากใครยังชมวิวที่ชั้น 20 ไม่จุใจก็สามารถขยับขึ้นมาบนชั้นดาดฟ้าของโครงการ IDEO Ratchada - Sutthisan (ไอดีโอ รัชดา - สุทธิสาร) ได้เพราะที่ชั้นดาดฟ้าจะมี 'Sky Garden' กับ 'Outdoor Gym' ไว้รองรับการใช้งานของลูกบ้านทุกคน
Sky Garden เป็นสวนที่ปลูกต้นไม้ใหญ่ไว้รอบๆ พร้อมตกแต่งและแซมพื้นที่สีเขียวด้วยต้นไม้พันธุ์เล็ก ซึ่งทางโครงการก็ได้จัดวางเก้าอี้ไว้ตามจุดต่างๆ เพื่อให้เราได้ใช้เวลาพักผ่อนอยู่ท่ามกลางสวนร่มรื่น ถือเป็นการชาร์จพลัง ละทิ้งความเครียดจากการทำงานได้เป็นอย่างดี
ส่วนใครที่ชอบออกกำลังกายแบบ outdoor ทาง IDEO Ratchada - Sutthisan (ไอดีโอ รัชดา - สุทธิสาร) เองก็ได้จัดโซน Outdoor Gym ไว้ใกล้ๆ กัน หากวันไหนอยากสูดอากาศบริสุทธิ์ไปพร้อมๆ กับได้สุขภาพที่ดีก็ลองเปลี่ยนนมาใช้งานส่วนนี้ได้
ภาพจำลองสิ่งอำนวยความสะดวกภายใน IDEO Ratchada - Sutthisan
ภาพจำลองสระว่ายน้ำแบบ Lap Pool ตั้งอยู่บริเวณชั้น 6 ซึ่งทาง IDEO Ratchada - Sutthisan ได้ออกแบบให้เป็นสระว่ายน้ำสไตล์ Indoor มีโซน Jacuzzi ให้เราหย่อนตัวลงผ่อนคลายไปพร้อมๆ กับนั่งชมวิวเมืองยามค่ำคืนผ่านกระจกใสบานใหญ่
เอาใจคนชอบออกกำลังกายกลางแจ้งด้วย Outdoor Gym ที่อยู่บริเวณชั้นดาดฟ้าของอาคาร ให้เราสนุกและเรียกเหงื่อไปกับกิจกรรมแนวใหม่ในรูปแบบเกมส์
แผนผังอาคารของคอนโด IDEO Ratchada - Sutthisan
โครงการ IDEO Ratchada - Sutthisan (ไอดีโอ รัชดา - สุทธิสาร) ตั้งอยู่บนที่ดินขนาด 1-3-97 ไร่ รูปทรงคล้ายสี่เหลี่ยมจตุรัส พร้อมออกแบบผสมผสานใส่ความเป็นโมเดิร์นให้ลงตัวกับความเป็นธรรมชาติ เพื่อตอบสนองไลฟ์สไตล์ชีวิตของคนทำงานรุ่นใหม่ที่มีคาแรคเตอร์หลากหลาย ไม่ซ้ำกันตลอด 24 ชั่วโมง
ตั้งแต่ทางเข้าอาคารจะปลูกต้นไม้ไว้รอบๆ โครงการเหมือนเป็นปราการด่านแรกที่จะพาเราหลบหนีความวุ่นวายภายนอก และมีสิ่งอำนวยความสะดวกอย่าง Lobby, Mailbox area, สำนักงานนิติบุคคล, ห้องประชุม, พื้นที่ใช้งานอเนกประสงค์, สวนส่วนกลาง และลานจอดรถอยู่บริเวณชั้น Ground Floor โดยส่วนของลานจอดรถจะมีให้ตั้งแต่ชั้น Ground ขึ้นไปจนถึงชั้น 5
กระโดดขึ้นมาที่ชั้น 6 ซึ่งเป็นชั้นแรกที่เริ่มมียูนิตพักอาศัย โดยชั้นนี้จะมีจำนวนห้องชุดทั้งหมด 14 ยูนิต และแบ่งพื้นที่อีกส่วนเป็นโซนของ Facilities มีฟิตเนสวางไว้คู่กับสระว่ายน้ำ เหมาะสำหรับผู้ที่ชอบออกกำลังกายจะได้ไม่ต้องเดินไกล ขณะเดียวกันก็แยกพื้นที่สองส่วนนี้ออกจากกันชัดเจนเพื่อความเป็นส่วนตัวของผู้พักอาศัย
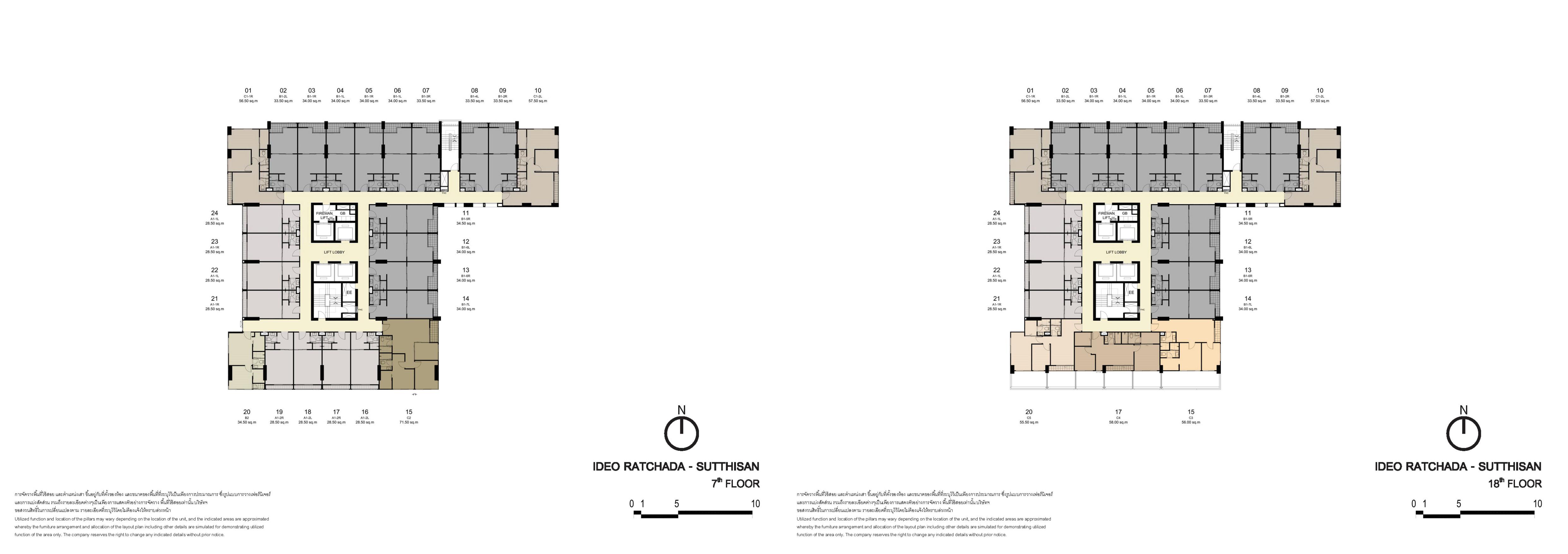
ตั้งแต่ชั้น 7 ขึ้นไปจนถึงชั้นที่ 19 จะเป็นพื้นที่ของการพักอาศัยทั้งหมด โดยแต่ละชั้นจะมีจำนวนยูนิตรวมกัน 24 ยูนิต ซึ่งทางโครงการ IDEO Ratchada - Sutthisan (ไอดีโอ รัชดา - สุทธิสาร) ก็ได้ออกแบบให้ทุกยูนิตวางตัวเรียงกันเป็นแบบ Single Corridor คือแต่ละห้องจะตั้งอยู่ฝั่งเดียวกัน มี โถงทางเดินแบบวนรอบอาคาร ทำให้เราได้รับความเป็นส่วนตัวเพิ่มขึ้นไปอีกหนึ่งระดับ
ส่วนชั้นที่ 20 จนถึงชั้นที่ 24 จะลดจำนวนยูนิตพักอาศัยลง เหลือเพียงชั้นละ 18 ยูนิตเท่านั้น ทำให้เราได้รับความเป็นส่วนตัวที่ยิ่งกว่า เหมาะสำหรับคนที่ตามหาความเงียบสงบในการอยู่อาศัย พร้อมทั้งได้ชมวิวมุมสูงและมีสวนส่วนกลางที่ชั้น 20 ยื่นออกมาให้เราสัมผัสธรรมชาติได้อย่างใกล้ชิด
1 BR : 34.00 sq.m.
หลังจากทำความรู้จักกับโครงการ IDEO Ratchada - Sutthisan (ไอดีโอ รัชดา - สุทธิสาร) กันมาสักพักแล้ว ก็ถึงเวลาที่ Estopolis จะพาไปชมห้องตัวอย่างกันต่อ!!! โดยห้องที่เราจะพาไปชมกันวันนี้จะเป็นห้องแบบ 'Fully Fitted' ซึ่งมี 2 Type ด้วยกัน ได้แก่ ห้อง 1 Bedroom พื้นที่ใช้สอย 34.00 ตารางเมตร และห้อง 2 Bedrooms พื้นที่ใช้สอย 56.50 ตารางเมตร
เริ่มกันที่ห้อง Type แรกแบบ 1 Bedroom พื้นที่ใช้สอยขนาด 34.00 ตารางเมตร ซึ่งเป็นห้องที่ทาง Ananda ออกแบบมาให้เป็นพิเศษ มีอยู่ในโครงการ IDEO Ratchada - Sutthisan (ไอดีโอ รัชดา - สุทธิสาร) เป็นที่แรก โดยห้อง Type นี้จะออกแบบให้ผู้อยู่อาศัยมีความรู้สึกเหมือนอยู่ 'บ้าน' มากยิ่งขึ้น
สำหรับห้องปกติทั่วไปจะมีการวาง Layout ให้เปิดประตูเข้ามาเจอกับห้องนั่งเล่นและห้องนอนตามลำดับ แต่ห้อง Type นี้จะต่างออกไป คือ ยก 'ห้องนอน' กับ 'ห้องน้ำ' มาไว้เป็นโซนแรกติดกับประตูห้อง และเมื่อเปิดพาร์ติชั่นบานเลื่อนออกไปถึงจะเจอกับส่วนของ 'ห้องนั่งเล่น' กับ 'ห้องครัว' ซึ่งถ้าเรามองถึงการใช้งานจริงก็จะเห็นว่า...การจัดวางห้องลักษณะนี้ก็เอื้อต่อการใช้ชีวิตประจำวันไม่น้อย
ก้าวข้ามรูปแบบเดิมๆ
เพื่อเข้าสู่การจัดวางแนวใหม่ที่ลงตัวกว่าเดิม
ตัวห้องถูกออกแบบเป็นทรงสี่เหลี่ยมผืนผ้า วางตัวในแนวลึก เมื่อเปิดประตูเข้ามาจะเจอกับโถงทางเดินยาวทอดเข้าสู่ 'ห้องนอน' ทั้งสองฝั่งจะถูกขนาบข้างด้วย 'ตู้ใส่ของ' และ 'ห้องน้ำ' ด้วยความสูงของ Floor-to-ceiling อยู่ที่ 2.6 เมตร ทำให้ห้องนี้ดูโปร่งโล่งน่าอยู่
พื้นห้องปูด้วยพื้นลามิเนตลายไม้สีอ่อนหนา 8 มิลลิเมตรดูสวยงาม พร้อมติดตั้งไฟดาวน์ไลท์, สวิตซ์ไฟ และปลั๊กไฟตามแบบมาตรฐานไว้ให้ทั่วห้อง
ฝั่งขวาของประตูถูกบิลท์อิน (Built-in) เป็น 'ตู้ใส่ของ' ที่ทางโครงการ IDEO Ratchada - Sutthisan (ไอดีโอ รัชดา - สุทธิสาร) แถมมาให้ ซึ่งทาง Ananda ก็ได้ออกแบบพิเศษให้มีฟังก์ชันการใช้งานที่หลากหลายเป็นได้ทั้งตู้ใส่ของ, ชั้นวางรองเท้าและโซฟาคู่ตัวเล็กๆ ให้เรานั่งทำธุระได้สะดวก เหนือที่นั่งขึ้นไปจะมีที่แขวนกุญแจหรือของใช้ขนาดเล็กง่ายต่อการใช้งาน
เปิดตู้ออกมาจะมีช่องสำหรับใส่ของมากมาย แบ่งฟังก์ชันให้เรียบร้อยดูเป็นระเบียบ โดยตู้ในห้องตัวอย่างจะต่างจากตู้ที่ทางโครงการแถมให้เล็กน้อย ตรงหน้าบานเปิด-ปิด ที่ของห้องจริงจะเป็นบานสีน้ำตาลทึบ ส่วนภายในจะเป็นสีขาว
ตรงข้ามกันเป็น 'ห้องน้ำ' ที่ใช้กระเบื้องสีเทาในการปูพื้นและติดกระเบื้องสีครีมไว้ที่ผนังเพื่อความสวยงาม พร้อมแยกโซนแห้งและเปียกออกจากกันชัดเจน
บริเวณทางเข้าห้องน้ำจะยกธรณีประตูขึ้นเล็กน้อย ป้องกันไม่ให้น้ำไหลออกมายังข้างนอกห้อง พร้อมติดตั้งเครื่องระบายอากาศไว้ภายในเพื่อช่วยระบายกลิ่นและความอับชื้น
สำหรับสุขภัณฑ์ที่ใช้จะเป็นของ American Standard ครบชุด ซึ่งเป็นมาตรฐานเดียวกันทั้งโครงการ ส่วนด้านข้างโถสุขภัณฑ์ก็ได้ติดตั้งสายฉีดชำระและที่วางกระดาษทิชชูให้เรียบร้อย พร้อมราวแขวนผ้าเช็ดตัวที่ติดอยู่เหนือขึ้นไป
อ่างล้างหน้าขนาดใหญ่สามารถวางของได้ในตัว ทำให้เราวางของใช้ในห้องน้ำได้เยอะ หยิบจับใช้งานก็สะดวกสบาย ใกล้มือ เหนืออ่างเป็นกระจกเงาบานใหญ่ส่องได้เกือบทั่งตัว ส่วนข้างล่างเป็นชั้นวางของบิลท์อิน ที่ยกสูงขึ้นมาเล็กน้อยป้องกันน้ำและคราบสกปรก
ห้องอาบน้ำถูกกั้นออกจากโซนแห้งด้วยพาร์ติชั่นบานเลื่อนแบบ 2 ตอน
ด้านในติดตั้งฝักบัวแบบ Hand Shower ของ American Standard โดยผนังส่วนที่ตรงกับฝักบัวจะตกแต่งด้วยกระเบื้องลายตารางสีน้ำตาลเข้ม ช่วยเพิ่มมิติให้ห้องได้เป็นอย่างดี ส่วนบริเวณมุมห้องอาบน้ำจะวางท่อระบายน้ำเอาไว้แล้วปิดทับด้วยตะแกรง เพื่อป้องกันการอุดตันของเศษฝุ่นและเส้นผม
เมื่อออกมาจากห้องน้ำ จะสังเกตเห็นชั้นวางของที่ทาง IDEO Ratchada - Sutthisan (ไอดีโอ รัชดา - สุทธิสาร) ได้บิลท์อินไว้อีกหนึ่งจุด โดยชั้นนี้จะมีช่องสำหรับใส่เครื่องซักผ้าขนาด 7.5 กิโลกรัมให้ พร้อมติดตั้งระบบท่อน้ำแล้วเรียบร้อย
ขยับเข้ามาในส่วนของ 'ห้องนอน' โดยบริเวณนี้จะมีการติดตั้งเครื่องปรับอากาศมาให้ด้วย และเนื่องจากตั้งอยู่ใกล้กับห้องน้ำ ห้องนี้จึงดูเหมือนเป็นห้องนอนที่มีห้องน้ำอยู่ในตัวไปโดยปริยาย
สำหรับพื้นที่ห้องนอนจะกว้างพอให้เราวางเตียงขนาดคิงไซส์เหมือนในห้องตัวอย่างได้ หรือใครจะออกแบบห้องนอนเป็นสไตล์ของตัวเองก็ได้ตามใจเพราะในห้องจริงจะเป็นพื้นที่โล่งๆ ให้วางเตียง, โต๊ะและของตกแต่งเพิ่มเติมเองได้ ซึ่งทาง IDEO Ratchada - Sutthisan (ไอดีโอ รัชดา - สุทธิสาร) ก็ได้นำเสนอไอเดียออกมาเป็นสไตล์โมเดิร์นดู Luxury เล็กๆ โดยการใช้โทนสีครีม-ดำ ที่ทั้งอ่อนหวานและดูเท่ในห้องเดียว
พร้อมบิลท์อิน (Built-in) ตู้เสื้อผ้ามาให้ผู้พักอาศัยถึง 2 ตู้ โดยตู้แรกจะออกแบบให้บานเปิด-ปิดด้านหนึ่งเป็นบานไม้ ส่วนอีกด้านจะเป็นกระจกเงาบานใหญ่เพื่อให้เราใช้สำรวจความเเรียบร้อยได้ในตัว
ส่วนอีกตู้ที่สองจะเป็นตู้เสื้อผ้าขนาดใหญ่ ที่มีช่องใส่ของกับราวแขวนผ้ามาให้เป็นจำนวนมาก รับรองว่าถูกใจสายแฟชั่นได้ชอบแต่งตัวกันอย่างแน่นอน
โดยตู้ที่ทางโครงการแถมให้ในห้องจริงจะเป็นตู้ที่มีบานเปิด-ปิดเป็นบานไม้ทั้งหมด ถ้าหากใครอยากได้ตู้แบบนี้ก็สามารถกรุกระจกและติดตั้งไฟ Led เพิ่มเองได้
ขยับออกจากห้องนอนแล้วไปสำรวจ 'ห้องนั่งเล่น' กันต่อ ซึ่งจุดนี้จะมีพาร์ติชั่นบานเลื่อน 3 ตอนกั้นแบ่งสัดส่วนห้องให้
โดยทางโครงการจะติดตั้งเครื่องปรับอากาศในห้องนั่งเล่นให้อีกตัวหนึ่ง และมีพื้นที่กว้างพอให้เราวางโซฟาขนาด 2 ที่นั่งคู่กับโต๊ะกลางได้สบายๆ
นอกจากนี้เรายังสามารถปรับเปลี่ยนฟังก์ชันการใช้งานได้เองตามต้องการ อาจเลือกวางโต๊ะทำงานตัวเล็กเพิ่มเข้ามา แล้วบิลท์อินชั้นแขวนผนังไว้ใช้วางของตกแต่งห้องได้เช่นกัน
ตรงข้ามกับโซฟาจะเป็น 'ห้องครัวแบบเปิด' ที่ทางโครงการ IDEO Ratchada - Sutthisan (ไอดีโอ รัชดา - สุทธิสาร) ได้จัดเตรียมไว้ให้เรียบร้อย โดยบริเวณเคาน์เตอร์ครัวจะมีการบิลท์อิน (Built-in) ตู้ใส่ของสำหรับใช้จัดวางข้าวของเครื่องใช้ภายในครัว ใกล้ๆ กันมีพื้นที่ให้วางตู้เย็นขนาด 9.1 คิวบิกฟุต หรือจะวางชั้นวางทีวีเล็กๆ ไว้ข้างกันอย่างในห้องตัวอย่างแบบนี้ก็ได้
ตัวเคาน์เตอร์ครัวด้านล่างออกแบบเป็นสีน้ำตาลลายไม้ ตัดกับความเงางามของท็อปครัว ส่วนผนังด้านหลังกรุเป็น Backsplash สีดำเพื่อป้องกันคราบสกปรกจากการทำอาหารและยังง่ายต่อการทำความสะอาด
ซิงค์ล้างจานทรงสี่เหลี่ยมก้นลึกจาก Teka ติดตั้งมาพร้อมก็อกน้ำหมุนได้ 180 องศา เอื้อต่อการใช้งาน ล้างทำความสะอาดวัสดุอุปกรณ์ต่างๆ
ใกล้กันเป็นเตาไฟฟ้าขนาด 2 หัวที่มาพร้อมเครื่องดูดควันแบบต่อท่อปล่อยออกนอกอาคารของ Teka และมีการติดปลั๊กไว้คอยรองรับการใช้งานเครื่องใช้ไฟฟ้าต่างๆ
มาถึงส่วนของ 'ระเบียง' ที่จะไม่กล่าวถึงก็คงไม่ได้ โดยทางออกของระเบียงจะถูกเชื่อมติดกับโซนนั่งเล่น แล้วกั้นด้วยพาร์ติชั่นบานเลื่อนแบบ 2 ตอน ติดตั้งเป็นกระจกตัดแสงสีเขียวช่วยป้องกันความร้อนได้ในระดับหนึ่ง
พื้นที่บริเวณระเบียงกว้างพอให้เราตกแต่งส่วนนี้ให้เป็นมุมจิบแกแฟเล็กๆ หรือสวนแนวตั้งได้ โดยจะแขวนคอมเพลสเซร์แอร์ทั้ง 2 ตัวไว้ทางขวามือ แล้วปิดทับอีกชั้นด้วยระแนงเหล็กสีดำเพื่อความสวยงาม เหนือขึ้นไปได้มีการติดตั้งไฟดาวน์ไลท์ไว้ให้เพื่อให้ความสว่างเวลาใช้งานตอนกลางคืน
2 BR : 56.50 sq.m.
มาต่อที่ห้อง 2 Bedrooms ขนาด 56.50 ตารางเมตรที่เหมาะสำหรับผู้อยู่อาศัย 2 คน หรือใครจะอยู่กันเป็นครอบครัวเล็กก็ตอบโจทย์เช่นกัน ซึ่งทาง IDEO Ratchada - Sutthisan (ไอดีโอ รัชดา - สุทธิสาร) ยังคงตกแต่งเป็นแบบ 'Fully Fitted' ที่มาพร้อมกับเฟอร์นิเจอร์ชุดครัว, สุขภุณฑ์ห้องน้ำ และตู้เสื้อผ้าให้ตามเดิม
สำหรับห้อง Type นี้เมื่อเปิดประตูเข้ามาจะเจอกับพื้นที่ของ 'ห้องครัวแบบเปิด' ก่อนเป็นอันดับแรก ถัดเข้าไปจึงเป็น 'ห้องรับแขก' และ 'ห้องน้ำ' ไว้สำหรับรับรองแขก และเมื่อสังเกตดีๆ จะเห็นว่าโซนพื้นที่พักผ่อนจะมีการแบ่งพื้นที่ออกเป็นรูปสี่เหลี่ยมจตุรัส โดยโซนนี้จะมี 'ห้องนอน' 2 ห้อง และ 'ห้องน้ำ' อีกห้องวางอยู่ในบริเวณเดียวกันเพื่อให้ความเป็นส่วนตัว มีสัดส่วนชัดเจน
บริเวณทางเข้าจะมี 'ชุดครัวแบบเปิด' กับ 'ตู้ใส่ของ' ไว้ให้ ซึ่งทางโครงการได้รวมฟังก์ชันการใช้งานต่างๆ มาไว้ด้วยกันเพื่อให้ง่ายต่อการใช้สอยและช่วยประหยัดพื้นที่ได้เป็นอย่างดี โดยจัดวางไว้เป็นแนวยาวขนานไปกับทางเดินที่จะนำเราเข้าไปสู่ 'ห้องรับแขก'
ในห้องจริง...พื้นที่รับแขกที่เห็นอยู่นี้จะเป็นพื้นที่ว่างมาพร้อมกับเครื่องปรับอากาศที่ทาง IDEO Ratchada - Sutthisan ติดตั้งไว้ให้ โดยเราสามารถออกแบบพื้นที่ส่วนนี้ให้ตรงตามไลฟ์สไตล์ของตนเองได้
สำหรับห้องตัวอย่าง...ทางโครงการ IDEO Ratchada - Sutthisan (ไอดีโอ รัชดา - สุทธิสาร) จะออกแบบตกแต่งห้องด้วยโทนสีเรียบหรูแต่ดูทันสมัย พร้อมวางโซฟารับแขกไว้คู่กับชั้นวางทีวี แล้วบิลท์อินโต๊ะทำงานเพิ่ม เพื่อรองรับไลฟ์สไตล์การทำงานของผู้อยู่อาศัยที่นิยมกลับมาทำงานต่อที่ห้อง
บริเวณด้านหลังโซฟาถูกจัดให้เป็นมุมรับประทานอาหารสำหรับ 4 คน ซึ่งดูลงตัวกับพื้นที่ห้องและการใช้ชีวิตของคนรุ่นใหม่ไม่น้อย เมื่อทำอาหารเสร็จก็สามารถยกมาเสิร์ฟที่โต๊ะและใช้เวลาพิเศษร่วมกับคนพิเศษได้เลย
ใกล้กันเป็นพาร์ติชั่นกระจกบานเลื่อนแบบ 3 ตอน ที่สามารถเปิดรับแสงจากภายนอกให้เข้ามาได้อย่างเต็มที่ ทำให้เวลากลางวันสว่างจนเราแทบไม่ต้องเปิดใช้ไฟก็ยังได้ เมื่อเลื่อนบานกระจกออกก็จะเจอ 'ระเบียง' ที่ทอดตัวเป็นแนวยาว มีการแขวนคอมเพลสเซอร์แอร์ไว้ทางด้านขวาพร้อมปิดทับด้วยระแนงเหล็กเช่นเดียวกับห้องแรก
ตรงข้ามกับระเบียงจะเป็น 'ห้องน้ำส่วนกลาง' ที่มีรูปแบบการใช้งานเหมือนกับห้อง 1 Bedroom ออกแบบเป็นมาตรฐานเดียวกันทั้งโครงการ จะต่างกันก็เพียงการวางตัวของห้องที่จะเป็นแนวยาวและขนาดที่ลดลงมาเล็กน้อย
เมื่อเดินต่อออกมาเราจะเจอกับโถงทางเดินที่จะพาเราเข้าสู่ 'พื้นที่ส่วนตัว'
ฝั่งซ้ายและขวาถูกขนาบข้างด้วย 'ห้องนอนเล็ก' และ 'ห้องน้ำ' ตามลำดับ โดยโถงทางเดินนี้จะไปสิ้นสุดที่ห้อง 'Master Bedroom'
และก็มาถึงอีกหนึ่งห้องอเนกประสงค์ที่เราสามารถสร้างสรรค์ผลงานได้เองตามต้องการ โดยทางโครงการ IDEO Ratchada - Sutthisan (ไอดีโอ รัชดา - สุทธิสาร) ได้จัดวาง Layout ห้องนี้ให้เป็น 'ห้องนอนเล็ก' เหมาะสำหรับการอยู่อาศัยแบบครอบครัว มีพ่อแม่ลูก แต่ถ้าใครอยากเปลี่ยนให้กลายเป็นห้องทำงาน, ห้องอ่านหนังสือ หรือห้องดูหนังก็สามารถทำได้เช่นกัน
โดยทางโครงการได้บิลท์อิน 'ตู้เสื้อผ้า' มาไว้ให้อยู่ในห้องนี้ด้วย โดยตู้เสื้อผ้าของห้องจริงจะตู้แบบบานทึบลายไม้สีน้ำตาลเข้ม
ถึงแม้โครงการ IDEO Ratchada - Sutthisan จะติดตั้งเครื่องปรับอากาศมาให้ในห้องแล้ว แต่ถ้าวันไหนนึกอยากสัมผัสลมธรรมชาติพร้อมสูดอากาศเย็นๆ จากภายนอก ก็สามารถเปิดหน้าต่างบานเลื่อนแทนได้ แถมยังช่วยให้ห้องดูกว้างขวาง สว่างและไม่ปิดทับ ทำให้ห้องของเราน่าอยู่ยิ่งขึ้น
ถัดจากห้องนอนเล็กมาต่อที่ห้อง 'Master Bedroom' ซึ่งมีขนาดกว้างขวาง สามารถวางเตียงคิงไซส์ และตกแต่งส่วนต่างๆ ได้สบายๆ โดยทางโครงการได้เลือกตกแต่งห้องตัวอย่างด้วยโทนสีเขียวมะกอกตัดกับสีคราม และเพิ่มลูกเล่นด้วยลวดลายสีทอง ช่วยเพิ่มความหรูหราให้กับห้องได้อย่างไม่ยากเย็นนัก
พร้อมให้เราเปิดรับแสงและลมจากธรรมชาติเต็มที่ ผ่านหน้าต่างบานเลื่อนขนาดใหญ่ที่ถูกติดให้มุม ช่วยให้ห้องดูปลอดโปร่งขึ้นหลายเท่า สามารถมองเห็นด้านนอกอาคารได้เต็มสายตา
และก็มาถึงที่ไฮไลท์ในห้องนี้อย่าง 'Walk-in Closet' ตู้เสื้อผ้าที่ถูกดีไซน์ให้เป็นเหมือนกับห้องแต่งตัวเล็กๆ กั้นด้วยพาร์ติชั่นกระจกบานขุ่น 2 ตอนเพื่อความเป็นส่วนตัว
โดยฟังก์ชันส่วนนี้น่าจะถูกใจหนุ่มๆ สาวๆ สายแฟชั่นที่รักในการแต่งตัว และหากนำโต๊ะเครื่องแป้งสักตัว มาวางไว้ก็คงกลายเป็นห้องนอนในฝันของใครหลายคนได้อย่างไม่ยากเย็น
ภายในถูกบิลท์อิน (Built-in) เป็นชั้นวางของ, ลิ้นชัก และราวแขวนเอาไว้ให้เรียบร้อย เพื่อให้เราใช้งานได้อย่างเป็นระเบียบ หรือถ้ายังไม่จุใจก็ยังมีพื้นที่ให้บิลท์อินท์ (Built-in) ชั้นลอย หรือโคมไฟตกแต่งเพิ่มเติมได้
Location
หากพูดถึงที่ตั้งโครงการ IDEO Ratchada - Sutthisan (ไอดีโอ รัชดา - สุทธิสาร) ก็คงปฏิเสธไม่ได้เลยว่าบน 'ถนนสุทธิสารวินิจฉัย' เป็นทำเลที่เอื้อต่อการใช้ชีวิต 24 ชั่วโมงอย่างแท้จริง
โดยตัว 'ถนนสุทธิสารวินิจฉัย' จะป็นถนนที่มีระยะทางรวม 4.5 กิโลเมตร แบ่งออกเป็น 3 ช่วง
- ช่วงที่ 1 : ตั้งแต่แยก 'สะพานควาย' เรื่อยมาจนถึง 'แยกสุทธิสาร'
- ช่วงที่ 2 : จาก 'แยกสุทธิสาร' มาจนถึง 'แยกรัชดา-สุทธิสาร'
- ช่วงที่ 3 : เริ่มจาก 'แยกรัชดา-สุทธิสาร' มาบรรจบที่ 'ซอยลาดพร้าว 64'
โดยโครงการ IDEO Ratchada - Sutthisan (ไอดีโอ รัชดา - สุทธิสาร) จะตั้งอยู่บนช่วงที่ 2 ขยับไปทาง 'แยกรัชดา-สุทธิสาร' จุดคมนาคมที่หลายคนทราบกันดีถึงความเป็นจุดไพร์มด้านการเดินทางที่มีการสัญจรอยู่ตลอดเวลา เพราะบริเวณนี้จะเป็นที่ตั้งของสถานีรถไฟฟ้าใต้ดิน MRT สุทธิสาร
การเดินทางด้วยระบบขนส่งสาธารณะ

ด้วยระยะเพียง 450 เมตรจากหน้าโครงการ IDEO Ratchada - Sutthisan (ไอดีโอ รัชดา - สุทธิสาร) ไปจนถึง 'MRT สุทธิสาร' ทำให้การเดินทางไปยังสถานที่ต่างๆ มีความสะดวกรวดเร็วมากขึ้นตามไปด้วย และการเดินทางที่สะดวกสบายนี่เองที่ตอบโจทย์คนทำงานรุ่นใหม่ได้เป็นอย่างดี
ซึ่งไม่ใช่แค่เรื่องการเดินทางด้วยรถไฟใต้ดินเท่านั้น แต่ MRT ยังสามารถเชื่อมต่อ (Interchange) กับระบบคมนาคมสาธารณะอื่นๆ ได้อีกด้วย
หากเรานั่งมาลงที่ 'MRT สถานีเตาปูน' ก็สามารถเปลี่ยนไปใช้รถไฟใต้ดินสายสีม่วงได้ เป็นสถานีต้นทางที่มีเส้นทางไปสิ้นสุดลงที่สถานีคลองบางไผ่
และอีกหนึ่งตัวเลือกการเดินทางยอดฮิตของคนเมืองนั่นก็คือ รถไฟฟ้า BTS ซึ่งเราสามารถเดินทางเชื่อมต่อไปใช้บริการ 'BTS สายสุขุมวิท' ได้ถึง 2 สถานี ได้แก่
- MRT สถานีสวนจตุจักรเชื่อมต่อกับ BTS สถานีหมอชิต
- MRT สถานีสุขุมวิทเชื่อมต่อกับ BTS สถานีอโศก
สายหนึ่งที่ได้รับความนิยมไม่แพ้กันก็คือ 'BTS สายสีลม' ซึ่งเราก็สามารถเดินทางไปลงที่ MRT 'สถานีสีลม' แล้วเปลี่ยนขึ้นไปใช้รถไฟฟ้า BTS 'สถานีศาลาแดง' แทนได้
ส่วนใครที่ต้องเดินทางไปต่างประเทศบ่อยๆ ก็สามารถนั่ง MRT มาลงที่ 'สถานีเพชรบุรี' แล้วเปลี่ยนรูปแบบการเดินทางมาเป็น Airport Link ที่ 'สถานีมักกะสัน' เพื่อเชื่อมต่อไปยังท่าอากาศยานสุวรรณภูมิได้ในเวลาอันรวดเร็ว
การเดินทางด้วยรถยนต์ส่วนตัว

หลังจากพูดถึงการเดินทางด้วยระบบขนส่งสาธารณะกันไปเรียบร้อยแล้ว ก็ถึงเรื่องการเดินทางด้วยรถยนต์ส่วนตัวที่ตลอดความยาวกว่า 4.5 กิโลเมตรของ 'ถนนสุทธิสารวินิจฉัย' นี้ได้เชื่อมต่อกับถนนสายสำคัญอีกหลากหลายสายเลยทีเดียว
เริ่มที่บริเวณแยกรัชดา-สุทธิสารที่ใกล้กับโครงการ IDEO Ratchada - Sutthisan (ไอดีโอ รัชดา - สุทธิสาร) มากที่สุด ซึ่งจะเป็นสี่แยกที่ตัดกันระหว่างถนนสุทธิสารวินิจฉัยกับถนนรัชดาภิเษก ถนนเส้นหลักอีกเส้นที่นิยมใช้ในการเข้า-ออกเมือง
โดยส่วนใหญ่แล้ว...เรามักจะเห็นภาพของอาคารสำนักงานขนาดใหญ่กระจายตัวอยู่ตลอดความยาวถนน จนกลายเป็นภาพที่ชินตา เต็มไปด้วยความคึกคักและการเคลื่อนไหวของการใช้ชีวิต
นอกจากนี้ 'รัชดาภิเษก' ยังเป็นถนนที่พาเรามุ่งหน้าเข้าสู่ 'ถนนพระราม 9' ย่าน New CBD ที่กำลังถูกจับตามองอยู่ในขณะนี้ ทำให้การอยู่อาศัยที่ IDEO Ratchada - Sutthisan (ไอดีโอ รัชดา - สุทธิสาร) ดูจะตอบโจทย์คนทำงานรุ่นใหม่ได้ดีทีเดียว เพราะใกล้ทั้งการเดินทางที่สะดวกสบายและสีสันของเมืองใหญ่อีกด้วย
กลับมาที่หน้าโครงการกันอีกครั้ง…หากเรามุ่งหน้าจากโครงการ IDEO Ratchada - Sutthisan (ไอดีโอ รัชดา - สุทธิสาร) ไปทาง 'แยกสุทธิสาร' ซึ่งจะตัดกับถนนวิภาวดีรังสิต ช่วยให้เรามุ่งหน้าไปยังดอนเมืองและจังหวัดข้างเคียงได้อย่างสะดวกสบาย
หรือถ้ามุ่งหน้าตรงไปอีกเล็กน้อยก็จะเจอกับ 'แยกสะพานควาย' ซึ่งเป็นจุดเริ่มต้นของถนนสุทธิสารวินิจฉัยกับ 'ถนนประดิพัทธ์' หากใครจะเปลี่ยนไปใช้เส้นประดิพัทธ์ก็สามารถมุ่งหน้าตรงไปโซนสามเสนได้ หรือถ้าต้องการใช้ 'ถนนพหลโยธิน' ก็สามารถเลี้ยวเพื่อตัดเข้าสู่ถนนหลักเส้นนี้ได้ทันทีเช่นกัน
ขณะเดียวกันถ้าเรามุ่งหน้าจากโครงการ IDEO Ratchada - Sutthisan (ไอดีโอ รัชดา - สุทธิสาร) มาทาง 'แยกรัชดา - สุทธิสาร' แล้วขับรถข้ามแยกไปสักระยะหนึ่งก็จะพบกับ 'ซอยลาดพร้าว 64' ซึ่งเราสามารถใช้เส้นทางนี้ต่อไปยังห้วยขวาง, เหม่งจ๋ายและทาวน์อินทาวน์ได้
Lifestyle
เมื่อการเดินทางที่สะดวกนี้ช่วยลดระยะเวลาบนท้องถนนลงได้ เราก็จะมีเวลามาเติมเต็มไลฟ์สไตล์ให้ชีวิตบาลานซ์ได้มากขึ้น
ขอเริ่มต้นวันใหม่ด้วยคำกล่าวที่ว่า 'กองทัพต้องเดินด้วยท้อง' กันที่ 'ตลาดเมืองไทยภัทร' ตลาดสดขนาดใหญ่ใกล้กับ MRT สุทธิสาร ที่ทุกๆ เช้าจะมีความคึกคักเป็นพิเศษทั้งจากพ่อค้าแม่ค้าที่นำของสด และของสำเร็จรูปมาวางขายกันครึกครื้น รวมไปถึงเหล่าคนทำงานที่มักมาฝากท้องยามเช้ากันที่ตลาดแห่งนี้
ด้านในตลาดมีทั้งอาหารคาวหวานให้เลือกทานหลากหลาย เรียกได้ว่ามาทานทุกวันก็ยังไม่เบื่อ ยิ่งถ้าใครมาซื้อของในตอนเที่ยงก็จะยิ่งคึกคักเพราะมีกลุ่มพนักงานออฟฟิศแวะเวียนเข้ามาไม่ขาดสาย
ปกติแล้วตลาดจะเริ่มวายในช่วงเวลาเย็นๆ สำหรับใครที่ยังอยากหาซื้อของสดไว้ทำอาหารก็สามารถมาเดินซื้อของกันต่อได้ที่ 'Max Value' ตั้งอยู่บริเวณประตูทางออกที่ 4 ของ MRT สุทธิสาร และที่สำคัญซูเปอร์มาเก็ตแห่งนี้ยังเปิดตลอด 24 ชั่วโมงให้เราได้ใช้บริการได้สะดวกอีกด้วย
เอาใจคนรักของกินกันไปแล้วก็ถึงเวลาเข้าสู่โหมด 'ช็อป ชิม ชิลล์' กันที่สตรีทมอลล์สุดชิคอย่าง 'The Street รัชดา' กันที่แรกได้เลย
จุดเช็คอินที่เราจะพาไปเช็คอินกันจะเป็นพื้นที่ Multi space บริเวณชั้นใต้ดิน ที่เป็นโซนอเนกประสงค์เปิดให้บริการตลอด 24 ชั่วโมง โดยจะรวมร้านอาหาร, คาเฟ่ชิคๆ , ลานเบียร์และ Co-working Space มาไว้รวมกัน เป็นที่น่าถูกใจของคนชอบนอนดึกและชาว Night Life ไม่น้อย
เมื่อขยับขึ้นมาที่ชั้นบนก็เป็นพื้นที่แห่งความสนุกหลังเลิกงาน เพราะนอกจากจะมีร้านค้า ร้านอาหารชื่อดังไว้คอยบริการแล้ว ที่นี่ยังมีโซนสันทนาการให้เราได้เรียกเหงื่อกันอย่าง Bounce Thailand
ใกล้ๆ กันเป็น 'Esplanade รัชดา' แหล่งไลฟ์สไตล์ที่ตอบโจทย์คนเมืองรุ่นใหม่ได้ทุกความต้องการทั้งช็อป ชิม ชิลล์ หรือจะขึ้นไปดูหนังก็มีโรงหนังไว้คอยบริการ
บริเวณด้านหลัง Esplanade จะเชื่อมต่อไปยัง 'ตลาดนัดรถไฟ รัชดาฯ' ให้เราเปลี่ยนบรรยากาศจากช็อปปิ้งในห้างติดแอร์มาเป็นเดินช็อปปิ้งแบบ Street Market โดยตลาดแห่งนี้ก็ถือเป็นจุดเช็คอินสุดฮิตของทั้งชาวไทยและชาวต่างชาติที่ไม่อยากให้พลาดกัน
ด้านในตลาดนัดรถไฟ รัชดาจะแบ่งเป็น 2 โซนหลักๆ ได้แก่ โซนของกินและโซนแฟชั่น นอกจากนี้ยังมีสินค้าของสะสมแปลกตาให้เราเลือกซื้อได้ในราคาย่อมเยา
แต่ถ้ายังไม่จุใจ แนะนำให้นั่งรถไฟใต้ดินมาลงที่ 'MRT พระราม 9' แล้วก้าวเข้าสู่ 'Central Grand พระราม 9' ห้างสรรพสินค้าแบบครบวงจร ที่มีทั้งสินค้าด้านแฟชั่น, ร้านอาหารชั้นนำทั้งไทยและเทศ ตลอดจนแหล่งรวมความบันเทิงเพื่อให้เราได้ทำกิจกรรมที่สนใจ ไม่ว่าจะเป็น โรงภาพยนตร์, ห้องคาราโอเกะ หรือฟิตเนส เป็นต้น
Analysis
จุดเด่นของโครงการ IDEO Ratchada - Sutthisan IDEO
- Ratchada - Sutthisan (ไอดีโอ รัชดา - สุทธิสาร) เป็นคอนโด High Rise สูง 24 ชั้น ตั้งอยู่บน 'ถนนสุทธิสารวินิจฉัย' ค่อนไปทาง 'แยกรัชดา - สุทธิสาร' ซึ่งเป็นทำเลที่เต็มไปด้วยอาคารสำนักงานซึ่งเอื้อต่อการใช้ชีวิตของคนทำงานรุ่นใหม่ นอกจากนี้ยังเป็นจุดเชื่อมต่อการเดินทางแบบต่างๆ สามารถเดินทางได้สะดวกทั้งจากระบบขนส่งสาธารณะ และรถยนต์ส่วนตัว
- พื้นที่ส่วนกลางของ IDEO Ratchada - Sutthisan (ไอดีโอ รัชดา - สุทธิสาร) ประกอบไปด้วยสิ่งอำนวยความสะดวกที่ตอบโจทย์การใช้ชีวิตตลอด 24 ชั่วโมง ได้แก่
- Lobby
- พื้นที่ใช้งานอเนกประสงค์
- ห้องประชุม
- ฟิตเนสเปิดให้บริการตลอด 24 ชั่วโมง
- สระว่ายน้ำ
- สวนส่วนกลางบริเวณชั้น 1, ชั้น 20 และชั้นดาดฟ้า
- Outdoor Gym
- ห้องพักอาศัยทุกยูนิตจะตกแต่งแบบ Fully Fitted ภายในมาพร้อมกับชุดครัว, สุขภัณฑ์ห้องน้ำ, ตู้เสื้อผ้าและตู้ใส่ของบิลท์อิน (ฺBuilt in) ที่ออกแบบฟังก์ชันการใช้งานมาเป็นอย่างดี พร้อมติดตั้งเครื่องปรับอากาศให้เรียบร้อยทุกยูนิต
ทำเลของโครงการ IDEO Ratchada - Sutthisan
- โครงการ IDEO Ratchada - Sutthisan (ไอดีโอ รัชดา - สุทธิสาร) ตั้งอยู่ติดกับ 'ถนนสุทธิสารวินิจฉัย' ซึ่งเป็นถนนเส้นรองที่สามารถเชื่อมต่อไปยังถนนหลักได้อีกหลากหลายสาย ไม่ว่าจะเป็นถนนรัชดาภิเษก, ถนนวิภาวดีรังสิต, ถนนพหลโยธิน, ถนนประดิพัทธ์ และซอยลาดพร้าว 64
- นอกจากนี้ตัวโครงการยังอยู่ใกล้สถานีรถไฟฟ้าใต้ดิน 'MRT สุทธิสาร' ทำให้การเดินทางไปยังจุดหมายต่างๆ นั้นง่ายดายมากขึ้น และยังสามารถเปลี่ยนรูปแบบการเดินทางไปใช้ระบบขนส่งสาธารณะอื่นๆ ได้สะดวกเช่นกัน
- ทำเลตั้งอยู่ใกล้กับแหล่งไลฟ์สไตล์มากมายที่จะช่วยชาร์จพลังให้เราได้ตลอดทั้งวัน
สำหรับผู้ที่สนใจโครงการ IDEO Ratchada - Sutthisan (ไอดีโอ รัชดา - สุทธิสาร) ทาง Ananda ก็ได้เปิดให้จองออนไลน์กันในวันที่ 25 กันยายน 2561 ลงทะเบียนได้ที่ https://goo.gl/nZBDND
ราคาจองเริ่มต้น 10,000 บาท
พิเศษ!! ส่วนลดสูงสุดถึง 200,000 บาท
ส่วนใครที่อยากเข้าไปชมห้องตัวอย่างโครงการ IDEO Ratchada - Sutthisan (ไอดีโอ รัชดา - สุทธิสาร) ด้วยตัวเองก็สามารถเข้าไปชมกันได้แล้วทุกวัน ที่ Sale Gallery ของโครงการ IDEO Rama 9 - Asoke ตั้งแต่ 10.00 - 18.00 น.
ไอดีโอ รัชดา - สุทธิสาร
5ba32221c8ef2288d77a7cd8
ideo-ratchada-sutthisan-ไอดีโอ-รัชดา-สุทธิสาร

















































































