[Review] รีวิว The Tree @Onnut Station (เดอะ ทรี อ่อนนุช สเตชั่น) ใกล้รถไฟฟ้า BTS อ่อนนุช คอนโด Low Rise เดินทางสะดวก ติด Community MAll จาก พฤกษา
ซอยสุขุมวิท 54 แขวงบางจาก เขตพระโขนง กรุงเทพมหานคร

Review info
The Tree Onnut Station (เดอะ ทรี อ่อนนุช สเตชั่น) คอนโด Low Rise ใกล้รถไฟฟ้า BTS อ่อนนุช ด้วย Concept Live in The City จาก พฤกษา
สวัสดีค่ะ มาพบกันอีกแล้วสำหรับรีวิวโครงการคอนโดมิเนียมคุณภาพ ทั่วกรุงเทพมหานคร โดยโครงการที่เราจะไปรีวิวกันในฉบับนี้ก็คือ โครงการ _The Tree Onnut Station (เดอะ ทรี อ่อนนุช สเตชั่น) _จาก พฤกษา คอนโด Low Rise สูง 8 ชั้น ในซอยสุขุมวิท 54 หรือที่รู้จักกันในชื่อของย่านอ่อนนุช ห่างจากสถานีรถไฟฟ้า BTS ไม่ถึง 500 เมตร ใกล้สำนักงานเขตพระโขนง และ Community Mall ที่ชื่อว่า The Phyll ซึ่งเป็นที่ตั้งของสำนักงานขายโครงการด้วย ตอนนี้โครงการอยู่ระหว่างเปิดขายแบบ Pre-Sales ยังไม่เริ่มก่อสร้าง เราจะไปชมห้องตัวอย่างของโครงการกันค่ะ
Location
ที่ตั้งโครงการ
The Tree Onnut Station (เดอะ ทรี อ่อนนุช สเตชั่น)
แผนที่โครงการ
The Tree Onnut Station (เดอะ ทรี อ่อนนุช สเตชั่น) ซึ่งตั้งอยู่ในซอยสุขุมวิท 54 ซอยเดียวกับสำนักงานเขตพระโขนง และ The Phyll ใกล้กัลสถานีรถไฟฟ้า BTS อ่อนนุชเพียง 350 เมตร ซึ่งถือว่าเป็นระยะเดินที่ไม่ไกลเลย แถมในย่านนี้ยังอุดมสมบูรณ์ไปด้วยสิ่งอำนวยความสะดวกและอาหารการกิน
การเดินทางมายังโครงการสามารถมาได้หลายเส้นทาง ทั้งโดยรถไฟฟ้าลงสถานีอ่อนนุช แล้วเดินมาทางบางจาก ทางเส้นสุขุมวิทมุ่งหน้าบางนา หรือถ้ามาไกลๆก็สามารถมาลงทางด่วนสุขุมวิท 62 แล้วขับย้อนขึ้นมาทางอ่อนนุชได้ ถึงโครงการเลยไม่ต้องกลับรถ
การเดินทาง
ด้านการเดินทางมายัง The Tree Onnut Station (เดอะ ทรี อ่อนนุช สเตชั่น)
ในวันนี้เราจะขึ้นทางด่วนมาจากด่านดินแดงค่ะ หลังจากขึ้นทางด่วนมาแล้วก็มุ่งหน้าตามป้ายท่าเรือ-บางนา-ดาวคะนอง
ขับมาเรื่อยๆจนผ่านทางลงเพลินจิต ก็ให้ตรงตามป้ายท่าเรือ-บางนา-ดาวคะนอง มาอีกค่ะ
พอเลยทางโค้งจากเพลินจิตมา จะมีป้ายทางแยกไปดาวคะนองตามภาพ ให้ชิดซ้ายมาทาง ท่าเรือ-บางนา
เลยมาอีกจะมีป้ายแยกลงท่าเรือ ให้ตรงเลยมาเลยค่ะ เราจะไปทางบางนากัน
เห็นป้ายถนนอาจณรงค์ รามอินทรา บางนา ให้อยู่เลนกลางหรือขวาก็ได้ค่ะ ตรงมาเรื่อยๆ
จากนั้นจะมีป้ายแยกซ้ายไปรามอินทรา บางพลี ให้ออกขวาตามป้ายสุขุมวิท 50 - บางนานะคะ
ลงจากทางยกระดับมาจะมีป้ายทางออกที่ 15 สุขุมวิท 62 ให้เตรียมตัวออกซ้ายค่ะ
ออกตามทางโค้งมาเรื่อยๆจะมาออกซอยสุขุมวิท 62 มีแยกเชื่อมกับถนนสุขุมวิท
เราจะเลี้ยวซ้ายจากแยกนี้นะคะ เข้าสู่ถนนสุขุมวิทขาเข้า ผ่านบางจากไปทางอ่อนนุช เลี้ยวมาจะเจอกับสถานีรถไฟฟ้า BTS บางจากเลยค่ะ ให้ขับตรงไปเรื่อยๆ
ขับตรงมาอีกไม่ไกล ประมาณ 500 เมตร จะเห็นสะพานลอยมีป้ายสำนักงานเขตพระโขนงติดอยู่ ให้เตรียมเลี้ยวซ้ายเข้าซอยสุขุมวิท 54 หลังสะพานลอยได้เลยค่ะได้เลยค่ะ
เลี้ยวเข้ามาปากซอยจะเจอกับ The Phyll ซึ่งเป็นที่ตั้งของสำนักงานขายโครงการ เลยเดอะ ฟิลล์ เข้ามาประมาณ 200 เมตร จะเจอกับรั้วเขตก่อสร้างโครงการทางขวามือ ซึ่งคือตำแหน่งที่ตั้งโครงการ
The Tree Onnut Station (เดอะ ทรี อ่อนนุช สเตชั่น)นั่นเองค่ะ
Project Insight
เจาะลึกภาพรวมโครงการ The Tree Onnut Station (เดอะ ทรี อ่อนนุช สเตชั่น)
The Tree Onnut Station (เดอะ ทรี อ่อนนุช สเตชั่น)
คอนโดมิเนียมประเภท Low Rise สูง 8 ชั้น จาก พฤกษา อยู่ในย่านที่ถือว่าอุดมสมบุรณ์ ทั้งด้านการเดินทาง และสภาพแวดล้อมรายรอบโครงการ ใกล้สถานที่ราชการสำคัญ และCommunity Mall รวมถึงรถไฟฟ้า BTS ด้วย เราจะไปดูรายละเอียดของโครงการนี้กันค่ะ
จากโมเดลของโครงการ ด้านหน้าอาคารฝั่งตรงข้ามจะเป็นอาคารพาณิชย์ อาคารสำนักงาน และอาคารพักอาศัย อพาร์ทเมนท์สูง 6 ชั้นที่มีอยู่เดิมแล้ว ถนนด้านหน้าโครงการเป็นถนนสวนกันได้ 2 เลน ด้านขวาของโครงการ เป็นอาคารจอดรถ 8 ชั้น ของ The Phyll ส่วนด้านซ้ายเป็นร้านค้า บ้านเรือน และอาคารสำนักงานค่ะ
มาดูด้านหน้าโครงการกันบ้าง ขากหน้าถนนซอยสุขุมวิท 54 จะเป็นทางเข้าโครงการ มีจุดdrop off และทางเข้าภายในอาคาร ด้านบนชั้น 2 ของอาคารเป็นส่วนของ facility จะเห็นสระว่ายน้ำ ห้องออกกำลังกาย และ Living Lounge รอบอาคารก็เป็นสวนหย่อมค่ะ ไม่มีทางให้รถวิ่งวนรอบอาคาร
จากมุมนี้ จริงๆจะเป็นอาคารจอดรถของ The Phyll ส่วนด้านหน้าโครงกรจะเป็นโกดังของบริษัท CATERPILLAR
ภาพตัวอย่างบรรยากาศภายใน Lobby ของโครงการ ออกแบบมาดูดีในระดับหนึ่งเลยทีเดียว ต้องรอชมตอนสร้างเสร็จกันอีกทีนะคะ
ภาพจำลองบรรยากาศด้านหน้าของโครงการ บริเวณสระว่ายน้ำ เห็นวิวรถไฟฟ้าไกลๆ
จากบริเวณด้านหน้าของโครงการ ส่วนกลางจะอยู่บนชั้น 2 ทำให้ขาดความเป็นส่วนตัวไปสักหน่อยจากสายตาภายนอก โดยเฉพาะตึกแถวฝั่งตรงข้าม แต่ถ้าคนที่สัญจรผ่านไปมาที่ถนนก็มองไม่เห็นนะ รอบๆสระว่ายน้ำจะเป็นสวนนั่งพักผ่อนค่ะ
ภาพจำลองห้อง Gym ออกกำลังกายค่ะ จะได้วิวสระว่ายน้ำ
ภาพจำลอง Living Lounge ของโครงการ ซึ่งอยู่ติดกับสระว่ายน้ำเช่นกัน แต่จะไม่ได้วิวสระว่ายน้ำแบบเต็มๆ เพราะมีการยกขอบสระขึ้นจากระดับสายตาค่ะ
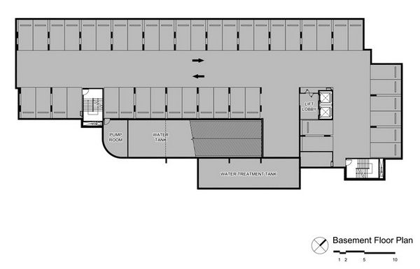
ต่อไปเราจะมาดู Plan ของโครงการกันบ้างค่ะ เริ่มจากชั้นแรก ซึ่งจะเห็นว่ามีทางลาดสำหรับลงไปชั้นใต้ดินค่ะ เพราะโครงการมีพื้นที่จิดรถให้บริเวณชั้น1 และชั้นใต้ดิน จอดแบบซ้อนคันรวมกันได้ 52% ถือว่าไม่มากไม่น้อยเกินไปสำหรับคอนโดมิเนียมระดับนี้ ที่ชั้นนี้มีส่วนกลางคือ Lobby และลิฟต์ 2 ตัว
ผังอาคารชั้นใต้ดิน เป็นพื้นที่จอดรถล้วนๆค่ะ
ผังอาคารชั้น 2 เป็นพื้นที่ส่วนกลาง สระว่ายน้ำ ขนาด 5 x 15 ม. Gym และ Living Lounge และห้องพัก 20 ห้อง
Plan อาคารชั้น 3 เป็นห้องพักอาศัยทั้งหมดค่ะ
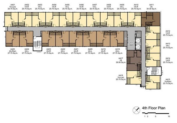
Plan อาคารชั้น 4
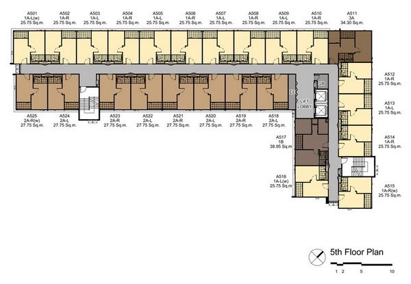
Plan อาคารชั้น 5
Plan อาคารชั้น 6
Plan อาคารชั้น 7 ตรงนี้จะมี Roof Garden อยู่ตรงปลายอาคารฝั่งทิศตะวันออกเฉียงเหนือค่ะ
Plan อาคารชั้น 8 สำหรับแบบห้องของโครงการมีทั้งหมด 4 แบบ ดังนี้ค่ะ
1 ห้องนอน พื้นที่ใช้สอย 25.75 ตร.ม.
1 ห้องนอน พื้นที่ใช้สอย 27.75 ตร.ม.
1 ห้องนอน พื้นที่ใช้สอย 34.30 ตร.ม.
และแบบใหญ่ที่สุดของโครงการ คือ 1 ห้องนอน Plus พื้นที่ใช้สอยประมาณ 38.95 ตร.ม.
Sale Gallery & Showroom 1 Bedroom 25.75 Sq.M.
ห้องตัวอย่าง 1 ห้องนอน ขนาด 25.75 ตร.ม. ของโครงการ The Tree Onnut Station (เดอะ ทรี อ่อนนุช สเตชั่น)
สำนักงานขายของโครงการ The Tree Onnut Station (เดอะ ทรี อ่อนนุช สเตชั่น) ตั้งอยู่ใน Community MAll The Phyll นะคะ บริเวณชั้นหนึ่ง หันหน้าเข้าหาสำนักงานเขตพระโขนงค่ะ
เข้ามาด้านในจะมีโมเดลจำลองของโครงการตั้งไว้ตรงประตูทางเข้า ด้านในมีเคาท์เตอร์เจ้าหน้าที่ฝ่ายขาย และที่นั่งรับรองลูกค้าค่ะ ส่วนห้องตัวอย่างอยู่อีกฝั่งของสำนักงานขาย
สำหรับห้องของโครงการนี้จะได้ประตูบานไม้ ทางโครงการไม่ได้ทำตัวอย่างไว้ให้ แต่มีตัวอย่าง Digital Door Lock ของSamaung ตั้งไว้ให้ชมเป็นตัวอย่างค่ะ
สำหรับห้องตัวอย่างที่ทางโครงการจัดไว้ให้ชมเป็นห้องแบบ 1 ห้องนอน ขนาดพื้นที่ใช้สอย 25.75 ตารางเมตร เราจะเข้าไปดูด้านในห้องตัวอย่างกันค่ะ
เปิดประตูห้องเข้ามาเป็นพื้นที่ Living Area ทะลุเชื่อมกันกับส่วนครัวและระเบียงค่ะ ระยะความสูงพื้นถึงเพดาน 2.5 เมตร พื้นห้องได้เป็นลามิเนต
ไฟในห้องให้มาเป็นดาวน์ไลท์ค่ะ แบบกลมแลแบบเหลี่ยม ทุกจุดของห้อง พร้อมที่ดักจับควัน
โซฟาที่ทางโครงการตั้งมาให้ดูเป็นแบบ 2 ที่นั่ง แล้ววางโต๊ะโคมไฟไว้ข้างๆ แต่ถ้าใครไม่ได้ใช้โคมไฟ หรือไม่ได้วางอะไรตกแต่งห้องมากมายสามารถเลือกเป็นโซฟาแบบ 3 ที่นั่งมาวางแทนได้นะคะ จะได้ใช้งานได้เต็มพื้นที่
อีกฝั่ง ตรงข้ามกับโซฟาเป็นทีวีค่ะ ระยะห่างของช่วงนี้อยู่ที่ประมาณ 2.4 เมตร ซึ่งสามารถวางหรือติดทีวีแบบแขวนผนังได้ถึง 45 - 50 นิ้ว ส่วนไซด์บอร์ดที่เลือกใช้ต้องกะระยะความกว้างของตู้ไม่ให้เลยผนังทางฝั่งขวาด้วยนะคะ เพราะเวลาเปิดประตูมาจะชน
ผนังใต้ทีวีมีช่องสายเคเบิล และปลั๊กไไฟติดมาให้หลายช่องเลยค่ะ น่าจะเพียงพอกับการใช้งานแล้ว แต่ถ้าใครชอบต่อเครื่องเล่นหรือ Home Theatre ก็อาจจะต้องมีปลั๊กมาพ่วงเพิ่มอีกนะ
อย่างที่บอกว่าพื้นที่ Living กับส่วนครัวเชื่อมต่อกัน ถัดมาจากโซฟาจะเป็นตู้เย็นค่ะ ตรงนี้ถ้าใครต้องการกั้นพื้นที่ให้เป็นสัดส่วนสามารถกั้นประตูบานเลื่อนตรงด้านข้างตู้เย็นได้นะคะ เพื่อป้องกันกลิ่นเวลาทำอาหาร แนะนำให้กั้นเป็นบานกระจกจะทำให้ห้องยังดูโปร่งค่ะ
พื้นที่ส่วนครัวจัดมาให้ดูเป็นส่วนของ Pantry และมีโต๊ะทานข้าววางมาให้สำหรับ 2 ที่นั่ง ซึ่งก็คงเป็นขนาดปกติที่จะตั้งได้สำหรับห้องไซส์นี้ค่ะ เวลาซื้อมาตั้งเองต้องวักระยะความกว้างของโต๊ะกันด้วยนะคะ ระยะห่างระหว่างโต๊ะกับเคาท์เตอร์เกือบ 1 เมตร สามารถเดินหรือยืนใช้งานในครัวได้สบาย ในสุดเป็นประตูบานเลื่อนออกไประเบียง ติดแอร์ไว้ให้เหนือประตู 1 ตัว
พื้นที่วางโต๊ะทานข้าวค่ะ ทานได้แค่ 2 คน ถ้าเป็นอาหารจานเดียวจะโอเคค่ะ ถ้ามีกับข้าวก็อาจจะต้องวางเบียดกันนิดนึง ที่นั่งฝั่งที่ติดกับประตูระเบียงจะมีระยะเลื่อนเก้าอี้ได้จำกัด ถ้าใช้งานกันเองอาจจะย้ายมาตั้งฝั่งทางเดินก็ได้ค่ะ จะได้นั่งทานสบายๆ
เคาท์เตอร์ Pantry ที่ให้มาเป็นแบบมาตรฐานโครงการ มีที่ล้างจาน เตาไฟฟ้าและที่ดูดควัน พร้อมช่องวางไมโครเวฟด้านล่าง
สำหรับเฟอร์นิเจอร์ในห้องที่จะได้จะมีสติกเกอร์ของโครงการติดไว้แบบนี้
พื้นที่ตรงที่วางตู้เย็นเป็นที่วางด้านข้างเคาท์เตอร์ครัวที่ทางโครงการให้มา สามารถวางตู้เย็นแบบ 2 ประตูได้ค่ะ วางตู้เย็นถึง 9 คิวก็ยังได้
หน้าตาเคาท์เตอร์แบบเต็มๆค่ะ มีพื้นที่เก็บของมาให้พอสมควร หรือใครมีของเยอะสามารถบิ้วท์ชั้นเก็บของด้านบนเพิ่มได้ แต่ต้องวัดขนาดด้วยนะคะ
ชั้นด้านบนของที่ดูดควันเป็นตู้แบบบานเปิด สามารถเก็บของได้ แต่ไม่เยอะเท่าไหร่
ด้านข้างที่ดูดควันเป็นชั้นลอยแบบวางโล่งๆค่ะ มีที่แขวนผ้าหรืออุปกรณ์ครัวติดมาให้ด้วย
อ่างล้างจานเป็นของ MEX ค่ะ ก๊อกน้ำแบบก้านโยก หลุมของอ่างค่อนข้างลึกพอสมควร ใช้งานได้เยอะค่ะ ด้านข้างรอบๆมีพื้นที่ให้วางของได้นิดหน่อย
เตาไฟฟ้าและที่ดูดควันที่ให้มาก็เป็นของ MEX เช่นกัน เตาเป็นแบบ 2 หัว ด้านข้างมีพื้นที่วาง หรือเตรียมอาหารได้นิดหน่อยค่ะ ด้านข้างของเคาท์เตอร์มีปลั๊กไฟติดมาไว้ให้ แต่ต้องแบ่งกันกับตู้เย็นนะ
เคาท์เตอร์ด้านล่างเป็นลิ้นชักวางอุปกรณ์ครัว และช้อนส้อมค่ะ ใต้ลิ้นชัก ช่องใต้อ่างล้างจานก็เป็นตู้บานเปิด สามารถเก็บของได้อีกแยอะเลยค่ะ ต่อไปเราออกไปที่ระเบียงกันค่ะ
ก่อนจะออกไปที่ระเบียง ด้านบนเป็นที่ติดแอร์ของห้องค่ะ ซึ่งเชื่อมกับห้องนั่งเล่นด้วย ถ้าใครจะกั้นประตูครัว ก็อาจจะย้ายแอร์จากตรงนี้ไม่ติดจุดอื่นได้นะคะ แต่อาจจะต้องดูจุดที่จะติดตั้งได้ด้วย
ประตูระเบียงเป็นบานเลื่อน 2ตอน กรอบPowder Coat สีดำ ที่เปิดแบบแบบล็อคมือปกติค่ะ
ขอบประตูกั้นขึ้นมาจากพื้นประมาณ 5 เซนติเมตรค่ะ กันน้ำกระเด็นได้ เวลาเดินต้องก้าวนิดนึง
ด้านนอกระเบียงขนาดประมาณ 1 x 2 เมตร เป็นพื้นกระเบื้อง มีที่สำหรับตั้งเครื่องซักผ้าได้ มีก๊อกน้ำ และปลั๊กไฟพร้อมกล่องครอบกระน้ำ ด้านบนติด CDU แอร์ได้ค่ะ ทางโครงการทำระแนงเหล็กบางสายตาจากด้านนอกมาให้
ราวระเบียงเป็นเหล็กสีดำ พื้นที่ระเบียงกว้างพอตั้งราวตากผ้าได้ค่ะ แต่อาจจะขวางประตูเล็กน้อย หรือใครจะทำสวนต้นไม้เล็กๆ แบบที่ทางโครงการวางไว้เป็นตัวอย่างก็ได้ค่ะ ช่วยบังสายตาได้ด้วย
ต่อไปเรามาดูภายในห้องนอนกันบ้างค่ะ ห้องนอนจริงจะมีประตูกั้นจากส่วนห้องนั่งเล่นมาให้ ระยะความสูงของห้องนอนเท่ากับด้านนอก พื้นลามิเนตเหมือนเดิม พื้นที่ในห้องนอนสามารถวางเตียงได้ขนาด 5 ฟุตค่ะ
เข้ามาในห้องนอนซ้ายมือเลยจะเป็นสวิตซ์ไฟค่ะ
ด้านปลายเตียงเหลือพื้นที่ให้เดินประมาณ 50 cm. แนะนำให้ติดทีวีแบบแขวนผนังนะคะ จะได้เหลือพื้นที่ไว้ให้เดินไปเปิด-ปิดหน้าต่างได้นิดหน่อย
เตียง 5 ฟุต ต้องวางแบบติดกระจกและผนัง เพื่อให้เหลือพื้นที่ด้านอื่นไว้ค่ะ หรือจริงถ้าไม่ได้วางโต๊ะโคมไฟข้างๆอาจจะหาเตียง 6 ฟุต มาวางได้นะคะ
หน้าต่างห้องนอนอยู่ด้านในสุดของผนัง เป็นหน้าต่างบานสไลด์ 2 ข้าง และมีบาน Fix ข้างล่างมาให้ค่ะ จริงๆถ้าได้บานกระจกใหญ่กว่านี้ หรือได้บานหน้าต่างแบบเต็มผนัง จะทำให้ห้องดูโล่งขึ้นอีกเยอะเลย
ตำแหน่งแอร์ในห้องนอนติดไว้เหนือทีวีค่ะ แอร์จะลงที่เตียงเต็มๆ คนขี้หนาวก็อาจจะต้องปรับอุณหภูมิกันหน่อย
มุมมองจากปลายเตียงออกมา จะเห็นส่วนของโต๊ะแต่งตัว ตู้เสื้อผ้า และห้องน้ำค่ะ ซึ่งเป็นพื้นที่โล่งตรงหน้าประตูห้องนอนเปิดเข้ามา
พื้นที่ตรงนี้เหลือกว้างพอสมควร โครงการวางโต๊ะข้างเตียงมาให้ ยังเหลือพื้นที่ จะวางเป็นโต๊ะเครื่องแป้งหรือจะทำเป็นโต๊ะทำงานก็ได้นะคะ เลือกดูตามการใช้งาน
โครงการวางโต๊ะเครื่องแป้ง และติดกระจกแบบเต็มผนังมาให้ ทำให้ห้องดูกว้างขึ้นด้วยค่ะ ส่วนขนาดของโต๊ะ ต้องกะระยะความกว้างของโต๊ะ จะได้ไม่ไปชิดกับตู้เสื้อผ้าเกินไปค่ะ ทำให้เปิดใช้งานยาก
ตู้เสื้อผ้าที่โครงการจัดไว้เป็นแบบ Built-in ประตูตู้แบบบานเลื่อน 2 ฝั่งค่ะ สามารถเก็บเสื้อผ้าได้เยอะสำหรับ 1 คน แต่ถ้าอยู่กัน 2 คนอาจจะต้องหาพื้ที่เก็บเพิ่มนะ
ต่อไปเรามาดูห้องน้ำกันบ้างค่ะ ห้องน้ำจะอยู่ในห้องนอน ถ้าเป็นคนที่อยู่เอง ไม่ค่อยมีแขกมาเยี่ยมอาจจะไม่เป็นไร แต่ถ้าใครมีเพื่อนมาหาบ่อยๆ แต่ต้องการความเป็นส่วนตัวในห้องนอน ก็อาจจะหายไปนิดนึง
ห้องน้ำของที่นี่ตรงประตูยกพื้นขึ้นมาประมาณ 5 เซนติเมตรค่ะ พื้นห้องน้ำด้านในเป็นกระเบื้อง ตัวพื้นจะยกสูงจากพื้นด้านนอกห้องนอนนิดนึงนะคะ เนื่องจากห้องน้ำของ The Tree Onnut Station (เดอะ ทรี อ่อนนุช สเตชั่น) นี้เป็นห้องน้ำสำเร็จรูป จึงมีพื้นที่สำหรับงานระบบที่มาจากโรงงานอยู่แล้ว
เข้ามาในห้องน้ำจะเจออ่างล้างหน้าและสุขภัณฑ์ของ Cotto กระจกห้องน้ำติดมาแบบเต็มผนังเลย
อ่างล้างหน้าติดก๊อกมาแบบเฉียงด้านขวา ตัวก๊อกแบบก้านโยก ขอบผนังด้านหลังก่อออกมา เป็น Top หินสังเคราะห์ วางของได้อีกนิดหน่อยค่ะ
สุขภัณฑ์วางมาติดกับ Shower Box มีสายฉีดชำระ และที่ใส่กระดาษทิชชู่แบบก้านค่ะ แบบนี้เวลาจะเปลี่ยนม้วนกระดาษทำได้ง่ายดี แค่เอามาเสียบใส่ก้านมันเฉยๆ
Shower Box ขนาดประมาณ 1 x 1 เมตร กั้นด้วยบานกระจกแบบเปิดเข้าด้านใน ยืนอาบได้สบาย แต่ห้องจริงทางโครงการไม่ได้ติดกระจกมาให้นะคะ ห้องติดตั้งเอง
มือจับประตู Shower Box ใหญ่ดีค่ะ จับถนัดมือ จะใช้พาดผ้าเช็ดตัวผืนเล็กๆก็ได้ด้วย
กระเบื้องตรง Shower Box นี้จะปูเป็นลายโมเสก ส่วนฝักบัวอาบน้ำให้มาแบบ Hand Shower จับได้ถนัดมือ ก๊อกเป็นแบบโยกค่ะ
Environment
สภาพแวดล้อมรอบโครงการ The Tree Onnut Station (เดอะ ทรี อ่อนนุช สเตชั่น)
โครงการ The Tree Onnut Station (เดอะ ทรี อ่อนนุช สเตชั่น) ตั้งอยู่ในซอยสุขุมวิท 54 ตอนนี้โครงการจะล้อมด้วยรั้วเขตก่อสร้างอยู่ เราจะไปดูสภาพแวดล้อมรอบๆโครงการกันค่ะ
ตรงตัวโครงการ หันหน้าเข้าหาอาคารด้านซ้าย เป็นอาคารบ้านพักอาศัย ร้านซ่อมมอเตอร์ไซค์ และอาคารสำนักงาน ส่วนด้านขวาเป็นอาคารจอดรถสูง 8 ชั้น ของ The Phyll ค่ะ ตรงข้ามโครงการเป็นอาคารอพาร์ทเมนท์ อาคารพาณิชย์ และอาคารสำนักงาน ซอยด้านหลังนี้สามารถไปทะลุออกสุขุมวิท 50 ได้นะคะ
หน้าปากซอยสุขุมวิท 54 เป็น Community Mall ชื่อ The Phyll มีร้านค้า ร้านอาหาร ร้านกาแฟ ธนาคาร และบริการอื่นๆอีกเยอะเลยค่ะ มีร้าน Tom N Toms Coffee ที่เปิดให้บริการตลอด 24 ชั่วโมง ตอนดึกๆมีนักเรียน นักศึกษา และชาวต่างชาติมาใช้บริการเยอะอยู่ค่ะ
ตรงข้ามกับเดอะ ฟิลล์ ในซอยสุขุมวิท 54 เหมือนกัน เป็นที่ตั้งของสำนักงานเขตพระโขนงค่ะ สะดวกสบายมากเวลาติดต่อเอกสารราชการ
ออกมาด้านหน้าถนน ฝั่งตรงข้ามกับซอยสุขุมวิท 54 ถ้าข้ามสะพานลอยไปจะเจอกับ เป็น Market Plus Community Mall เล็กๆสมัยก่อน ปัจจุบันมีร้านอาหารและร้านค้านิดหน่อย และมีShopสินค้าของธุรกิจขายตรง Amway
เลยมาอีกนิดจะเป็นโรงเรียนนานาชาติ Wells International School อ่อนนุชค่ะ
เราเดินต่อมาทางอ่อนนุชค่ะ เป็นบ้านพักอาศัย เลยมาจะเจอบริษัท CATERPILLAR
ติดกันจะเป็นเต็นท์ร้านอาหารค่ะ เดินเลยมาอีกก็เจอซอยสุขุมวิท 52 ที่มีทางเข้าห้างเทสโก โลตัส อ่อนนุช
ฝั่งตรงข้ามเป็นโครงการ IDEO สองตึกอยู่ติดกัน มี Max Value เปิดให้บริการ 24 ชั่วโมง
และตรงโลตัสอ่อนนุชนี่ก็อยู่ติดกันกับสถานีรถไฟฟ้าอ่อนนุชค่ะ ตัวสถานีห่างจากโครงการไม่เกิน 500 เมตร สามารถเดินได้สบายค่ะ สะดวกมากสำหรับคนที่ชอบจับจ่ายซื้อใช้ในบ้านหรือจะทานอาหาร ที่โลตัสอ่อนนุชก็มีให้เลือกหลายร้านค่ะ
Analysis
วิเคราะห์โครงการ The Tree Onnut Station (เดอะ ทรี อ่อนนุช สเตชั่น)
ทำเล:
The Tree Onnut Station (เดอะ ทรี อ่อนนุช สเตชั่น) อยู่ในทำเลย่านอ่อนนุชซึ่งถือว่ามีความอุดมสมบูรณ์ เดินทางสะดวก ใกล้กับสถานีรถไฟฟ้า BTS เพียง 480 เมตร สามารถเดินไปได้ ใกล้กับจุดขึ้นลงทางด่วนซอยสุขุมวิท 50 หรือสุขุมวิท 62 อยู่ตรงต้นซอยใกล้ถนนใหญ่สุขุมวิท จะเดินทางเข้าเมืองก็เลี้ยวซ้ายออกจากซอยได้เลย หรือจะไปทางอุดมสุข บางนา ก็กลับรถตรงหน้าโลตัส อ่อนนุชได้ ถือว่าอยู่ในทำเลที่ดีเลยทีเดียว
การจราจรในละแวกนี้ก็ไม่ติดมาก อาจจะมีบ้างเล็กน้อยช่วงแยกอ่อนนุชในเวลาคับขัน แต่ก็มีซอยเล็กซอยน้อยลัดเลาะ หรือเป็นทางเชื่อมไปยังถนนต่างๆได้ หรือจะขึ้นทางด่วนแถวนี้ก็ทะลุหากันได้หมด เป็นทำเลทองของทั้งคนที่ใช่รถส่วนตัวและรถไฟฟ้าเลยทีเดียว แต่เวลาขึ้นรถไฟฟ้าช่วงเช้าอาจจะแน่นนิดนึงค่ะ
สภาพแวดล้อม:
บริบทรอบโครงการค่อนข้างสงบ อาจจะมีเสียงจากถนนใหญ่รบกวนบ้างนิดหน่อย แต่ในซอยสุขุมวิท 54 นี้เป็นซอยที่ไม่ได้มีคนใช้งานพลุกล่านมากนัก อาจจะมีรถเยอะหน่อยในวันทำการของสำนักงานเขต ในซอยก็เป็นที่พักอาศัย ไม่มีร้านอาหาร หรือสถานที่ส่งเสียงดังรบกวน ทีร้านค้า และของกินอยู่ใกล้ๆ ระยะทางจากถนนเข้าซอยมายังโครงการก็ไม่ไกล และมี The Phyll ทำให้ไม่เปลี่ยวอีกด้วย
- แบบห้อง
:แบบห้องของโครงการเป็นแบบมาตรฐานของทางพฤกษา พื้นที่ใช้สอยกับราคาก็ถือว่าไม่ถูก แต่ก็ไม่ได้น่าเกลียดสำหรับคอนโดทำเลในเมือง พื้นที่ใช้สอย 25 ตารางเมตรนี้ถ้าเป็นโครงการบางที่อาจจะไม่ได้กั้นห้องนอนแบบเป็นกิจลักษณะมาให้ และแบบห้องช่วงของLiving กับครัวที่ถึงแม้จะเชื่อมต่อกัน แต่ก็สามารถกั้นแบ่งห้องให้เป็นสัดส่วนได้ ไม่ได้จัด Layout มาแบบขาดๆเกินๆ มีที่เก็บของเยอะพอสมควร ขนาดของห้องเหมาะกับคนที่อยู่คนเดียว อาจจะมีเพื่อนมาเยี่ยมบ้างประปราย หรืออาจจะอยู่ 2 คนก็ได้ แต่ต้องจัดการพื้นที่เก็บของและเสื้อผ้ากันให้ดี โดยเฉพาะคุณผู้หญิงนะคะ
ครัวของโครงการให้เคาท์เตอร์มา พร้อมกับเตาไฟฟ้าและ Hood ตามประเพณีนิยมของโครงการคอนโดมิเนียมในปัจจุบัน แต่อาจจะไม่เหมาะกับคนที่ชอบทำอาหารหนักๆนะคะ เพราะพื้นที่ในการเตรียมอาหารจะน้อยไปนิดนึง แต่ถ้าใครใช้ชีวิตแบบคนเมือง ทานข้าวนอกบ้าน หรือซื้ออะไรเล็กๆน้อยมาทานที่ห้องก็สะดวกแน่นอน
ราคา:
เริ่มต้นอยู่ที่ 2.35 ล้านบาท หรือประมาณ 90,000 - 120,000 บาทต่อตารางเมตร โดยโครงการขายแบบ Fully fitted ในระยะที่ใกล้รถไฟฟ้าระดับนี้ถือว่าราคาปานกลางไปจนถึงสูงเมื่อเทียบกับโครงการใกล้รถไฟฟ้าในระแวกเดียวกัน แต่ต้องรอติดตามโปรโมชั่นของทางโครงการ เพราะเปิด Pre-Sale แล้วอาจจะมีเซอร์ไพรส์ให้ลูกค้าที่เข้าไปจองก็เป็นได้
สิ่งอำนวยความสะดวก:
ตัวอาคารและ Facility ต่างๆออกแบบมาได้สวยงามดีค่ะ ส่วนกลางที่เป็นหน้าตาของโครงการเช่น Lobby ก็ออกแบบมาแบบ Double Volume ทำให้ดูโปร่งและหรูหราไปอีกแบบ ส่วนอย่างอื่น ก็จัดไว้ที่ชั้น 2 ของอาคาร โดยไม่ต้องผ่านส่วนของห้องพักอาศัย มีห้องออกกำลังกาย และ Living Lounge ซึ่งก็เป็นส่วนกลางมาตรฐานของโครงการคอนโดมิเนียม ถ้าเทียบกับจำนวนห้องในโครงการถือว่าไม่หนาแน่นเกินไป ลิฟท์โดยสาร 2 ัวไม่มี Service Lift ได้อัตราส่วนประมาณ 82 : 1 ไม่มากไม่น้อย และโครงการทำชั้นใต้ดินไว้สำหรับเป็นพื้นที่จอดรถทำให้มีเปอร์เซ็นต์ที่จอดรถเพิ่มมากขึ้น
สรุป โครงการ The Tree Onnut Station (เดอะ ทรี อ่อนนุช สเตชั่น) เป็นโครงการที่เหมาะสำหรับคนที่ใช้ชีวิตในเมือง ชอบความสะดวกสบาย เดินทางสะดวกและไม่ไกลจากห้างสรรพสินค้า หรือแหล่งช้อปปิ้ง เพราะขนาดห้องเองก็เหมาะกับการอยู่คนหรือสองคนมากกว่า นอกจากเป็นห้อง 1 Bed Plus ก็อาจจะเป็นครอบครัวเล็กๆ มีเด็กน้อยคนสองคนอันนี้ก็พอได้ค่ะ คนที่มีรถส่วนตัวหรือใช้รถในการเดินทางบ่อยๆก็สะดวก เพราะใกล้จุดขึ้นลงทางด่วน หรือจะเป็นคนที่เดินทางด้วยรถไฟฟ้าก็ถือว่าใกล้มาก จะเดินทางไปทำงานหรือไปเที่ยวเสาร์อาทิตย์ก็สบาย
เดอะ ทรี อ่อนนุช สเตชั่น
586235581de72e0bd265f459
the-tree-onnuch-station-เดอะ-ทรี-อ่อนนุช-สเตชั่น
















































































