[Review] [Preview] มาเอสโตร 03 รัชดา-พระราม 9 (Maestro 03 RATCHADA-Rama 9) ที่สุดของความมีสไตล์ คอนโดใหม่ใกล้ MRT พระราม 9
ซอยรัชดา 3 แขวงดินแดง เขตดินแดง กรุงเทพมหานคร
Major Development (เมเจอร์ ดีเวลลอปเม้นท์)

มาเอสโตร 03 รัชดา-พระราม 9 (Maestro 03 RATCHADA-Rama 9) คอนโดใหม่ใกล้ MRT พระราม 9 :
มาเอสโตร 03 รัชดา-พระราม 9 (Maestro 03 Ratchada-Rama 9) คอนโดพระราม 9 ใกล้ MRT เพียง 600 ม. โครงการใหม่ของบริษัท เมเจอร์ ดีเวลลอปเม้นท์ เอสเตท จำกัด ที่ออกแบบด้วยการจัดวางตัวอาคารทั้ง 3 อย่างลงตัวให้โอบล้อมพื้นที่ส่วนกลาง เน้นสร้างบรรรยากาศด้วยพื้นที่เขียว เพื่อให้ผู้อาศัยรู้สึกเหมือนได้อยู่ใกล้ชิดธรรมชาติแม้อยู่ใจกลางเมือง
มาเอสโตร 03 คอนโดพระราม 9 ที่ออกแบบชีวิตสมัยใหม่และความคลาสสิกร่วมสมัยให้รวมกันได้อย่างลงตัว
รายละเอียดโครงการ มาเอสโตร 03 รัชดา-พระราม 9 (Maestro 03 Ratchada-Rama 9)
เจ้าของโครงการ : บริษัท เมเจอร์ ดีเวลลอปเม้นท์ เอสเตท จำกัด
ที่ตั้งโครงการ : ถนนรัชดาภิเษก ซอย 3 เขตดินแดง กรุงเทพฯ 10400
พื้นที่ : 3-0-18 ไร่
ลักษณะโครงการ : คอนโด Low rise 3 อาคาร, สูง 8 ชั้น พร้อมชั้นใต้ดิน 2 ชั้น 3 อาคาร
จำนวนยูนิต : 335 ยูนิต
แบบห้อง : Fully Furnished
อาคาร A
- 1 Bedroom 29 - 33.57 ตร.ม.
- 2 Bedroom 57.67 - 67.53 ตร.ม.
อาคาร B
- 1 Bedroom 29.01 - 41 ตร.ม.
- 2 Bedroom 50.39 - 74 ตร.ม.
อาคาร C
- 1 Bedroom 29 - 41.38 ตร.ม.
- 2 Bedroom 57.24 - 74 ตร.ม.
ที่จอดรถ : 55% รวมซ้อนคัน
ความคืบหน้าภาพรวมของโครงการ ณ 2018.01.27 : ประมาณ 80 %
ราคาเริ่มต้น : 3.7 ล้านบาท
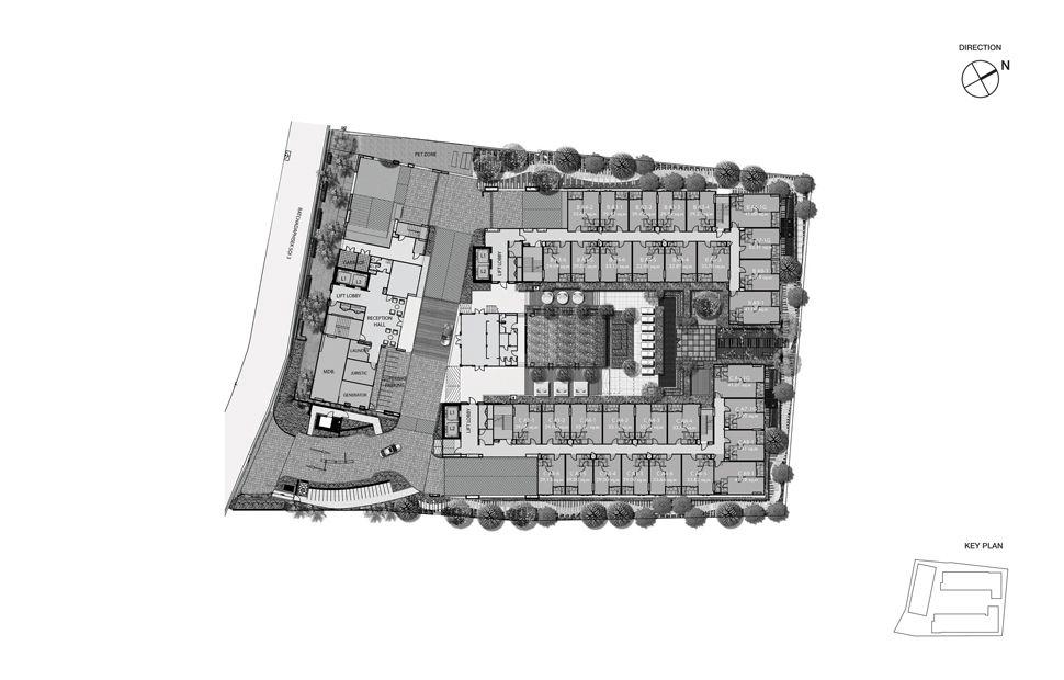
แปลนโครงการ มาเอสโตร 03 รัชดา-พระราม 9 (Maestro 03 Ratchada-Rama 9)
มาเอสโตร 03 รัชดา-พระราม 9 (Maestro 03 Ratchada-Rama 9) ถือเป็นคอนโดพระราม 9 แบบ Low Rise ถ้าเทียมกับคอนโดอื่นๆ ในย่านเดียวกัน มีพื้นที่แบ่งเป็นสัดส่วนเหมาะสม สงบ คนไม่พลุกพล่าน เหมาะกับคนที่ต้องการความเป็นส่วนตัว ถึงแม้แต่จะมีจำนวนชั้นไม่มากแต่ก็มีหลายห้องหลายขนาดให้ลูกค้าได้เลือก

นี่เป็น Master Plan ของโครงการ มาเอสโตร 03 รัชดา-พระราม 9 (Maestro 03 Ratchada-Rama 9) จะเห็นว่าอาคาร A จะอยู่ติดกับถนนรัชดา ซอย 3 ชั้นล่างเป็นล็อบบี้และที่ตั้งของนิติบุคคล มีลานจอดซุปเปอร์ไบค์อยู่บริเวณทางเข้า ส่วนอาคาร B และ C ด้านในโครงการอยู่ติดกับพื้นที่ส่วนกลาง และมีพื้นที่ส่วนกลางเป็นลานที่ถูกล้อมด้วยทั้ง 3 อาคาร พื้นที่หลักๆ ประกอบด้วยสระว่ายน้ำ ฟิตเนส ลานสวนหมากรุก และมีทางวิ่งรอบโครงการ
แปลนห้อง อาคาร A
ห้องส่วนใหญ่ของ มาเอสโตร 03 รัชดา-พระราม 9 (Maestro 03 Ratchada-Rama 9) จะเน้นเป็นห้องแบบ 1 Bedroom ขนาดตั้งแต่ 29.00 - 41.38 ตร.ม และ 2 Bedroom ขนาด 50.39 - 41.38 ตร.ม แตกต่างออกไปในแต่ละอาคาร เพื่อตอบโจทย์ไลฟ์สไตล์ของทั้งคนโสดและผู้นที่มีครอบครัว
1 Bedroom ขนาด 29.00 ตร.ม

1 Bedroom ขนาด 33.57 ตร.ม
2 Bedroom 57.67 ตร.ม.

2 Bedroom 67.53 ตร.ม.

ภาพห้องตัวอย่างโครงการ มาเอสโตร 03 รัชดา-พระราม 9 (Maestro 03 Ratchada-Rama 9)
Maestro 03 Ratchada-Rama 9 เป็นคอนโดพระราม 9 ที่ตกแต่งแบบ Fully Furnished พร้อมเฟอร์นิเจอร์บิลท์อิน (Built in) หลายรายการ ตกแต่งครบพร้อมอยู่ได้เลย สามารถชมห้องตัวอย่างได้แล้ววันนี้
ถ่ายทอดแรงบัลดาลใจอย่างมีชั้นเชิง โดยคงความมีเสน่ห์เหนือระดับของยูโรเบี้ยนคลาสสิค ผสมผสานกับรูปแบบร่วมสมัยและเรียบง่ายอย่างลงตัว
ภาพห้องตัวอย่าง มาเอสโตร 03 รัชดา-พระราม 9 (Maestro 03 Ratchada-Rama 9)
สิ่งอำนวยความสะดวก มาเอสโตร 03 รัชดา-พระราม 9 (Maestro 03 Ratchada-Rama 9)

มาเอสโตร 03 รัชดา-พระราม 9 (Maestro 03 Ratchada-Rama 9) มีจุดเด่นที่สระว่ายน้ำสไตล์ยุโรปแบบ Semi indoor
มาพร้อมกับฟิตเนสบนชั้นลอย
แต่หากใครไม่ชอบออกกำลังอยู่ในอาคาร มาเอสโตร 03 รัชดา-พระราม 9 (Maestro 03 Ratchada-Rama 9) เขายังมีทางวิ่งจ็อกกิ้งยาวรอบโครงการไว้ให้เราออกกำลังกาย ซึ่งนอกจากนี้แล้ว ยังมีซุ้มอ่านหนังสือ ซุ้มทำอาหาร ลานบาร์บีคิว ซุ้มคนรักสัตว์เลี้ยง สวนหินเพื่อความผ่อนคลายไว้ให้ทุกคนได้ทำกิจกรรมและสัมผัสกับธรรมชาติที่อยู่รอบคอนโด
มาเอสโตร 03 รัชดา-พระราม 9 (Maestro 03 Ratchada-Rama 9) หนึ่งในคอนโดที่เลี้ยงสัตว์ได้
ฟังไม่ผิดค่ะ มาเอสโตร 03 รัชดา-พระราม 9 (Maestro 03 Ratchada-Rama 9) ถือเป็นหนึ่งในคอนโดอันน้อยนิดที่สามารถเลี้ยงสัตว์ได้ ใครที่มีสัตว์เลี้ยงเเล้วต้องการย้านคอนโดหรือใครที่อยู่คนเดียวเเล้วต้องการหาน้องๆ มาเลี้ยง ที่นี้ถือเป็นตัวเลือกที่น่าสนใจ เพราะถือเป็นคอนโดใกล้ MRT ที่มีพื้นที่ส่วนกลางรองรับคุณภาพชีวิตของสัตว์เลี้ยงลูกบ้าน และนอกจากที่นี้แล้ว หากต้องการหาคอนโดที่เลี้ยงสัตว์ได้สามารถอ่านได้ที่ รวม 5 คอนโดเลี้ยงสัตว์ได้ เอาใจทาสน้องแมวน้องหมา
การเดินทางไป มาเอสโตร 03 รัชดา-พระราม 9 (Maestro 03 Ratchada-Rama 9)
จากโครงการ มาเอสโตร 03 รัชดา-พระราม 9 (Maestro 03 Ratchada-Rama 9) อยู่ในถนนรัชดาภิเษกซอย 3 ซึ่งเป็นทำเลที่คุ้นเคยเป็นอย่างดีเรื่องความครึกครื้นของผู้คนและการค้า สามารถเดินทางได้สะดวกแม้ไม่มีรถส่วนตัว เพราะเป็นคอนโดใกล้ MRT พระราม 9 ห่างออกมาเพียง 600 ม. ทั้งยังมีระบบขนส่งสาธารณะอื่นๆ มาให้เราได้เลือกใช้งานด้วย
สถานที่ใกล้เคียง มาเอสโตร 03 รัชดา-พระราม 9 (Maestro 03 Ratchada-Rama 9)
นอกจากคอนโดใกล้ MRT พระราม 9 และ MRT ศูนย์วัฒนธรรมฯ แล้ว มาเอสโตร 03 รัชดา-พระราม 9 (Maestro 03 Ratchada-Rama 9) ยังอยู่ใกล้ที่ตั้งของสถานที่ต่างๆ ทั้งห้างสรรพสินค้า ตลาด อาคารสำนักงาน โรงพยาบาลต่างๆ ไม่ว่าจะมีไลฟ์สไตล์แบบไหนก็ตอบโจทย์ความเป็นคุณได้
ห้างสรรพสินค้า
- เซ็นทรัล พระราม 9
- ศูนย์การค้าฟอร์จูนทาวน์
- เอสพลานาด รัชดา
- เดอะสตรีท
อาคารสำนักงาน
- ตลาดหลักทรัพย์แห่งประเทศไทย
- อาคาร เอไอเอ แคปปิตอล เซ็นเตอร์
- ทรูทาวเวอร์
- ไซเบอร์เวิลด์ รัชดา
โรงพยาบาล
- โรงพยาบาลพระราม 9
- โรงพยาบาลกรุงเทพ
- โรงพยาบาลปิยเวช
สถาทูต
- สถานเอกอัครราชทูตสาธารณรัฐประชาชนจีน
- สถานเอกอัครราชทูตสาธารณรัฐเกาหลี
เลือก มาเอสโตร 03 รัชดา-พระราม 9 (Maestro 03 Ratchada-Rama 9) ให้เป็นส่วนหนึ่งของชีวิตคุณ
สำหรับผู้ที่สนใจโครงการ มาเอสโตร 03 รัชดา-พระราม 9 (Maestro 03 Ratchada-Rama 9) คอนโดพระราม 9 จากบริษัท เมเจอร์ ดีเวลลอปเม้นท์ เอสเตท จำกัด สามารถลงทะเบียนเพื่อรับข้อมูลโครงการได้ที่เว็บไซต์ https://www.mde.co.th/th/project/maestro03 หรือต้องการชมห้องตัวอย่างได้เเล้ววันนี้
มาเอสโตร 03
5965ff97dee823fc322181d4
maestro-03-มาเอสโตร![รูปหน้าปก [Preview] มาเอสโตร 03 รัชดา-พระราม 9 (Maestro 03 RATCHADA-Rama 9) ที่สุดของความมีสไตล์ คอนโดใหม่ใกล้ MRT พระราม 9](https://static.estopolis.com/review/5ab34aa781c2abdf64d43dbd_5ab35c2715f0202a79b94d99.jpg)










