[Review] รีวิวคอนโดใหม่ The COLLECT Ratchada 32 (เดอะ คอลเล็ค รัชดา 32) กับราคาเบาๆ ที่เรา ‘เลือก’ เองได้ เริ่มต้นที่ 1.99 ล้านบาท
115 ซอยรัชดาภิเษก 36 แยก 19-1 แขวงจันทรเกษม เขตจตุจักร กรุงเทพฯ 10900
The next Real estate (เดอะ คอลเล็ค)

HIGHLIGHTS
- The COLLECT Ratchada 32 (เดอะ คอลเล็ค รัชดา 32) คอนโด Low Rise เหมาะกับคนรักความสงบ เน้นความเป็นส่วนตัว มีจำนวนยูนิตน้อยอยู่ในซอยที่ไม่พลุกพล่าน
- อยู่ในทำเลรัชดา-ลาดพร้าว วังหิน ทำเล NEW CBD (New Central Business District) ที่น่าจับตามอง ไม่ไกลจากรถไฟฟ้าสายสีเหลือง (อนาคต) สถานีจันทรเกษม และยังเป็นซอยลัดไปสู่ย่านลาดพร้าว, โชคชัย 4 หรือพหลโยธิน
- อยู่ใกล้สิ่งอำนวยความสะดวก อย่าง SCB Park, คปภ., ศาลอาญา, เทสโก้ โลตัส สาขาวังหิน, พลาซ่า ลากูน ลาดพร้าว วังหิน ฯลฯ คาเฟ่และร้านอาหาร รวมถึงมหาวิทยาลัยราชภัฎจันทรเกษม
- อยู่ในเรทราคาเริ่มต้น ที่ใครก็เอื้อมถึงเพียง 1.99 ล้านบาท
PROJECT REVIEW
ในชีวิตนี้เรามีโอกาส ‘เลือก’ อะไรได้หลายอย่าง
แต่ถ้าเป็นเรื่องที่อยู่อาศัยล่ะ...คุณอยากจะ ‘เลือก’ อยู่ที่ไหนถึงจะตอบโจทย์ชีวิตมากที่สุด?
- ย่าน Prime Area?
- ต้องการความเงียบสงบ?
- ใกล้รถไฟฟ้า?
- เจริญอาหารด้วยของกินรายล้อม?
- ราคาเอื้อมถึง?
แน่นอนว่า...การเลือกจะอยู่ที่ไหนสักที่ เราย่อมมีเกณฑ์วัดมากมายมาใช้ในการตัดสินใจ แต่ถ้าเราสามารถ ‘รวม’ เอาทุกสิ่งที่ต้องการมาไว้บนพื้นที่เดียวกันได้ โดยที่เราไม่ต้องคิดอะไรให้มาก นอกจาก ‘เลือก’ หยิบเอาแต่ความคุ้มค่าตรงหน้ามาพิจารณาเพิ่มเติมเท่านั้น อย่าง คอนโดคอนเซ็ปต์ดี ๆ ที่ ESTO ของเราได้ไปรีวิวในวันนี้ ก็ดูเหมือนจะเป็นอีกหนึ่ง ‘ทางเลือก’ คุ้ม ๆ สำหรับคนที่มีตัวแปรมากมายอยู่ในใจ เพราะเป็นคอนโดที่ตั้งอยู่ในทำเล NEW CBD (New Central Business District) อย่าง ‘ซอยรัชดาภิเษก 32’ ซึ่งสามารถเดินทางได้สะดวกทั้งรถยนต์ส่วนตัว และรถไฟฟ้า ส่วนเรื่องของกินนั้นก็มีให้เลือกมากมาย เพราะเป็นซอยทางผ่านที่เชื่อมต่อหลายย่านไว้ด้วยกัน...
The COLLECT Ratchada 32
(เดอะ คอลเล็ค รัชดา 32)
คอนโดเงียบสงบ ในทำเลเดินทางสะดวก
รายละเอียดโครงการ The COLLECT Ratchada 32 (เดอะ คอลเล็ค รัชดา 32)
ชื่อโครงการ : The COLLECT Ratchada 32 (เดอะ คอลเล็ค รัชดา 32)
เจ้าของโครงการ : บริษัท เดอะเน็กซ์ เรียลเอสเตท จำกัด
ที่ตั้งโครงการ : 115 ซอยรัชดาภิเษก 36 แยก 19-1 แขวงจันทรเกษม เขตจตุจักร กรุงเทพฯ 10900
พื้นที่โครงการ : 0-1-98 ไร่
ลักษณะโครงการ : อาคาร Low Rise สูง 8 ชั้น จำนวน 1 อาคาร
จำนวนห้อง : 64 ยูนิต
รูปแบบห้อง :
- Type A : 24.28 - 24.50 Sq.m. (1 ห้องนอน 1 ห้องน้ำ)
- Type B : 28.20 - 28.62 Sq.m. (1 ห้องนอน 1 ห้องน้ำ)
- Type C : 24.28 - 24.50 Sq.m. (Duo Space)
ค่าใช้จ่ายส่วนกลาง : 50 บาท/ตร.ม.
เงินกองทุนส่วนกลาง : 500 บาท/ตร.ม.
เริ่มก่อสร้าง : มกราคม 2563
คาดว่าจะแล้วเสร็จ : คาดว่าจะแล้วเสร็จ 2563
ราคาเริ่มต้น : 1.99 ล้านบาท
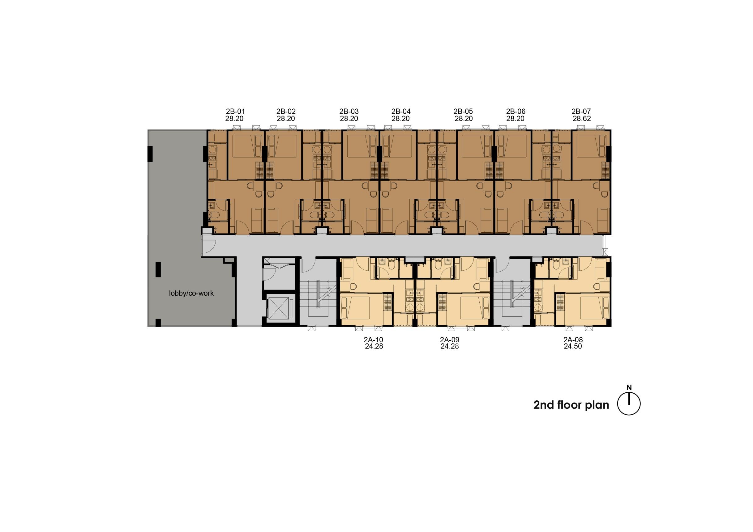
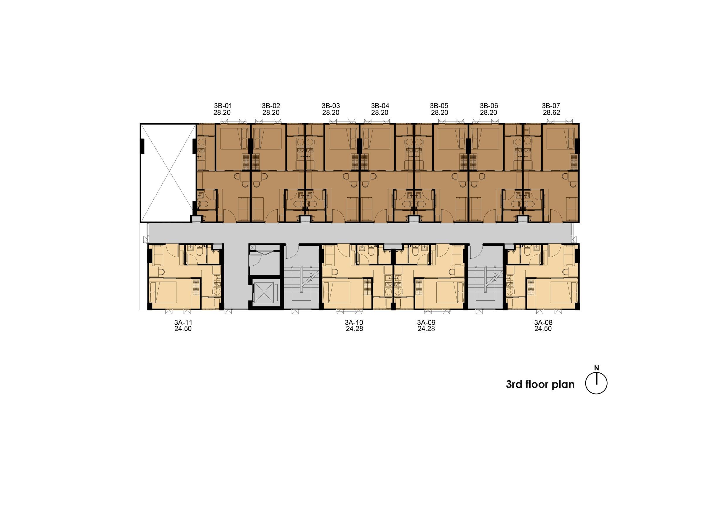
Floor Plan โครงการ The COLLECT Ratchada 32 (เดอะ คอลเล็ค รัชดา 32)
The COLLECT Ratchada 32 (เดอะ คอลเล็ค รัชดา 32) คอนโดใหม่จาก The Next Real Estate Co., Ltd เป็นโครงการ Low Rise สูง 8 ชั้น จำนวน 1 อาคาร ที่ออกแบบมาในสไตล์ Modern Luxury เน้นความเรียบง่ายแต่หรูหรา และให้ความรู้สึกเป็นส่วนตัวมากเป็นพิเศษ พร้อมการเดินทางที่สะดวกสบายด้วยรูปแบบการเดินทางหลากหลาย ไม่ว่าจะเป็นรถโดยสาร รถไฟฟ้า รถส่วนบุคคล
ตัวโครงการตั้งอยู่ในซอยรัชดาภิเษก 36 แยก 19-1 ซึ่งเป็นซอยย่อยที่ให้ความเงียบสงบ เหมาะกับการอยู่อาศัย สภาพแวดล้อมรอบข้างคอนโดส่วนใหญ่จะเป็นบ้านเรือนของคนในชุมชนดั้งเดิม กับอาคารสูงไม่เกิน 3 ชั้น จึงไม่มีปัญหาเรื่องการบังวิวรอบข้าง และความพลุกพล่านของผู้คนอย่างคอนโดในเมืองทั่วไป
จาก Floor Plan จะเห็นว่าตัวอาคาร The COLLECT Ratchada 32 (เดอะ คอลเล็ค รัชดา 32) วางตำแหน่งยูนิตอยู่ในทิศเหนือ-ใต้ ทำให้ตัวห้องพักอาศัยไม่ร้อนและรับลมได้ค่อนข้างดี ส่วนเนื้อที่โครงการจะกว้างประมาณ 0-1-98 ไร่ พร้อมเว้นระยะห่างจากตัวอาคารถึงพื้นที่ด้านหน้าถนนและอาคารข้างเคียง ด้วยพื้นที่สีเขียวรอบโครงการ เพื่อให้ความสงบและดูสบายตา
และไม่ลืมเสริมความปลอดภัยให้การอยู่อาศัยด้วยระบบรักษาความปลอดภัยตลอด 24 ชั่วโมง โดยจะใช้ Key card access ในการเข้า-ออกโครงการ ระบบคีย์การ์ด แบบล็อกชั้น พร้อมติดตั้งกล้อง CCTV ไว้หลายจุดอีกด้วย
สำหรับชั้น G จะเป็นพื้นที่จอดรถใต้อาคาร รองรับได้ประมาณ 23 คัน หรือ 35% (ไม่รวมการจอดแบบซ้อนคัน) แต่ถ้ารวมทั้งหมดแล้ว จะสามารถจอดเพิ่มได้ประมาณ 50% ถือว่าช่วยอำนวยความสะดวกให้สำหรับลูกบ้านไม่อยากจอดรถตากแดด แถมยังเดินเข้าอาคารไปขึ้นลิฟต์ได้ทันที
สำหรับชั้นพักอาศัยจะเริ่มตั้งแต่ชั้น 2 ไปจนถึงชั้น 8 โดยจะมีจำนวนยูนิตเฉลี่ยสูงสุดอยู่ที่ประมาณ 12 ยูนิต/ชั้น และมีลิฟต์แบบล็อกชั้นให้บริการ 1 ตัว/อาคาร ส่วน Facilities หลักจะกระจายตัวอยู่ที่บริเวณชั้น 2, 7 และ 8 เพื่อให้ลูกบ้านทุกคนสามารถเข้าถึงได้ง่ายยิ่งขึ้น
บนชั้น 2 ของคอนโด The COLLECT Ratchada 32 (เดอะ คอลเล็ค รัชดา 32) จะแบ่งพื้นที่เป็นส่วนของ Facilities อย่าง "Lobby & Co-working Space" โดยออกแบบมาเป็น High Ceiling เพื่อความโปร่งในการใช้งาน ส่วนพื้นที่พักอาศัยจะมีจำนวน 10 ยูนิต โดยเราไม่ต้องกังวลเรื่องความเป็นส่วนตัว เพราะทางโครงการได้มีระบบกั้นระหว่างส่วน Facilities กับส่วนพักอาศัยให้แล้วเรียบร้อย
เริ่มต้นส่วนพักอาศัยแบบเต็มตัวที่ชั้น 3 ซึ่งชั้นนี้จะมีจำนวนห้องทั้งหมด 11 ยูนิต ที่ออกแบบทางเดินมาให้เป็นแบบ Double Corridor วางตัวขนานกัน โดยเว้นระยะห่างของทางเดินให้เดินสะดวก กว้างประมาณ 1.5 เมตร
เมื่อขึ้นมาบนชั้น 4-5 จะมีจำนวนยูนิตทั้งหมด 12 ยูนิต ซึ่งเป็นชั้นที่มีจำนวนยูนิตมากที่สุดใน The COLLECT Ratchada 32 โดยฝั่งทิศใต้ของอาคารในชั้น 5 จะเป็นห้องแบบ Duo Space ที่ได้ฟังก์ชันครบทั้งแนวราบและแนวตั้ง เพื่อการใช้พื้นที่อย่างเป็นสัดส่วน
สำหรับใครที่อยากยกระดับการอยู่อาศัยให้มีความเป็นส่วนตัวมากขึ้น ก็แนะนำให้เลือกซื้อห้องในชั้น 6 นี้ เพราะจะมีจำนวนห้องเพียง 8 ยูนิตเท่านั้น
ถัดมาในชั้น 7 จะเป็นที่ตั้งของ ‘Double Space Fitness’ และพื้นที่พักอาศัยจำนวน 11 ยูนิต ซึ่งจะเห็นว่า ในแต่ละชั้นที่ผ่านมาจะไม่มีกำแพงห้องไหนที่อยู่ติดกับลิฟต์โดยสารเลย เพื่อลดเรื่องเสียงรบกวนจากการใช้ลิฟต์ของลูกบ้าน ทำให้ได้ความเป็นส่วนตัวในการอยู่อาศัยมากขึ้น
และในชั้นที่ 8 จะเป็นส่วนเชื่อมต่อของโครงสร้างห้องแบบ Duo Space ที่ชั้น 7 เช่นเดียวกับชั้น 5-6 ที่ทำฝ้ายกสูงกว่ายูนิตคอนโดมิเนียมทั่วไป โดยเพดานสูงถึง 4.3 เมตร เป็นพื้นที่ 2 ชั้น ทำให้ผู้อยู่อาศัยสามารถจัดสรรพื้นที่ชั้นล่างให้เป็นห้องนั่งเล่น ห้องนอน ห้องครัว ห้องน้ำ และชั้นบนก็สามารถทำเป็นห้องนอน ห้องทำงานได้ นับว่าเป็นการฉีกกฏการออกแบบคอนโดแบบเดิมๆ ที่จำกัดพื้นที่แค่ในกรอบสี่เหลี่ยม
จนกลายเป็นจุดเด่นที่แตกต่าง และทำให้การอยู่อาศัยในโครงการ The COLLECT Ratchada 32 (เดอะ คอลเล็ค รัชดา 32) มีอารมณ์คล้ายอยู่บ้านมากยิ่งขึ้นกว่าที่เคย
สำหรับ Facilities หลักบนชั้น 7 ของโครงการ The COLLECT Ratchada 32 (เดอะ คอลเล็ค รัชดา 32) จะเป็นห้อง Fitness แบบ Double Space ที่ตั้งอยู่ตรงมุมอาคารเยื้องมาทางด้านหน้า ทำให้มองเห็นวิวรอบ ๆ บรรยากาศการใช้ชีวิตได้ชัดเจน
ส่วนบนชั้น Roof top จะเป็นพื้นที่ของสระว่ายน้ำ พร้อมเก้าอี้ Seat Pool ให้นอนพักผ่อนอาบแดด และมี Sky Lounge ท่ามกลางสวนสีเขียวอยู่ข้างๆ ชวนผ่อนคลาย โดยชั้นนี้เป็นชั้นบนสุดของตัวอาคาร จึงทำให้ผู้อยู่อาศัย ได้สัมผัสกับวิวเมืองและสวนรอบด้าน แบบ 360 องศา ซึ่งถือเป็นไฮไลท์ ของตัวคอนโดนี้ เพราะสร้างสรรค์ประสบการณ์ที่หรูหราในคอนโดราคาย่อมเยา
สระว่ายน้ำของโครงการมีขนาดกว้าง 5.75 เมตร ยาว 17.40 เมตร ลึก 1.2 เมตร เป็นสระว่ายน้ำระบบเกลือ น้ำจึงสะอาดและไม่ทำให้เสียสุขภาพผิว ส่วนรูปแบบของสระว่ายน้ำจะวางขนานไปกับแนวอาคาร โดยมีระบบกรองน้ำที่คอยผลัดเปลี่ยน หมุนเวียนน้ำในสระให้สะอาดอยู่เสมอ
พื้นที่ส่วนกลางโครงการ The COLLECT Ratchada 32 (เดอะ คอลเล็ค รัชดา 32)
เพิ่ม Space ทำกิจกรรมที่คุณ ‘เลือก’ สรรได้เอง
ภาพตัวอย่างบริเวณด้านหน้าโครงการ The COLLECT Ratchada 32 (เดอะ คอลเล็ค รัชดา 32) ที่ออกแบบให้ชั้น G เป็นลานจอดรถใต้อาคาร พร้อมรองรับแขกที่มาเยี่ยมเยือนด้วย ‘High Ceiling Lobby’ และ ‘Co-working space’ ที่อยู่บนชั้น 2 ภายใต้บรรยากาศแบบ Modern Luxury ในสไตล์ The COLLECT
ออกกำลังกายเรียกเหงื่อให้หุ่นเฟิร์มด้วย ‘Double Space Fitness’ ห้องออกกำลังกายบนชั้น 7 ที่ออกแบบมาให้เราสามารถ Take View ผ่านกระจกใสบานสูงจรดเพดาน โดยภายในจะแบ่งเป็นโซนเครื่องเล่นและ Yoga Area
เลือกสร้างความแตกต่างให้กับการใช้ชีวิตด้วยการ Take View ผ่านสวนสีเขียวบน Roof top และออกกำลังกายให้ร่างกายหลั่งอะดรีนาลีนความสุขกับ Rooftop Swimming Pool with Stunning Scene of Bangkok Skyline สระว่ายน้ำขนาด 5.75 x 17.40 เมตร ลึก 1.2 เมตร
โดยสระว่ายน้ำของ The COLLECT Ratchada 32 จะเป็นสระระบบเกลือที่ช่วยลดอันตรายในการกักเก็บคลอรีน ปลอดภัยต่อสุขภาพและไม่ทำร้ายผิวหนัง ทำให้ลูกบ้านสามารถเลือกใช้งานสระว่ายน้ำได้อิสระตลอดทั้งวัน
รูปแบบห้องของโครงการ The COLLECT Ratchada 32 (เดอะ คอลเล็ค รัชดา 32)
เลือกรูปแบบห้องที่ใช่ ในสไตล์ที่ชอบ
Type A : 24.28 - 24.50 Sq.m. (1 ห้องนอน 1 ห้องน้ำ) จะเป็น Type ห้องหน้ากว้างเหมาะสำหรับการอยู่อาศัยแบบ 1-2 คน โดยแยกส่วนของงานระบบ และส่วน Living Area ออกจากกันชัดเจนด้วยครัวระบบปิด เพื่อความสะดวกในการอยู่อาศัย
Type B : 28.20 - 28.62 Sq.m. (1 ห้องนอน 1 ห้องน้ำ) ห้องตอนลึกที่แบ่งฟังก์ชันแต่ละส่วนไว้ค่อนข้างชัดเจนกว่า Type ที่เเล้ว มีครัวระบบปิดที่เหมาะกับคนอยากได้พื้นที่ทำอาหารไปพร้อม ๆ กับการใช้ชีวิตที่เป็นสัดส่วน
Type C : 24.28 - 24.50 Sq.m. (Duo Space) สร้างความพิเศษให้กับการอยู่อาศัยด้วย Type ห้องแบบ Duo Space ที่เพิ่มพื้นที่ห้องให้สูงโปร่งด้วยการออกแบบ Space ให้มีการเล่นระดับ ยกโถงฝ้าเพดานสูงแบบ Double Space โดยจะมีขนาดพื้นที่ชั้นล่างกว้าง 24 Sq.m. ส่วนชั้นบนถ้าตกแต่งเพิ่มเติมแล้วจะกว้างประมาณ 10 Sq.m.
ROOM REVIEW
พาชมห้องตัวอย่าง Type B : 28.20 - 28.62 Sq.m. แบบ 1 ห้องนอน 1 ห้องน้ำ ที่ทางโครงการ The COLLECT Ratchada 32 (เดอะ คอลเล็ค รัชดา 32) ได้จัดวางเลย์เอาท์การใช้งานไว้ให้ชมกันแบบจัดเต็ม โดยทุกยูนิตของคอนโดจะขายแบบ Fully Furnished พร้อมชุดครัว, แอร์ และสุขภัณฑ์ห้องน้ำ อีกทั้งยังให้ชุดวางทีวี, ตู้เก็บรองเท้า, โซฟา, ตู้เสื้อผ้า, เตียง และแอร์ เรียกว่า หิ้วกระเป๋าพร้อมเข้าอยู่ได้เลย
โดยยูนิต Type B : 28.20 - 28.62 Sq.m. (1 ห้องนอน 1 ห้องน้ำ) จะเป็นห้องทรงสี่เหลี่ยมผืนผ้าตอนลึก มีความสูงของฝ้าอยู่ที่ประมาณ 2.4 เมตร เมื่อเปิดประตูเข้ามาส่วนแรก จะเจอเข้ากับพื้นที่ของห้องรับแขก ซึ่งทางโครงการจะให้โซฟาตัวยาว ผิวสัมผัสนุ่มแบบ 2 ที่นั่ง, Coffee Table ในตำแหน่งที่พอดีกับระยะรับชมทีวี
- ในด้านความปลอดภัยนั้น ทางโครงการ The COLLECT Ratchada 32 (เดอะ คอลเล็ค รัชดา 32) ได้เพิ่มความปลอดภัยในการอยู่อาศัย ด้วยการติดตั้ง Digital Door Lock แบรนด์ Yale ให้กับทุกยูนิต
พื้นภายในห้องจะเป็นพื้น Smart Vinly ที่มีลักษณะเหมือนไม้จริง สามารถป้องกันน้ำและความชื้นได้ดีกว่าพื้นไม้ลามิเนตที่คอนโดทั่วไปนิยมใช้
ในส่วนของชั้นวางทีวี ทางโครงการได้ทำการ Built-in เพื่อความสวยงาม อีกทั้งยังเป็นการประหยัดพื้นที่ในการจัดวางเฟอร์นิเจอร์ไปในตัว ช่วยให้ห้องของเรามีพื้นที่ไว้ใช้สอยอย่างอื่นได้มากขึ้น
- สำหรับห้อง Type B : 28.20 - 28.62 Sq.m. 1 (ห้องนอน 1 ห้องน้ำ) ทางโครงการจะติดตั้งเครื่องปรับอากาศยี่ห้อ Daikin (หรือเทียบเท่า) ขนาด 9,000 BTU ให้จำนวน 2 ตัว อยู่ในห้องนั่งเล่นและห้องนอน
หากไม่ต้องการแต่งห้องด้วยโซฟา Day bed ตัวใหญ่ ก็อาจเสริมพื้นที่เก็บของเล็กๆ เป็นชั้นแบบลอยตัวไว้ด้านข้างโซฟา เพื่ออำนวยความสะดวกเพิ่มเติมก็ได้
เมื่อเข้ามาในบริเวณห้องนั่งเล่น จะเห็นโซนรับประทานอาหาร ที่ทางโครงการได้จัดวางโต๊ะทานข้าวแบบ 2 ที่นั่งไว้มุมห้อง ไม่ว่าจะนั่งทานข้าวไปดูทีวีไป หรือนั่งพูดคุยกันในครอบครัวก็เลือกได้ทั้งนั้น ถือเป็นพื้นที่สำหรับทำกิจกรรมร่วมกันในครอบครัวได้อีกทางหนึ่ง
ถัดจากส่วนทำกิจกรรมอย่างห้องนั่งเล่นไป ก็จะเป็นส่วนของ ‘ห้องนอน’ ที่ทางโครงการออกแบบมาให้ต่อเนื่องกัน แต่ก็ยังคงความเป็นส่วนตัวไว้ด้วยการกั้นกระจกบานเลื่อน เมื่อเปิดบานเลื่อนจนสุดก็จะเห็นถึงความกว้างของ Space ที่ทำให้ห้องดูกว้างขึ้น เหมาะสำหรับคนที่ชอบห้องที่มีพื้นที่ใช้สอยเชื่อมถึงกัน
ประตูกั้นระหว่างห้องนั่งเล่นกับห้องนอนจะเป็นประตูบานเลื่อนแบบ 3 ตอน เลื่อนเปิดออกได้ฝั่งเดียว ช่วยทำให้ห้องคงความต่อเนื่องของ Space เอาไว้ได้เป็นอย่างดี แต่ถ้าใครอยากได้ความเป็นส่วนตัวที่มากขึ้น ก็สามารถติดฟิล์มขุ่น หรือม่านบังสายตาเพิ่มได้
เปิดรับพื้นที่พักผ่อนให้ขยายมากขึ้นด้วยการออกแบบโซนห้องนอนให้กว้างขวาง และเสริมความปลอดโปร่งด้วยหน้าต่างบานฟิกซ์ผสมบานกระทุ้ง ที่ช่วยให้แสงสว่างลอดผ่านเข้ามาได้เต็มที่ ทำให้ห้องไม่ดูปิดทึบจนเกินไป ส่วนเครื่องปรับอากาศก็จะติดตั้งไว้ตรงกับบริเวณเตียงนอนพอดี
- ด้านในห้องนอนจะมีเตียงขนาด 5 ฟุตที่ทางโครงการจัดเตรียมไว้ให้ ซึ่งจะเหลือพื้นที่ให้วางเฟอร์นิเจอร์ชิ้นอื่นได้ด้วย
- ใครที่ชอบงาน Interior Design อาจจะทำการกรุกระจกที่ผนังเพิ่มเติมเอง เพื่อตกแต่งให้ห้องดูหรูหรา และกว้างมากขึ้นเหมือนในห้องตัวอย่างก็ได้เช่นกัน
เอาใจคนชอบแต่งห้องด้วยการออกแบบพื้นที่ภายในให้เหมาะกับการ Built-in เฟอร์นิเจอร์ ที่ทางโครงการได้ตกแต่งตู้เสื้อผ้า Built in ให้ นอกจากนี้ยังมีชั้นวางของ หรือแม้แต่ส่วนปลายเตียงก็ยังมีที่ว่างให้ทำโต๊ะเครื่องแป้งเล็ก ๆ สำหรับสาว ๆ ที่อยากได้พื้นที่เก็บของกระจุกกระจิก และมุมแต่งหน้าขนาดพอเหมาะกับห้องนอนได้
แบ่งสัดส่วนการใช้ชีวิตให้ลงตัวมากยิ่งขึ้นด้วยการออกแบบ ‘ห้องครัวระบบปิด’ ที่จะทำให้การทำอาหาเป็นเรื่องง่าย โดยทางโครงการ The COLLECT Ratchada 32 ได้เพิ่มพาร์ทิชันกั้นแยกส่วนระหว่างห้องครัวกับโซนอื่นให้อย่างชัดเจน
กลับเข้าสู่ส่วนสุดท้ายอย่าง ‘ห้องน้ำ’ ซึ่งทางโครงการ The COLLECT Ratchada 32 (เดอะ คอลเล็ค รัชดา 32) ได้แยกส่วนเปียกและส่วนแห้งออกมาให้ชัดเจน ด้วยการติดพาร์ทิชันบานเลื่อนสามตอน โดยส่วนแห้งจะแยกเป็นส่วนของอ่างล้างหน้า, โถสุขภัณฑ์พร้อมสายฉีดชำระ และที่ใส่กระดาษทิชชู่ให้เรียบร้อย นอกจากนี้ยังติดตั้งราวแขวนผ้ากับกระจกเงามาให้เต็มความยาวของผนัง เพื่อความสะดวกในการแต่งตัว
คำนึงถึงฟังก์ชันการใช้งานที่มากขึ้นด้วยการเลือกติดตั้ง ‘อ่างแบบลอยตัว’ พร้อมพื้นที่วางของรอบอ่าง ตลอดจนเคาน์เตอร์ด้านใต้ที่สามารถวางครีมบำรุงผิวหรือผ้าเช็ดหน้าสำรองได้สะดวก สำหรับขนาดอ่างที่ทางโครงการให้มา ก็ถือว่าเพียงพอให้ใช้งานได้แบบที่น้ำไม่กระเด็นออกมาเลอะพื้นด้านนอก
ฝั่งโซนเปียกจะติดตั้งฝักบัวแบบ Hand Shower คู่กับช่อง Drop wall สำหรับวางสบู่และแชมพูให้ ส่วนผนังและพื้นจะปูด้วยกระเบื้อง เพื่อให้ง่ายต่อการเช็ดล้างทำความสะอาด โดยบริเวณพื้นทางเข้าของโซนเปียกจะทำการยกธรณีประตูขึ้นสูงจากพื้นเล็กน้อย เพื่อป้องกันไม่ให้น้ำไหลย้อนออกมาด้านนอก
- สุขภัณฑ์ภายในห้องพักอาศัยทุกห้อง ทางโครงการจะมีสุขภัณฑ์ของ American standard ให้ครบชุด
LOCATION & LIFESTYLE
สำหรับใครที่สนใจทำเลในซอยรัชดาภิเษก 32 สิ่งที่ต้องรู้เลยก็คือ ซอยนี้เป็นซอยที่คนขับรถยนต์ส่วนตัวมักใช้ลัดเลาะไปยังถนนเส้นสำคัญต่างๆ ได้หลากหลายสาย ฟังแล้วอาจจะดูพลุกพล่านเพราะเป็นเส้นทางสัญจร
ความจริงแล้วโครงการ The COLLECT Ratchada 32 (เดอะ คอลเล็ค รัชดา 32) จะตั้งอยู่ในซอยย่อยอย่าง ‘ซอยรัชดาภิเษก 36 แยก 19-1’ ซึ่งเป็นซอยสำหรับการอยู่อาศัยที่เงียบสงบ แต่ถ้าอยากจะมองหาสีสันให้ชีวิตก็เพียงแค่ขับรถออกมาเล็กน้อย ก็จะพบเส้นทางเชื่อมต่อไปได้ทั้งเส้นรัชดาภิเษก, โชคชัย 4 และลาดพร้าว-วังหิน ซึ่งเป็นย่านของกินยอดฮิตของคนกรุงเทพฯ
สำหรับจุดสังเกตที่ใกล้กับที่ตั้งของโครงการจะอยู่บริเวณปากซอยของที่ตั้งโครงการเลย ซึ่งเป็นที่ตั้งของร้านสะดวกซื้ออย่าง 7-11 ห่างกันเพียง 190 เมตร เท่านั้น บอกเลยว่า หิวเมื่อไหร่ก็แวะมาได้ทุกเมื่อ
บริเวณปากซอยรัชดาภิเษก 36 แยก 19-1 จะเป็นสี่แยกที่เชื่อมไปยังซอยรัชดาภิเษก 32, รัชดาภิเษก 36 และปากซอยลาดพร้าววังหิน 61 ที่สามารถเชื่อมต่อไปยังโชคชัย 4 และถนนลาดปลาเค้าได้โดยตรง
เลือกรูปแบบการเดินทางได้หลากหลาย ตรงทุกไลฟ์สไตล์การเดินทาง
รถไฟฟ้า
สำหรับใครที่เลือกวิธีการเดินทางด้วยรถไฟฟ้านั้น ในระยะทาง 1 กิโลเมตรจากตัวโครงการ จะสามารถเข้าไปใช้บริการรถไฟฟ้า MRT ลาดพร้าว ซึ่งเป็นสถานีที่ใกล้ที่สุดในขณะนี้
นอกจากนี้ด้านในสถานี MRT ลาดพร้าวยังเป็นพื้นที่ให้ช้อป ชิม ชิลระหว่างรอเดินทาง อย่าง Gourmet Market ซูเปอร์มาร์เก็ตสุดชิค ที่รวบรวมเอาซูเปอร์มาร์เก็ตกับศูนย์อาหารเข้าไว้ด้วยกันแบบ 2 in 1 เหมาะจะแวะซื้ออาหารกลับไปทานที่คอนโด หรือถ้าเป็นช่วงเวลาเร่งรีบในตอนเช้า ก็สามารถแวะมาฝากท้องกันก่อนไปทำงานก่อนได้ด้วย
สำหรับในอนาคตประมาณปี 2564 ย่านรัชดา-ลาดพร้าวจะมีรถไฟฟ้าสายสีเหลือง ซึ่งเป็นรถไฟฟ้าสายใหม่ที่สามารถเชื่อมต่อกับ MRT ลาดพร้าว โดยสถานีที่อยู่ใกล้กับคอนโด The COLLECT Ratchada 32 (เดอะ คอลเล็ค รัชดา 32) จะเป็นสถานีจันทรเกษม ห่างจากโครงการประมาณ 800 เมตรเท่านั้น
รถยนต์ส่วนตัว
สำหรับคนที่เลือกใช้รถยนต์ส่วนตัวในการเดินทาง จากซอยรัชดาภิเษก 32 จะเชื่อมต่อเข้ากับถนนหลักอย่าง ‘ถนนรัชดาภิเษก’ ถนนเส้นยาวที่เราสามารถขับต่อไปยังฝั่งพระราม 9, ลาดพร้าว, วิภาวดี-รังสิต ซึ่งเป็นทั้งแหล่งธุรกิจ, แหล่งงาน และช่องทางการเดินทางสำคัญของคนกรุงเทพมหานคร
แผนที่จากโครงการ The COLLECT Ratchada 32 (เดอะ คอลเล็ค รัชดา 32) - ถนนรัชดาภิเษก
จากตัวโครงการ The COLLECT Ratchada 32 (เดอะ คอลเล็ค รัชดา 32) เดินทางมายังฝั่งถนนรัชดาภิเษกได้ในระยะ 800 เมตร
นอกจากนี้ถนนรัชดาภิเษกยังเชื่อมต่อไปยังถนนพหลโยธินได้ โดยจะมีอุโมงค์ข้ามแยกรัชโยธิน, ทางด่วนศรีรัช และทางด่วนศรีรัช-วงแหวนรอบนอก สำหรับจุดขึ้นนั้นจะอยู่ตรงถนนกำแพงเพชร 2 ซึ่งถือเป็นทางเลือกในการเดินทางเข้าสู่ย่านใจกลางเมือง หรือพื้นที่โซนอื่นรอบ ๆ กรุงเทพฯ ได้แบบรวดเร็วมากขึ้นด้วยเช่นกัน
แผนที่จากโครงการ The COLLECT Ratchada 32 (เดอะ คอลเล็ค รัชดา 32) - ถนนพหลโยธิน
จากตัวโครงการ The COLLECT Ratchada 32 (เดอะ คอลเล็ค รัชดา 32) เดินทางไปยังแยกรัชโยธิน ในระยะทางประมาณ 4.12 กิโลเมตร
ส่วนการเดินทางด้วยระบบขนส่งสาธารณะ หากเป็นทางฝั่งถนนพหลโยธิน ก็จะมีรถไฟฟ้าสายสีเขียวส่วนต่อขยาย (หมอชิต-คูคต) ตัดผ่าน โดยสถานีที่เชื่อมต่อกับรถไฟฟ้าสายสีเหลืองจะเป็น ‘สถานีพหลโยธิน 24’ ซึ่งคาดว่ารถไฟฟ้าเส้นนี้จะสร้างแล้วเสร็จประมาณปี 2563 ที่จะถึงนี้
และอีกฝั่งของซอยรัชดาภิเษก 32 จะเชื่อมต่อเข้ากับซอยลาดพร้าววังหิน 61 ซึ่งจะทะลุไปยัง ‘ถนนลาดพร้าววังหิน’ ถนนที่อุดมสมบูรณ์และได้รับอิทธิพลความเจริญมาจากถนนลาดพร้าวที่อยู่ใกล้เคียง ขณะเดียวกันถนนเส้นนี้ยังเป็นถนนที่เชื่อมต่อไปยังถนนโชคชัย 4, ลาดปลาเค้า รวมถึงเชื่อมออกไปยังเกษตรนวมินทร์ เลียบด่วนรามอินทราได้ ทำให้การเดินทางเข้ามาสู่ย่านลาดพร้าววังหินนั้นสะดวกสบาย เรียกว่าเดินทางไปไหนก็ครบจบได้ในซอยนี้ซอยเดียว
แผนที่จากโครงการ The COLLECT Ratchada 32 (เดอะ คอลเล็ค รัชดา 32) - ถนนลาดพร้าววังหิน
จากตัวโครงการ The COLLECT Ratchada 32 (เดอะ คอลเล็ค รัชดา 32) เดินทางไปยังถนนลาดพร้าววังหินได้ในระยะทางประมาณ 1.1 กิโลเมตร
เลือกไลฟ์สไตล์ให้ Mix&Match ด้วยรูปแบบการใช้ชีวิตที่ Balance เองได้
เลือก Work&Life ให้ Balance ด้วยการใช้ชีวิตใกล้สถานที่ทำงานชั้นนำ ซึ่งโครงการ The COLLECT Ratchada 32 (เดอะ คอลเล็ค รัชดา 32) ก็ถือเป็นอีกหนึ่งโครงการที่ตั้งอยู่ในย่านธุรกิจใหม่ แน่นอนว่า จะต้องอยู่ใกล้กับแหล่งงานสำคัญ ๆ หลายโซน ไม่ว่าจะเป็นโซนถนนพหลโยธิน ซึ่งใกล้กับคอนโดนั้นจะมีอาคาร SCB Park, ตึกช้าง หรือจะเป็นแลนด์มาร์กที่ทุกคนคุ้นเคยกันดี อย่าง เมเจอร์รัชโยธินนั้นเอง
โซนถนนรัชดาภิเษกใกล้กับปากซอยรัชดาภิเษก 32 (ที่ตั้งโครงการ The COLLECT Ratchada 32) โดยส่วนใหญ่แล้วจะเป็นสถานที่ราชการอย่าง ศาลอาญา, คปภ. และกรมส่งเสริมการส่งออก เป็นต้น เรียกว่า ออกจากตัวซอยมาแค่เล็กน้อยก็ถึงที่ทำงานเลย
นอกจากนี้ก็ยังมีสถานศึกษา อย่าง มหาวิทยาลัยราชภัฏจันทรเกษม ที่ได้นักศึกษาและบุคลากรมาช่วยสร้างความคึกคักให้กับทำเล ทำให้ตัวซอยรัชดาภิเษก 32 เต็มไปด้วยไลฟ์สไตล์การอยู่อาศัย เพื่อรองรับการใช้ชีวิตของคนในวัยเรียน และวัยทำงานในย่านนี้
สำหรับระบบขนส่งสาธารณะอื่น ๆ ในซอยรัชดาภิเษก 32 ก็จะมีทั้งรถกะป๊อ และวินมอเตอร์ไซค์กระจายตัวอยู่ตั้งแต่ปากทาง ส่วนด้านการกินอยู่ใช้สอยนั้นจะมีร้านสะดวกซื้ออย่าง Tesco Lotus Express คอยให้บริการ อยู่ใกล้ ๆ กับปากซอย
ถ้าซื้อของใช้ใน Tesco Lotus Express แล้วยังไม่หนำใจ ถัดเข้าไปทางฝั่งท้ายซอยรัชดาภิเษก 36 ที่เชื่อมต่อกับถนนลาดพร้าววังหิน และซอยรัชดาภิเษก 32 จะเป็นพื้นที่ของห้างสรรพสินค้า Tesco Lotus สาขาลาดพร้าววังหิน พร้อมด้วยตลาดขนาดใหญ่ ที่ให้คนในพื้นที่เข้ามาจับจ่ายซื้อของในราคาย่อมเยา
สำหรับใครที่เป็นสาย Drive thru ซื้อที่ร้านเเต่อยากเอากลับไปทานที่บ้าน ทางฝั่งถนนลาดพร้าวก็จะมีทั้ง KFC และ Starbuck แบบ Drive thru เปิดให้บริการตลอดทั้งวัน หรือถ้าเปลี่ยนใจอยากนั่งรับประทานอาหารเลยก็แนะนำให้แวะ The Jas ลาดพร้าว วังหิน แหล่งรวมไลฟ์สไตล์ และร้านอาหารหลากหลายรูปแบบที่ช่วยให้เราอิ่มท้องมากยิ่งขึ้น
ลาดพร้าววังหิน ถือว่าเป็นย่านที่โดดเด่นเรื่องของ Community mall เป็นอย่างมาก เพราะนอกจาก The Jas แล้ว ก็ยังมีตลาดเปิดอย่างตลาดวังหิน 71 ตลาดชิค ๆ พร้อมมุมถ่ายรูปเก๋ ๆ แบบจุใจ ถัดไปไม่ไกลกันนั้นจะเจอ Plaza Lagoon ตลาดแนววินเทจที่ให้อารมณ์ย้อนวัยไปกับการตกแต่งสไตล์ Loft
นับเป็นทำเลที่จัดเต็มทั้งคาเฟ่, ร้านอาหาร, ห้างสรรพสินค้า รวมไปถึงแหล่งงานที่เดินทางได้สะดวกสบายส่งผลให้ The COLLECT Ratchada 32 (เดอะ คอลเล็ค รัชดา 32) กลายเป็นอีกหนึ่งคอนโดในย่านรัชดา 32 ที่เหมาะจะซื้อเพื่ออยู่เอง หรือลงทุนเก็งกำไรในระยะยาว เนื่องจากเรทราคาเริ่มต้นอยู่ในเกณฑ์จับต้องได้ เฉลี่ยตารางเมตรละประมาณ 81,960 บาท ซึ่งทางโครงการก็ยังมีส่วนลดพิเศษสำหรับนักลงทุน รวมถึงให้คำแนะนำเรื่องการปล่อยเช่าให้อีกด้วย
หากใครสนใจ ‘เลือก’ ทำเลรัดาภิเษก 32 เป็นทำเลที่ใช่สำหรับตนเอง ก็อย่ารอช้าเตรียมพบกับงาน
Pre-Sale ในช่วงวันที่ 15-16 มิถุนายน 2562 นี้ พร้อมลงทะเบียนรับสิทธิประโยชน์จากโครงการ The COLLECT Ratchada 32 (เดอะ คอลเล็ค รัชดา 32) คอนโดที่คุณ ’ควรเลือก’ กับห้องสวย พร้อมเฟอร์ รวมถึงของแถมและส่วนลดมูลค่าสูงสุด 200,000 บาท ได้ที่
เบอร์ติดต่อ : 062-661 2999
Line : @thecollectcondo
Website สำหรับลงทะเบียน : http://www.thecollectcondo.com
เดอะ คอลเล็ค รัชดา 32
5cdb79dd8668503fd1ced688
20005112































































